PODU ROS - CANTEMIR - 3 CAMERE 67MP ETAJ 1 - RENOVAT - FARA RISC SEISMIC - LIBER

135.000 €

Podu Roș, Iași

Nr. cam.:
3
Sup. utilă:
67 mp
Etaj:
1 / 4
An constr.:
1968
  • • Locație exactă

Descriere apartament

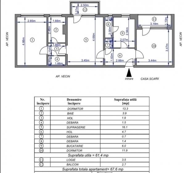
🏡 Apartament 3 camere, renovat complet – Podu Roș – Etaj 1, bloc fără risc! 📍 Zona Cantemir – Podu Roș, etajul 1/4, într-un bloc fără risc seismic, apartament liber, cu mutare imediată! 🔧 Renovat complet de la placă, cu instalațiile electrice și sanitare schimbate integral. Nu ai nicio grijă – totul e nou! ✨ Caracteristici principale:✅ Suprafață: 67 mp✅ 3 camere bine compartimentate✅ Centrală termică proprie✅ Geamuri termopan✅ Gresie, faianță, parchet✅ Izolație exterioară✅ Baie cu geam (ventilație naturală) 📅 Disponibil imediat – cheile sunt pregătite pentru noul proprietar!📞 Pentru vizionări: – Buhna Vasile 💰 Preț: 135.000€ negociabil 📌 Ideal pentru familie sau investiție – locație centrală, etaj intermediar, bloc sigur, totul nou!
Citește mai mult Citește mai puțin
Confort lux Semidecomandat 2 Balcoane / Terase / Logii

Detalii apartament

ID anunț: X907109DT Copiat! 274875084 Copiat!
Actualizat în: 09 Februarie 2026
Suprafață construită: 72 mp
Nr. bucătării: 1
Nr. băi: 1
Tip imobil: Bloc de apartamente
Regim înălțime: P+4E

Utilități

Destinație
Rezidențial
Comision
3%

Puncte de interes

Mijloace transport
bus-station
Pod Cantemir
Stații autobuz aprox. 105 m
tram-station
Statia "Pod Sf. Andrei", linia 2,5
Stații tramvai aprox. 118 m
bus-station
Statia "Pod Cantemir", linia 19
Stații autobuz aprox. 123 m
train-station
Gara Internațională Nicolina
Stații tren aprox. 513 m
Școală
kindergarten
Gradinita cu Program Prelungit Cuvioasa Parascheva
Gradinițe aprox. 148 m
kindergarten
Gradinita cu program normal nr.11
Gradinițe aprox. 171 m
school
Scoala Ion Neculce nr 21
Școli aprox. 271 m
university
Facultatea de Constructii Iasi
Universități aprox. 654 m
Recreere
supermarket
Cidma
Supermarket aprox. 180 m
sports-ground
Teren sportiv
Terenuri sport aprox. 227 m
park
Parc
Parcuri aprox. 344 m
mall
Shopping Center on Shopping Street(Palas) (en)
Mall aprox. 610 m

Detalii despre preț și costuri

Prețul pe piață

Preț cerut: 135.000 €

Preț min. zonă 75.000 €
Preț max. zonă 149.500 €

68% dintre proprietățile similare ca zonă și nr. camere au prețul cerut mai mic. mai multe...

Bine de știut: prețul unei proprietăți este influențat și de alte caracteristici, cum ar fi: vechime, localizare, vecinătăți, suprafață, compartimentare, amenajări, dotări, etc. mai puțin...

Costuri cu achiziția

Fără credit
28.177 RON
Credit ipotecar
29.863 RON
Noua casă
828 RON+ taxe notariale

i

Costuri adiționale mai puțin știute la achiziție: taxe notariale, comisioane etc.

Proprietăți recomandate

Detalii de contact

UNU IMOBILIARE

Vasile Buhna Consilier Imobiliar responsabil de zona Podu Ros Primaverii si Bularga

4.78(3 review-uri)

UNU IMOBILIARE
PRO

Abonează-te la newsletter să fii primul care primește cele mai noi recomandări de proprietăți și sfaturi de la experți.

CONTACT

Creează alertă

Salvează căutarea ca să primești pe email ultimele anunțuri publicate

Apartamente cu 3 camere de vânzare în zona Podu Roș, Iași