1

Apartament 3 camere Podu Ros 72 mp 2 balcoane, locatie excelenta

128.000 €

Podu Roș, Iași

Nr. cam.:
3
Sup. utilă:
72 mp
Etaj:
4 / 8
An constr.:
1977 (Finalizată)
  • • Locație aproximativă
  • • Vizionare prin apel video

Descriere apartament

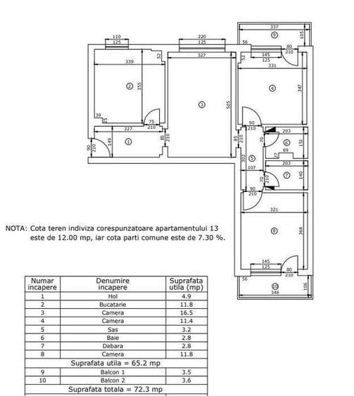
🏡 Apartament 3 camere Podu Ros 72mp 2 balcoane locatie excelenta Se vinde apartament cu 3 camere situat in zona Podu Ros, la etajul 4 din 8, intr-un imobil bine intretinut. Suprafata utila 65,2 mp + 2 balcoane (72,3 mp total), compartimentare practica conform releveului refacut. ✔ complet renovat, stare foarte buna ✔ se vinde mobilat si utilat, exact ca in poze ✔ 2 balcoane inchise cu termopan (vedere bulevard + spate) ✔ bucatarie complet utilata ✔ gresie, faianta, parchet ✔ usa metalica 📍 locatie premium: statie de autobuz la scara, aproximativ 2 minute pana la Palas, acces rapid la transport, aproape de scoli, banci si magazine ✔ ideal pentru locuit sau investitie ✔ acte la zi (cadastru, releveu actualizat) 💰 se vinde doar cash Pret: 128 000 euro 📞 Pentru mai multe detalii si vizionari
Citește mai mult Citește mai puțin
Semidecomandat

Detalii apartament

ID anunț: X5AK10LV2 Copiat! 275455010 Copiat!
Actualizat în: 21 Aprilie 2026
Suprafață utilă totală: 72 mp
Suprafață construită: 72 mp
Nr. băi: 1
Structură rezistență: Altele
Tip imobil: Bloc de apartamente
Regim înălțime: P+8E

Utilități

Destinație
Rezidențial

Puncte de interes

Mijloace transport
bus-station
Podul Ros
Stații autobuz aprox. 45 m
bus-station
Statia "Podu Rosu", linia 28,41,41b
Stații autobuz aprox. 88 m
tram-station
Statia "Podu Rosu", linia 2,5
Stații tramvai aprox. 177 m
train-station
Gara Internațională Nicolina
Stații tren aprox. 720 m
Școală
kindergarten
Gradinita cu program prelungit nr.3
Gradinițe aprox. 248 m
university
Facultatea de Constructii Iasi
Universități aprox. 248 m
school
Scoala Titu Maiorescu
Școli aprox. 256 m
kindergarten
Gradinita cu program prelungit nr.18
Gradinițe aprox. 294 m
Recreere
park
Parcul Podu Ros-Zona fostului magazin 1001Articole
Parcuri aprox. 43 m
public-square
Podul Ros
Piețe publice aprox. 120 m
supermarket
Minimarket Cidma
Supermarket aprox. 458 m
mall
Shopping Center on Shopping Street(Palas) (en)
Mall aprox. 558 m

Detalii despre preț și costuri

Prețul pe piață

Preț cerut: 128.000 €

Preț min. zonă
Preț max. zonă

55% dintre proprietățile similare ca zonă și nr. camere au prețul cerut mai mare. mai multe...

Bine de știut: prețul unei proprietăți este influențat și de alte caracteristici, cum ar fi: vechime, localizare, vecinătăți, suprafață, compartimentare, amenajări, dotări, etc. mai puțin...

Insight premium disponibil după login

Costuri cu achiziția

Fără credit
Credit ipotecar
Noua casă

i

Costuri adiționale mai puțin știute la achiziție: taxe notariale, comisioane etc.

Insight premium disponibil după login

Proprietăți similare

Apartament cu 3 camere semidecomandat, mobilat în Podu Roș
128.000 €
Iași, Podu Roș
3 camere
72 mp
Etaj 4
Apartament cu 3 camere decomandat în Podu Roș
131.900 €
Iași, Podu Roș
3 camere
72 mp
Etaj 3
Apartament cu 2 camere semidecomandat, mobilat în Podu Roș
130.000 €
Iași, Podu Roș
2 camere
50 mp
Etaj 2

Detalii de contact

STIL IMOBIL

Daniel Fandarac JUNIOR BROKER

STIL IMOBIL

Abonează-te la newsletter să fii primul care primește cele mai noi recomandări de proprietăți și sfaturi de la experți.

CONTACT

Creează alertă

Salvează căutarea ca să primești pe email ultimele anunțuri publicate

Apartamente cu 3 camere de vânzare în zona Podu Roș, Iași