Apartament cu 2 camere, finisaje moderne, bloc nou - semicentral

113.700 € + TVA

Tătărași, Iași

Nr. cam.:
2
Sup. utilă:
52,1 mp
Etaj:
2 / 10
An constr.:
2025 (În construcție)
  • • Comision 0%
  • • Locație aproximativă

Descriere apartament

Ansamblu rezidential situat in Tatarasi, intr-o zona intens dezvoltata, oferind acces rapid catre supermarketuri, parcuri, scoli si gradinite, precum si catre multiple puncte de interes din oras: servicii comerciale, activitati de agrement, restaurante, cafenele, sali de sport. Complexul beneficiaza de acces la mijloace de transport in comun, in imediata apropiere a acestuia. Acesta cuprinde mai multe tipuri de apartamente, cu 1, 2 sau 3 camere, special concepute pentru viitorii rezidenti si locuri de parcare supraterane si subterane, cu preturi cuprinse intre 9000 euro si 11000 euro + T.V.A.
Citește mai mult Citește mai puțin
Confort lux Decomandat Nemobilat 1 Balcon / Terasă / Logie Servicii Centrală proprie Încălzire prin pardoseală Renovat

Detalii apartament

ID anunț: XBP60016L Copiat! 199518301 Copiat!
Actualizat în: 05 Martie 2026
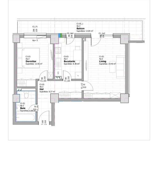
Suprafață utilă totală: 61.7 mp
Suprafață construită: 69 mp
Nr. bucătării: 1
Nr. băi: 1
Structură rezistență: Beton
Tip imobil: Bloc de apartamente
Regim înălțime: S+D+P+10E

Utilități

Destinație
Rezidențial
Pereți
Faianță
Podele
Gresie Parchet
Ușă intrare
Metal
Uși interior
Lemn
Izolații termice
Exterior
Ferestre cu geam termopan
PVC
Contorizare
Contor gaz Apometre
Facilități imobil
Lift Videointerfon
Utilități
Curent Apă Canalizare Gaze CATV
Internet
Cablu Fibră optică Wireless
Servicii hoteliere
Curățenie
Servicii imobil
Administrare
Amenajare străzi
Asfaltate Iluminat stradal Mijloace de transport în comun
Comision
0%

Certificat energetic:

Clasa energetică: A

Vecinătăți:

Tudor Vladimirescu, Centru

Puncte de interes

Mijloace transport
bus-station
Statia "str. Holboca nr.11". linia 18
Stații autobuz aprox. 214 m
bus-station
statia "baza Sportiva Tineretul", linia 18
Stații autobuz aprox. 214 m
tram-station
Statia "Tatarasi Sud", linia 1,3,11,13
Stații tramvai aprox. 344 m
tram-station
Statia "I.P.A", linia 3
Stații tramvai aprox. 410 m
Școală
school
Scoala Ionel Teodoreanu
Școli aprox. 820 m
kindergarten
Gradinita
Gradinițe aprox. 888 m
school
Scoala Gheorghe I.Bratianu
Școli aprox. 1368 m
university
Catedra de Ed Fiz si Sport - Univ Tehn Gh Asachi
Universități aprox. 1409 m
Recreere
sports-ground
Baza Sportiva Tineretului
Terenuri sport aprox. 303 m
park
Baza sportiva "Tineretului"
Parcuri aprox. 323 m
supermarket
Complex Ciurchi
Supermarket aprox. 639 m
mall
Iulius Mall
Mall aprox. 1750 m

Detalii despre preț și costuri

Prețul pe piață

Preț cerut: 113.700 €

Preț min. zonă
Preț max. zonă

75% dintre proprietățile similare ca zonă și nr. camere au prețul cerut mai mic. mai multe...

Bine de știut: prețul unei proprietăți este influențat și de alte caracteristici, cum ar fi: vechime, localizare, vecinătăți, suprafață, compartimentare, amenajări, dotări, etc. mai puțin...

Insight premium disponibil după login

Costuri cu achiziția

Fără credit
Credit ipotecar
Noua casă

i

Costuri adiționale mai puțin știute la achiziție: taxe notariale, comisioane etc.

Insight premium disponibil după login

Proprietăți recomandate

Detalii de contact

FIX REZIDENTIAL

Ionut Croitoru Consilier Imobiliar

3.67(4 review-uri)

FIX REZIDENTIAL
PRO

Abonează-te la newsletter să fii primul care primește cele mai noi recomandări de proprietăți și sfaturi de la experți.

CONTACT

Creează alertă

Salvează căutarea ca să primești pe email ultimele anunțuri publicate

Apartamente cu 2 camere de vânzare în zona Tătărași, Iași