5

Apartament cu 3 camere tip X, Str. Feldioarei

78.600 €

Central, Oradea

Nr. cam.:
3
Sup. utilă:
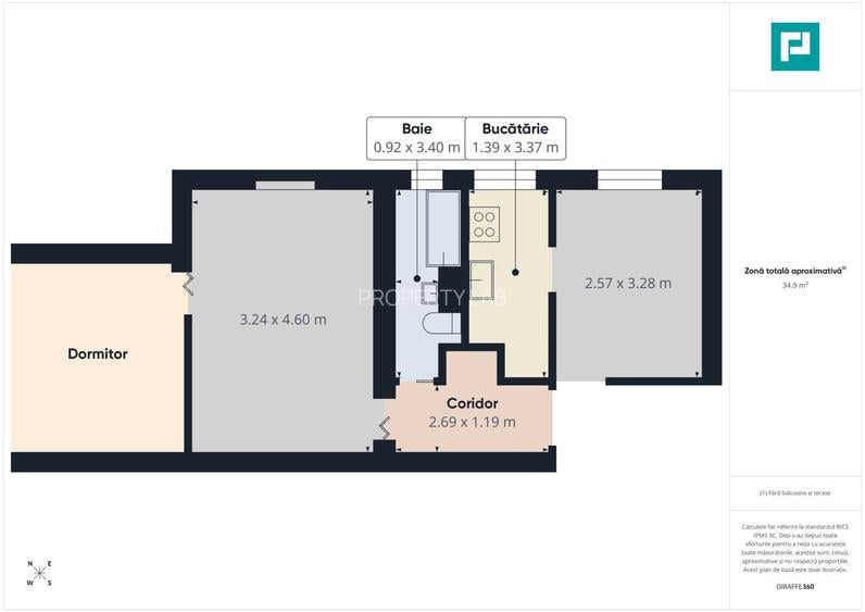
45,76 mp
Etaj:
1 / 4
An constr.:
1972
  • • Exclusivitate
  • • Locație exactă

Descriere apartament

De vânzare – Apartament cu 3 camere tip X, Str. Feldioarei Oferim spre vânzare un apartament curat si aranjat situat pe str. Feldioarei Nr.6, în zona liniștită și bine cotată. La cateva minute de Universitatea Oradea, Centru, Piata Unirii, magazine si facilitati. Locuința este complet utilată și mobilată, gata pentru mutare imediată. Compartimentare: - Living spațios cu bucătărie semi open space - 2 dormitoare luminoase - Baie modernă Ideal pentru o familie sau cuplu care caută confort și intimitate într-o zonă accesibilă și bine conectată. Pentru mai multe detalii sau programarea unei vizionări, nu ezitați să ne contactați Ramon Morar - Consultant imobiliar Property Lab E-mail Telefon - CP 2854241
Citește mai mult Citește mai puțin
Confort 2 Semidecomandat Mobilat 1 Balcon / Terasă / Logie Calorifere Termoficare Bine întreținut (Bună)

Detalii apartament

ID anunț: X5I11020B Copiat! 274652512 Copiat!
Actualizat în: 23 Martie 2026
Nr. bucătării: 1
Nr. băi: 1
Structură rezistență: Beton
Tip imobil: Bloc de apartamente
Regim înălțime: P+4E

Utilități

Destinație
Rezidențial
Pereți
Faianță Vopsea lavabilă
Podele
Gresie Parchet
Ușă intrare
Metal
Uși interior
PVC
Ferestre cu geam termopan
PVC
Contorizare
Apometre
Bucătărie
Utilată
Electrocasnice
Aragaz Frigider Mașină de spălat TV
Facilități imobil
Interfon Spații agrement
Utilități
Curent Apă Canalizare CATV
Internet
Cablu Wireless
Amenajare străzi
Iluminat stradal Mijloace de transport în comun Asfaltate
Comision
standard

Vecinătăți:

Universitate, Centru, Parcul 22 Decembrie, Piata Mare

Disponibilitate proprietate:

Imediat

Puncte de interes

Mijloace transport
tram-station
Muntele Gaina
Stații tramvai aprox. 787 m
bus-station
Dimitrie Cantemir
Stații autobuz aprox. 793 m
tram-station
Piata Cetatii
Stații tramvai aprox. 880 m
bus-station
Statie Decebal
Stații autobuz aprox. 1646 m
Școală
school
Partenie Cosma
Școli aprox. 1013 m
university
Universitatea Oradea
Universități aprox. 1058 m
school
Scoala Sportiva
Școli aprox. 1214 m
university
Universitatea Crestina Partium - Cladirea Sulyok
Universități aprox. 1680 m
Recreere
park
Parc
Parcuri aprox. 197 m
sports-ground
Teren sportiv
Terenuri sport aprox. 349 m
cafe
Life Club
Cafenea aprox. 696 m
supermarket
Oradea Plaza
Supermarket aprox. 885 m

Detalii despre preț și costuri

Prețul pe piață

Preț cerut: 78.600 €

Preț min. zonă
Preț max. zonă

i

Proprietate cu prețul cerut în afara intervalului mai multe...

Posibile explicații pentru faptul că prețul proprietății este sub cel minim: imobil cu risc seismic, imobil cu probleme structurale, imobil demolabil, poziționare în altă zonă
Bine de știut: prețul unei proprietăți este influențat și de alte caracteristici, cum ar fi: vechime, localizare, vecinătăți, suprafață, compartimentare, amenajări, dotări, etc.
Insight premium disponibil după login

Costuri cu achiziția

Fără credit
Credit ipotecar
Noua casă

i

Costuri adiționale mai puțin știute la achiziție: taxe notariale, comisioane etc.

Insight premium disponibil după login

Proprietăți similare

Apartament cu 2 camere semidecomandat în Rogerius
77.900 €
Oradea, Rogerius
2 camere
40 mp
Etaj 2 / 4
Apartament cu 2 camere semidecomandat în Lotus
74.500 €
Oradea, Lotus
2 camere
46 mp
Etaj 4
Apartament cu 2 camere semidecomandat în Iosia-Nord
85.800 €
Oradea, Iosia-Nord
2 camere
52 mp
Etaj 4 / 4

Detalii de contact

PROPERTY LAB

Ramon Morar Branch Manager Oradea

PROPERTY LAB

Abonează-te la newsletter să fii primul care primește cele mai noi recomandări de proprietăți și sfaturi de la experți.

CONTACT

Creează alertă

Salvează căutarea ca să primești pe email ultimele anunțuri publicate

Apartamente cu 3 camere de vânzare în zona Central, Oradea