1

Atlanta Residence | Vedere libera | Apartament modern 2 camere | 72mpc

218.284 €

Aviației, București

Nr. cam.:
2
Sup. utilă:
54 mp
Etaj:
2 / 2
An constr.:
2026 (În construcție)
  • • Comision 0%
  • • Exclusivitate
  • • Locație exactă

Descriere apartament

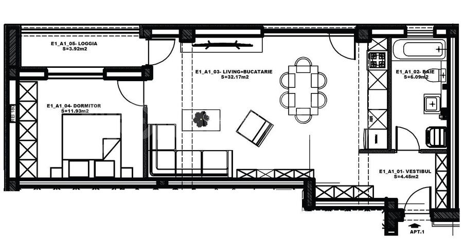
Amplasat ideal in zona Aviatiei, in spatele hotelului Crystal Palace, la 950m de metrou Aurel Vlaicu - Promenada si 1500m de Parcul Herastrau, acest imobil boutique are 9 unitati rezidentiale desfasurate pe 3 nivele, S+P+2. Sunt doar 3 apartamente/nivel cu cate 2 si 4 camere. Suprafata totala este de 72mp construiti din care 54mp utili plus terasa 4mp. Este compus din living cu zona de dining si bucatarie de 32mp, dormitor de 14mp cu zona de dressing si baie de 6mp. Specificatii tehnice: Structura este din beton armat cu umplutura din caramida Porotherm de 30cm, placa izolata termic si fonic, camerele compartimentate optim fara spatii pierdute cu suprafete vitrate mari. Izolatia termica este asigurata de sistemul complet de la Caparol, ferestrele sunt cu profile Salamander Green Evolution tripan, liftul este Klemann. Fiecare unitate are utilitatile contorizate individual, imobilul avand centrala proprie si pompe de caldura. Finisajele si dotarile sunt moderne si de buna calitate: parchet triplu stratificat, incalzire in pardoseala, ceramica de mari dimensiuni, obiecte sanitare Ideal Standard, usi Pinum, electrice Schneider. Avantajele: Locația foarte apropiata de metrou si de zona de birouri cea mai dezvoltata a orasului, proximitatea tuturor punctelor de interes la distanta de mers pe jos reprezinta principalul atu al acestui proiect. Compartimentarile inteligente, camerele înalte, numărul redus de unități, instalațiile si finisajele moderne sunt de asemenea doar cateva din motivele pentru care sa alegi Atlanta Residence. Note: *Pret + TVA valabil pentru avans 50% *Imaginile sunt cu titlul de prezentare *Specificatiile prezentate mai sus se pot modifica in functie de disponibilitatea lor la furnizori, indrumarea arhitectului sau schimbarea standardelor de conformitate nationale sau la nivelul Uniunii Europene. *Pot fi folosite brand-uri si tipuri de materiale similare *Prezenta oferta nu reprezinta un contract
Citește mai mult Citește mai puțin
Confort lux Semidecomandat Nemobilat Centrală imobil Centrală proprie Încălzire prin pardoseală 1 Garaj

Detalii apartament

ID anunț: X1UR102OK Copiat! 275350984 Copiat!
Actualizat în: 21 Mai 2026
Suprafață construită: 72 mp
Nr. bucătării: 1
Nr. băi: 1
Structură rezistență: Beton
Tip imobil: Bloc de apartamente
Tip tranzacție: De vânzare prin agent
Regim înălțime: S+P+2E
Nr. terase: 1
Modalitate de plată: Cash sau Credit

Utilități

Pereți
Faianță Vopsea lavabilă
Podele
Gresie Parchet
Ușă intrare
Metal
Izolații termice
Exterior
Ferestre cu geam termopan
PVC
Contorizare
Apometre Contor căldură
Diverse
Telecomandă poartă garaj
Alte spații utile
WC Serviciu Terasă
Facilități imobil
Lift Videointerfon
Utilități
Curent Apă Canalizare CATV Gaze Telefon
Internet
Cablu Wireless
Servicii imobil
Supraveghere video
Amenajare străzi
Iluminat stradal Mijloace de transport în comun Asfaltate
Comision
0%

Disponibilitate proprietate:

2026

Puncte de interes

Mijloace transport
bus-station
Maguricea
Stații autobuz aprox. 384 m
tram-station
Maguricea
Stații tramvai aprox. 411 m
metro-station
Metrorex. Stația Aurel Vlaicu (M2)(1987)
Stații metrou aprox. 898 m
airport
Aeroportul Internațional Băneasa (Aurel Vlaicu) - LRBS (BBU)
Aeroporturi aprox. 1692 m
Școală
school
Scoala primara si gimnaziala MEA
Școli aprox. 559 m
school
Scoala cu clasele I-VIII nr.12 "Herastrau"
Școli aprox. 662 m
kindergarten
Gradinita Miniterra
Gradinițe aprox. 670 m
university
Școala Superioară de Aviație Civilă - S.S.Av.C.
Universități aprox. 1672 m
Recreere
park
Parc
Parcuri aprox. 333 m
supermarket
Lidl
Supermarket aprox. 455 m
bar
Simbi's
Bar aprox. 542 m
sports-ground
Teren sportiv
Terenuri sport aprox. 664 m

Detalii despre preț și costuri

Prețul pe piață

Preț cerut: 218.284 €

Preț min. zonă
Preț max. zonă

80% dintre proprietățile similare ca zonă și nr. camere au prețul cerut mai mic. mai multe...

Bine de știut: prețul unei proprietăți este influențat și de alte caracteristici, cum ar fi: vechime, localizare, vecinătăți, suprafață, compartimentare, amenajări, dotări, etc. mai puțin...

Acces la informații premium după autentificare
Login Gratuit

Costuri cu achiziția

Fără credit
Credit ipotecar
Noua casă

i

Costuri adiționale mai puțin știute la achiziție: taxe notariale, comisioane etc.

Acces la informații premium după autentificare
Login Gratuit

Proprietăți similare

Apartament cu 2 camere, mobilat în Aviației
178.000 €
București, Aviației
2 camere
47 mp
Etaj 7 / 8
Apartament cu 3 camere decomandat în Aviației
184.500 €
București, Aviației
3 camere
82 mp
Etaj 2
Apartament cu 2 camere decomandat, mobilat în Aviației
168.000 €
București, Aviației
2 camere
54 mp
Etaj 3

Detalii de contact

Abonează-te la newsletter să fii primul care primește cele mai noi recomandări de proprietăți și sfaturi de la experți.

CONTACT

Creează alertă

Salvează căutarea ca să primești pe email ultimele anunțuri publicate

Apartamente cu 2 camere de vânzare în zona Aviației, Sector 1