16

APARTAMENT 3 CAMERE | BLOC NOU |

260.000 €

Bucureștii Noi, București

Nr. cam.:
3
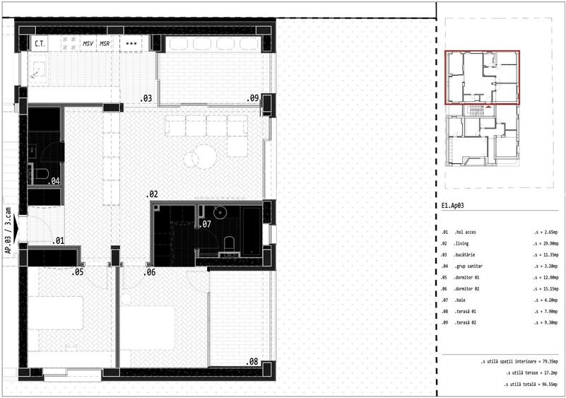
Sup. utilă:
80 mp
Etaj:
1
An constr.:
2025
  • • Locație aproximativă

Descriere apartament

La doar 5 minute de Parcul Bazilescu, 10 minute de mers pe jos până la metrou și 5 minute de piață, se află un imobil tip boutique (S+P+2E) cu un număr redus de apartamente, care oferă intimitate și un sentiment de comunitate. Clădirea este realizată cu materiale premium și dotări de ultimă generație: termosistem cu vată bazaltică Caparol de 15 cm, tâmplărie Reynaers CS77 cu sticlă tripan securizată și laminată, termosistem terasă Soprema 20 cm, panouri fotovoltaice de 5 kw pentru spațiile comune, sistem de supraveghere și interfon Hikvision. Apartamentele se predau în prezent la gri, însă se oferă posibilitatea de a fi complet finisate și echipate conform specificațiilor: centrală termică Viessmann, încălzire în pardoseală Uponor, aer condiționat Gree, parchet SPC Arbiton, finisaje premium Delta Studio, ușă de acces Superlock și uși interioare Grauthoff. Proprietatea dispune de adăpost civil și 7 locuri de parcare, cu posibilitatea achiziției unui loc individual la prețul de 17.000 €. 📍 O oportunitate rară de a locui într-un bloc mic, exclusivist, într-o zonă verde și foarte bine conectată. Unele dintre fotografiile prezentate sunt cu titlu demonstrativ.
Citește mai mult Citește mai puțin
Nemobilat Centrală proprie Încălzire prin pardoseală

Detalii apartament

ID anunț: XC7L101JK Copiat! 269851111 Copiat!
Actualizat în: 23 Decembrie 2025
Suprafață construită: 90 mp
Nr. bucătării: 1
Nr. băi: 2
Tip imobil: Bloc de apartamente
Regim înălțime: P+2E
Nr. terase: 2

Utilități

Destinație
Rezidențial
Izolații termice
Exterior Interior
Contorizare
Apometre Contor căldură Contor gaz
Alte spații utile
Terasă
Utilități
Curent Apă Canalizare CATV Gaze Telefon
Internet
Cablu
Amenajare străzi
Iluminat stradal Mijloace de transport în comun Asfaltate
Comision
standard

Disponibilitate proprietate:

Imediat

Puncte de interes

Mijloace transport
bus-station
Statia Mihai Viteazul linia 112
Stații autobuz aprox. 350 m
tram-station
Jimbolia
Stații tramvai aprox. 385 m
metro-station
Acces stația Parc Bazilescu (M4)
Stații metrou aprox. 541 m
train-station
Gara - Halta Pajura - zisa si Triaj
Stații tren aprox. 1260 m
Școală
kindergarten
Gradinita Nr. 47
Gradinițe aprox. 298 m
school
Gradinita Nr. 47
Școli aprox. 309 m
kindergarten
Gradinita de copii nr.47
Gradinițe aprox. 309 m
school
Scoala Nr. 192
Școli aprox. 480 m
Recreere
park
Parc
Parcuri aprox. 133 m
supermarket
Lidl
Supermarket aprox. 270 m
sports-ground
Teren sportiv
Terenuri sport aprox. 395 m
cafe
Cafe Bar
Cafenea aprox. 511 m

Detalii despre preț și costuri

Prețul pe piață

Preț cerut: 260.000 €

Preț min. zonă
Preț max. zonă

88% dintre proprietățile similare ca zonă și nr. camere au prețul cerut mai mic. mai multe...

Bine de știut: prețul unei proprietăți este influențat și de alte caracteristici, cum ar fi: vechime, localizare, vecinătăți, suprafață, compartimentare, amenajări, dotări, etc. mai puțin...

Insight premium disponibil după login

Costuri cu achiziția

Fără credit
Credit ipotecar
Noua casă

i

Costuri adiționale mai puțin știute la achiziție: taxe notariale, comisioane etc.

Insight premium disponibil după login

Proprietăți recomandate

Detalii de contact

IMPACT REAL ESTATE ADVISORS

Cristian Radu

4.00(3 review-uri)

IMPACT REAL ESTATE ADVISORS
PRO

Abonează-te la newsletter să fii primul care primește cele mai noi recomandări de proprietăți și sfaturi de la experți.

CONTACT

Creează alertă

Salvează căutarea ca să primești pe email ultimele anunțuri publicate

Apartamente noi cu 3 camere de vânzare în zona Bucureștii Noi, Sector 1