13

Apartament exclusivist in zona Dorobanti in bloc boutique

790.000 €

Dorobanți, București

Nr. cam.:
4
Sup. utilă:
121,4 mp
Etaj:
Parter / 2
An constr.:
2024 (Finalizată)
  • • Comision 0%
  • • Locație aproximativă

Descriere apartament

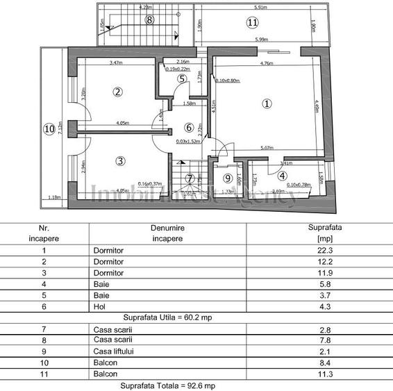
Vă prezentăm un apartament modern, situat în zona Dorobanți, pe o stradă liniștită cu trafic redus, ideal pentru familiile care își doresc confort, intimitate și siguranță într-un spațiu bine gândit. Apartamentul se afla intr-o clădire nouă, cu regim de înălțime P+2E+M și doar 3 unități locative. Accesul se poate face direct cu liftul în apartament sau pe scara interioară. Apartamentul este compus din subsol tehnic de 33,7mp, parter de 61,8mp, unde se afla living-ul cu bucataria si o baie, iar la etajul 1 de 61,8mp, se afla 3 dormitoare cu 3 bai si 2 terase de 8,4mp si 11,3mp Imobilul este construit la standard nZEB, ceea ce garantează performanțe energetice ridicate și costuri reduse de întreținere. Fiecare apartament este echipat cu pompe de căldură Nibe Suedia, încălzire în pardoseală Henco Floor Belgia și răcire prin ventilo-convectoare. Tamplaria este de înaltă calitate, Reynaers aluminiu cu geam tripan, iar izolarea termică este realizată cu vată minerala Rockwool de 15-20 cm. Fațada ventilată este finisată cu pin nordic LUNAWOOD, asigurând durabilitate și un aspect elegant. Apartamentul este impartit in zona de zi, care include livingul, bucătăria open-space și o terasă spațioasă. Zona de noapte cuprinde dormitoarele cu baie proprie, cu acces la terasă. Finisajele includ deck din pin nordic pentru terase și compartimentări interioare realizate integral din cărămidă. Ușile filomuro completează designul modern și elegant. Clădirea dispune de documentație riguroasă pentru toate materialele folosite și etapele lucrărilor, cu garanție de la constructor. In pret sunt incluse si 2 locuri de parcare, gradina de 50mp si subsolul tehnic de 33,7mp. Apartamentul fiind deținut de o persoană fizică, la prețul afișat nu se adaugă TVA. Certificatul energetic va fi disponibil la momentul semnarii contractului de vanzare-cumparare. Vă invităm cu drag la o vizionare pentru a descoperi toate avantajele acestei proprietăți. Imobil Invest este aici pentru a vă ajuta să achiziționați apartamentul dorit.
Citește mai mult Citește mai puțin
Confort lux Semidecomandat Nemobilat 2 Balcoane / Terase / Logii Grădină Curte Aer condiționat Centrală proprie Încălzire prin pardoseală 2 Parcări

Detalii apartament

ID anunț: XFDI1003S Copiat! 257790101 Copiat!
Actualizat în: 11 Martie 2026
Suprafață construită: 229.54 mp
Nr. bucătării: 1
Nr. băi: 3
Structură rezistență: Beton
Tip imobil: Bloc de apartamente
Regim înălțime: P+2E+M

Utilități

Pereți
Vopsea lavabilă
Podele
Parchet
Ușă intrare
Metal
Uși interior
Lemn
Izolații termice
Exterior
Ferestre cu geam termopan
Aluminiu
Contorizare
Apometre Contor gaz
Bucătărie
Utilată
Diverse
Sistem de alarmă
Alte spații utile
Debara WC Serviciu
Facilități imobil
Interfon Lift Videointerfon
Utilități
Curent Apă Canalizare CATV Telefon
Internet
Cablu
Servicii imobil
Supraveghere video
Amenajare străzi
Iluminat stradal Mijloace de transport în comun Asfaltate
Comision
0%

Disponibilitate proprietate:

Imediat

Puncte de interes

Mijloace transport
bus-station
Statia Liceul Ion Luca Caragiale, linia 131, 182, 330, 331, 335, N113, 301
Stații autobuz aprox. 181 m
tram-station
Calea Dorobantilor
Stații tramvai aprox. 412 m
metro-station
Metrorex. Stația Ștefan cel Mare (M1)(1989)
Stații metrou aprox. 649 m
trolleybus-station
Statia Calea Dorobantilor; Liniile:79, 86,
Stații troleibuz aprox. 1029 m
Școală
school
Liceul Alexandru Vlahuta + Scoala 15 (en)
Școli aprox. 181 m
school
Scoala nr. 15
Școli aprox. 191 m
kindergarten
Gradinita cu program normal si prelungit Happy Kids
Gradinițe aprox. 233 m
university
Universitatea Atenaeum
Universități aprox. 752 m
Recreere
park
Parc
Parcuri aprox. 229 m
sports-ground
Teren sportiv
Terenuri sport aprox. 303 m
supermarket
Mega Image
Supermarket aprox. 329 m
mall
"METROPLIS CENTER"
Mall aprox. 485 m

Detalii despre preț și costuri

Prețul pe piață

Preț cerut: 790.000 €

Preț min. zonă
Preț max. zonă

100% dintre proprietățile similare ca zonă și nr. camere au prețul cerut mai mic. mai multe...

Bine de știut: prețul unei proprietăți este influențat și de alte caracteristici, cum ar fi: vechime, localizare, vecinătăți, suprafață, compartimentare, amenajări, dotări, etc. mai puțin...

Insight premium disponibil după login

Costuri cu achiziția

Fără credit
Credit ipotecar
Noua casă

i

Costuri adiționale mai puțin știute la achiziție: taxe notariale, comisioane etc.

Insight premium disponibil după login

Proprietăți recomandate

Detalii de contact

IMOBIL INVEST AGENCY

Victoria Morozinschi Manager

5.00(4 review-uri)

IMOBIL INVEST AGENCY
PRO

Abonează-te la newsletter să fii primul care primește cele mai noi recomandări de proprietăți și sfaturi de la experți.

CONTACT

Creează alertă

Salvează căutarea ca să primești pe email ultimele anunțuri publicate

Apartamente noi cu 4+ camere de vânzare în zona Dorobanți, Sector 1