19

Apartament 3 camere, Lake View, zona Floreasca, Mobilat, Yacht Kid

592.900 €

Floreasca, București

Nr. cam.:
3
Sup. utilă:
73 mp
Etaj:
6 / 9
An constr.:
2023 (Finalizată)
  • • Comision 0%
  • • Locație exactă
  • • Vizionare prin apel video

Descriere apartament

Descoperă un spațiu de locuit care redefinește confortul și rafinamentul în inima unuia dintre cele mai căutate cartiere din București – Floreasca. Acest apartament cu 3 camere reprezintă o oportunitate rară de a trăi într-un mediu contemporan, cu finisaje de calitate superioară și o compartimentare inteligentă, gândită pentru a răspunde celor mai exigente nevoi. Apartamentul cu 3 camere din complexul Yacht Kid din București este o locuință modernă și luminoasă, ideală pentru un cuplu sau o familie, situată într-un ansamblu rezidențial exclusivist din apropierea zonei Floreasca. Cu o compartimentare practică și finisaje premium, apartamentul include un living generos cu zonă de dining, o bucătărie open space, două dormitoare confortabile, două băi elegante și un balcon cu vedere plăcută spre lacul. Complexul oferă acces securizat, locuri de parcare, spații verzi și proximitate față de școli, parcuri, magazine și mijloace de transport, asigurând un stil de viață urban, relaxat și sigur. Floreasca este una dintre cele mai râvnite și apreciate zone din București, oferind un mix rar între natură, viață socială vibrantă și acces rapid la punctele-cheie din oraș. Fiecare colțișor al acestui apartament reflectă atenția pentru detalii și armonia spațiului. Indiferent dacă îți dorești o locuință personală sau o investiție sigură, această proprietate este un punct de plecare rafinat, într-una dintre cele mai valoroase zone ale Capitalei. Proiectul Yacht KID este construit pe baza unor tehnologii de ultimă generație. Elementele decorative pentru intradosul balcoanelor sunt o premieră, fiind realizate din materiale compozite avansate, o abordare unică pe piața din România. YACHT KID oferă un standard de lux înalt, cu soluții constructive inovatoare și o atenție sporită la detalii. Structura post-tensionată, importată din industria construcțiilor de poduri, asigură o rezistență formidabilă la seism. Elementele decorative pentru intradosul balcoanelor sunt realizate din plăci compozite avansate, produse printr-o tehnologie care asigură durabilitate și rezistență în condiții extreme. Aceste plăci sunt prelucrate cu o atenție deosebită la detalii, care permite obținerea unor finisaje de înaltă calitate și un design arhitectural elegant. Fațadele ventilate cu HPL, cu print de piele patentat de YACHT KID, oferă o eficiență energetică superioară și protecție durabilă. Utilizarea HPL (High-Pressure Laminate) ca finisaj de fațadă aduce numeroase avantaje. HPL este un material extrem de rezistent la intemperii, UV și umiditate, ceea ce îl face ideal pentru utilizarea în exterior. Aceasta asigură o durată lungă de viață a fațadei, fără deteriorări semnificative în timp. Un spațiu compact cu caracter premium, într-o locație rar disponibilă. Lasă-ți creativitatea să modeleze interiorul, iar zona Floreasca va avea grijă de stilul tău de viață, contacteaza-ne pentru mai multe detalii!
Citește mai mult Citește mai puțin
Confort lux Decomandat Lux 1 Balcon / Terasă / Logie Aer condiționat Centrală imobil Încălzire prin pardoseală Beci Bine întreținut (Bună)

Detalii apartament

ID anunț: XFOS00006 Copiat! 270188963 Copiat!
Actualizat în: 21 Aprilie 2026
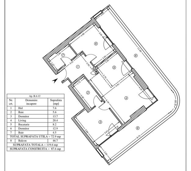
Suprafață utilă totală: 120 mp
Nr. bucătării: 1
Nr. băi: 2
Structură rezistență: Beton
Tip imobil: Bloc de apartamente
Tip tranzacție: De vânzare prin dezvoltator
Regim înălțime: P+9E
Modalitate de plată: Cash sau Credit

Utilități

Destinație
Rezidențial
Pereți
Vopsea lavabilă Faianță
Podele
Parchet
Ușă intrare
Metal
Uși interior
Lemn
Izolații termice
Exterior
Ferestre cu geam termopan
Aluminiu
Alte spații utile
Terasă
Utilități
Telefon Curent Canalizare Apă
Internet
Fibră optică
Servicii imobil
Administrare Supraveghere video Pază
Amenajare străzi
Asfaltate
Comision
0%

Alte detalii:

Tâmplăria din aluminiu din topul de gamă de la Reynaers și ferestrele termoizolante cu sticla Saint-Gobain oferă eficiență energetică superioară.

Vitrajele de înaltă performanță pot îmbunătăți eficiența energetică și pot reduce costurile cu peste 30%, comparativ cu vitrajele simple. Sistemul etanș menține căldura în interior și, în același timp, permite luminii naturale să încălzească eficient locuința în timpul iernii.

Puncte de interes

Mijloace transport
tram-station
Statia Platforma Pipera, linia 16,36
Stații tramvai aprox. 437 m
tram-station
Platforma Industriala Pipera (Coborare)
Stații tramvai aprox. 443 m
metro-station
Metrorex. Stația Pipera (M2)(1987)
Stații metrou aprox. 492 m
bus-station
Statia Soseaua Fabrica de Glucoza, linia 135, N119
Stații autobuz aprox. 539 m
Școală
school
Colegiul Tehnic Edmond Nicolau, fostul Electronica
Școli aprox. 619 m
school
Grupul Scolar Industrial Constantin Brancusi (en)
Școli aprox. 635 m
kindergarten
Gradinita SOS Satul Copiilor
Gradinițe aprox. 916 m
university
Facultatea de Constructii Civile
Universități aprox. 1635 m
Recreere
restaurant
Fosta baza Keoke (en)
Restaurant aprox. 185 m
park
Parc
Parcuri aprox. 452 m
sports-ground
Teren sportiv
Terenuri sport aprox. 557 m
supermarket
Carrefour
Supermarket aprox. 559 m

Detalii despre preț și costuri

Prețul pe piață

Preț cerut: 717.409 €

Preț min. zonă
Preț max. zonă

i

Proprietate cu prețul cerut în afara intervalului mai multe...

Posibile explicații pentru faptul că prețul proprietății este peste cel maxim: imobil nou cu suprafață mare, are dotări și finisaje de lux.
Bine de știut: prețul unei proprietăți este influențat și de alte caracteristici, cum ar fi: vechime, localizare, vecinătăți, suprafață, compartimentare, amenajări, dotări, etc.
Acces la informații premium după autentificare
Login Gratuit

Costuri cu achiziția

Fără credit
Credit ipotecar
Noua casă

i

Costuri adiționale mai puțin știute la achiziție: taxe notariale, comisioane etc.

Acces la informații premium după autentificare
Login Gratuit

Yacht Kid

Yacht Kid

Yacht Kid este un ansamblu rezidențial modern, situat într-o zonă exclusivistă, ce oferă apartamente premium cu design sofisticat și finisaje de înaltă calitate. Proiectat pentru un stil de viață elegant, ansamblul include facilități precum spații verzi, zone de relaxare și acces facil la promenada lacului. Ideal pentru familii și tineri profesioni...

Vezi detalii ansamblu

Proprietăți similare

Apartament cu 3 camere decomandat în Floreasca
500.000 €
București, Floreasca
3 camere
76,2 mp
Etaj 5
Apartament cu 3 camere decomandat în Floreasca
504.682 €
București, Floreasca
3 camere
126 mp
Etaj 8
Apartament cu 3 camere semidecomandat în Floreasca
453.000 €
București, Floreasca
3 camere
98,4 mp
Etaj 13 / 20

Detalii de contact

Yacht Kid

Mihai Bogdan Sales Manager

Yacht Kid

Abonează-te la newsletter să fii primul care primește cele mai noi recomandări de proprietăți și sfaturi de la experți.

CONTACT

Creează alertă

Salvează căutarea ca să primești pe email ultimele anunțuri publicate

Apartamente noi cu 3 camere de vânzare în zona Floreasca, Sector 1