1

Apartament 3 camere mobilat in One Verdi Park cu loc de parcare

467.000 €

Floreasca, București

Nr. cam.:
3
Sup. utilă:
86,08 mp
Etaj:
8 / 20
An constr.:
2022 (Finalizată)
  • • Locație aproximativă

Descriere apartament

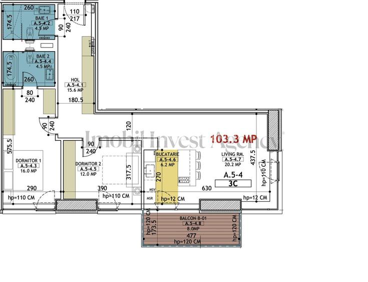
Va propunem spre vanzare un apartament modern și spațios in One Verdi Parc. Acest ansamblu este amplasat pe bulevardul Barbu Văcărescu, in apropiere de centrul orașului, fiind înconjurat de multiple servicii. Complexul beneficiază de faptul că are aeroportul în apropiere și este bine deservit de facilități precum 2 stații de metrou din proximitate, linie de tramvai, autobuz și o distanță de mers pe jos față de Parcul Verdi si Promenada Mall. Apartamentul are o dispunere semidecomandată și o suprafață construita de 103.3 mp, la care se adaugă o terasa de 8 mp. Proprietatea cuprinde doua dormitoare, camera de zi și doua bai, o baie având cadă și a doua duș. Beneficiază de finisaje de calitate, tavane înalte și ferestre mari, care permit o abundență de lumină naturală, expunere Est-Sud și Sud-vestică. Detalii tehnice cladire: ⁠Arhitectură modernă, structura de rezistenta beton, perimetral din cărămidă, sistem de izolare fonică, fațade ventilata cu placare din fibrociment, izolate termic cu vată bazaltic, pereții despărțitori sunt realizați din beton armat și cărămidă, inălțime apartament variază între: Zona coborâtă-2,50 m - 2,65 m, zona înaltă-2,85 m - 2,97 m⁠, ferestre pe întreaga înalțime a pereților, clasa RS IV – cea mai înaltӑ clasӑ de rezistențǎ la risc seismic, zone de parcare supraterane și subterane, zonele comune și scările sunt finisate cu granit natural și plăci de marmura. Detalii finisaje interioare: Ușa de acces- Alias Magma 30, uși interioare- Pinum Suite Plus, Pardoseală-Bjeli strat triplu 14,5mm grosime, strat final de stejar grosime 2,5 mm, potrivit pentru încălzirea în pardoseală, incălzire în pardoseală InnoFloor cu control prin termostate Honeywell, gresia si faianta -Refin Italia, sistem de încălzire modul termohidraulic Caleffi, sistem de răcire Mitsubishi Electric, obiecte sanitare-baterii Noken Porcelanosa gama Curve, toalete suspendate Bosa, cu capac soft-close, cada-Nubea, lavoar-Kuma, material marmura compusa Kuma, tâmplărie și geamuri-Wicona, WICTEC 50 - sistem de perete cortină cu barieră termică, WICLINE 90SG - sistem de ferestre cu barieră termică, WICLINE 65evo - sistem de ferestre și uși de balcon cu barieră termică, sticlă termopan 10 mm Cool-lite KN 166 ESG, 24 mm poliuretan + argon, 4.4.2 șlefuit (Producător: Saint Gobain). În prețul afișat sunt incluse un loc de parcare subteran și mobilierul. Certificatul energetic va fi disponibil la momentul vânzării. Vă invităm cu drag la o vizionare pentru a descoperi toate avantajele acestei proprietăți. Pentru persoane fizice, la prețul afișat se adaugă TVA, iar pentru achizițiile pe persoană juridică se aplică taxarea inversă.
Citește mai mult Citește mai puțin
Confort lux Semidecomandat Mobilat Lux Curte comună Aer condiționat Centrală imobil Încălzire prin pardoseală 1 Parcare

Detalii apartament

ID anunț: XFDI10064 Copiat! 274686029 Copiat!
Actualizat în: 07 Mai 2026
Suprafață construită: 103.3 mp
Nr. bucătării: 1
Nr. băi: 2
Structură rezistență: Cărămidă
Tip imobil: Bloc de apartamente
Regim înălțime: P+20E
Nr. terase: 1

Utilități

Destinație
Rezidențial
Pereți
Faianță Vopsea lavabilă
Podele
Gresie Parchet
Ușă intrare
Metal
Uși interior
Lemn
Izolații termice
Exterior Interior
Ferestre cu geam termopan
Aluminiu
Contorizare
Contor căldură Contor gaz
Bucătărie
Mobilată Utilată
Electrocasnice
Aragaz Frigider Hotă Mașină de spălat Mașină spălat vase TV
Diverse
Senzor de fum Sistem de alarmă
Alte spații utile
WC Serviciu Terasă
Facilități imobil
Acoperiș Interfon Lift Spații agrement Videointerfon
Utilități
Curent Apă Canalizare CATV Gaze Telefon
Internet
Cablu Wireless
Servicii imobil
Pază Supraveghere video
Amenajare străzi
Iluminat stradal Mijloace de transport în comun Asfaltate
Comision
standard

Vecinătăți:

Parcul Verdi, Lacul Floreasca,Lacul Tei, Pescariu Sports & Spa, Pescariu AQUA, Farmacia Tei, Kaufland, Carrefour, Promenada Mall, One Rahmaninov, Liceul Teoretic Sfintii Trei Ierarhi, Liceul Teoretic CA Rosetti, Olga Gudynn International Primary Dchool.

Disponibilitate proprietate:

Imediat

Puncte de interes

Mijloace transport
tram-station
Giuseppe Verdi
Stații tramvai aprox. 4 m
bus-station
Statia Ancuta Baneasa, linia 135, N119
Stații autobuz aprox. 464 m
metro-station
Aurel Vlaicu (M2)
Stații metrou aprox. 1342 m
trolleybus-station
Statia Doamna Ghica, linia 66
Stații troleibuz aprox. 1992 m
Școală
school
LICEUL TEORETIC "C.A. ROSETTI"
Școli aprox. 329 m
school
Liceul C.A. Rosetti
Școli aprox. 329 m
kindergarten
Gradinita nr. 7
Gradinițe aprox. 479 m
university
Athenaeum University (en)
Universități aprox. 926 m
Recreere
park
Parcul Verdi
Parcuri aprox. 195 m
restaurant
Pescariu Sports & Spa - .pescariusports.ro (en)
Restaurant aprox. 291 m
sports-ground
Teren sportiv
Terenuri sport aprox. 308 m
supermarket
BILLA - B. Vacarescu
Supermarket aprox. 519 m

Detalii despre preț și costuri

Prețul pe piață

Preț cerut: 467.000 €

Preț min. zonă
Preț max. zonă

100% dintre proprietățile similare ca zonă și nr. camere au prețul cerut mai mic. mai multe...

Bine de știut: prețul unei proprietăți este influențat și de alte caracteristici, cum ar fi: vechime, localizare, vecinătăți, suprafață, compartimentare, amenajări, dotări, etc. mai puțin...

Insight premium disponibil după login

Costuri cu achiziția

Fără credit
Credit ipotecar
Noua casă

i

Costuri adiționale mai puțin știute la achiziție: taxe notariale, comisioane etc.

Insight premium disponibil după login

Proprietăți similare

Apartament cu 3 camere în Floreasca
428.340 €
București, Floreasca
3 camere
86 mp
Etaj 5
Apartament cu 3 camere decomandat în Floreasca
500.000 €
București, Floreasca
3 camere
76,2 mp
Etaj 5
Apartament cu 4 camere decomandat în Floreasca
435.600 €
București, Floreasca
4 camere
107,08 mp
Etaj 8

Detalii de contact

IMOBIL INVEST AGENCY

Victoria Morozinschi Manager

5.00(4 review-uri)

IMOBIL INVEST AGENCY
PRO

Abonează-te la newsletter să fii primul care primește cele mai noi recomandări de proprietăți și sfaturi de la experți.

CONTACT

Creează alertă

Salvează căutarea ca să primești pe email ultimele anunțuri publicate

Apartamente noi cu 3 camere de vânzare în zona Floreasca, Sector 1