5

Apartament Cu 2 Camere De Vanzare - Dinicu Golescu | Gara De Nord

95.000 €

Gara de Nord, București

Nr. cam.:
2
Sup. utilă:
43 mp
Etaj:
Parter / 7
An constr.:
1970
  • • Locație exactă

Descriere apartament

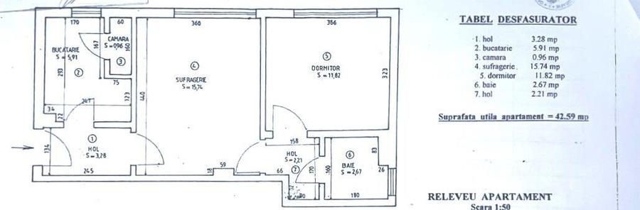
Estate Network va ofera spre vanzare un apartament cu 2 camere situat la parterul unui bloc cu 7 etaje, construit in anul 1970, neincadrat la nici o clasa de risc seismic, din Bd. Dinicu Golescu, langa Gara de Nord. Suprafata utila: 42,59 mp, plan atasat. Se vinde mobilat partial. Nu ramane tot ce se vede in imagini. Pret vanzare: 95,000 EUR. Comision: 2% din pretul vanzarii.
Citește mai mult Citește mai puțin
Confort 2 Semidecomandat Parțial mobilat Aer condiționat Termoficare Renovat Bine întreținut (Bună)

Detalii apartament

ID anunț: XBHG100GD Copiat! 275339086 Copiat!
Actualizat în: 15 Mai 2026
Suprafață utilă totală: 43 mp
Suprafață construită: 58 mp
Nr. bucătării: 1
Nr. băi: 1
Tip imobil: Bloc de apartamente
Tip tranzacție: De vânzare prin agent
Regim înălțime: P+7E
Modalitate de plată: Cash sau Credit

Utilități

Destinație
Rezidențial
Pereți
Faianță
Podele
Gresie Parchet
Ferestre cu geam termopan
PVC
Contorizare
Apometre Contor căldură
Bucătărie
Mobilată Utilată
Facilități imobil
Lift
Utilități
Gaze Curent Apă
Amenajare străzi
Mijloace de transport în comun
Comision
2%

Puncte de interes

Mijloace transport
train-station
Vechea "Gara a Targovistei" astazi parte din Gara de Nord
Stații tren aprox. 113 m
bus-station
Gara de Nord 2
Stații autobuz aprox. 128 m
metro-station
Metrorex. Stația Gara de Nord 2 (M4)(2000)
Stații metrou aprox. 159 m
tram-station
Gara de Nord
Stații tramvai aprox. 343 m
Școală
school
Institutul Medico-Militar
Școli aprox. 126 m
university
Institutul Medico-Militar
Universități aprox. 126 m
kindergarten
Gradinita Zum-zum
Gradinițe aprox. 187 m
school
Gradinita nr.285
Școli aprox. 246 m
Recreere
park
Parc
Parcuri aprox. 119 m
supermarket
Shop & Go - Mega Image
Supermarket aprox. 161 m
sports-ground
Teren sportiv
Terenuri sport aprox. 779 m
hypermarket
Intrarea in caminele C si D din grozavesti
Hipermarket aprox. 809 m

Detalii despre preț și costuri

Prețul pe piață

Preț cerut: 95.000 €

Preț min. zonă
Preț max. zonă

71% dintre proprietățile similare ca zonă și nr. camere au prețul cerut mai mic. mai multe...

Bine de știut: prețul unei proprietăți este influențat și de alte caracteristici, cum ar fi: vechime, localizare, vecinătăți, suprafață, compartimentare, amenajări, dotări, etc. mai puțin...

Acces la informații premium după autentificare
Login Gratuit

Costuri cu achiziția

Fără credit
Credit ipotecar
Noua casă

i

Costuri adiționale mai puțin știute la achiziție: taxe notariale, comisioane etc.

Acces la informații premium după autentificare
Login Gratuit

Proprietăți similare

Apartament cu 2 camere semidecomandat în Gara de Nord
89.900 €
București, Gara de Nord
2 camere
48 mp
Etaj 5
Apartament cu 3 camere, mobilat în Gara de Nord
95.000 €
București, Gara de Nord
3 camere
55 mp
Etaj 10 / 11
Apartament cu 2 camere decomandat, mobilat în Gara de Nord
88.000 €
București, Gara de Nord
2 camere
51 mp
Etaj 3 / 3

Detalii de contact

Abonează-te la newsletter să fii primul care primește cele mai noi recomandări de proprietăți și sfaturi de la experți.

CONTACT

Creează alertă

Salvează căutarea ca să primești pe email ultimele anunțuri publicate

Apartamente cu 2 camere de vânzare în zona Gara de Nord, Sector 1