Apartament tip Duplex 5 Camere I 191 mp I Iancu Nicolae

401.965 € + TVA

Iancu Nicolae, București

Nr. cam.:
5
Sup. utilă:
139,4 mp
Etaj:
2 / 3
An constr.:
2025 (Finalizată)
  • • Locație aproximativă
  • • Vizionare prin apel video

Descriere apartament

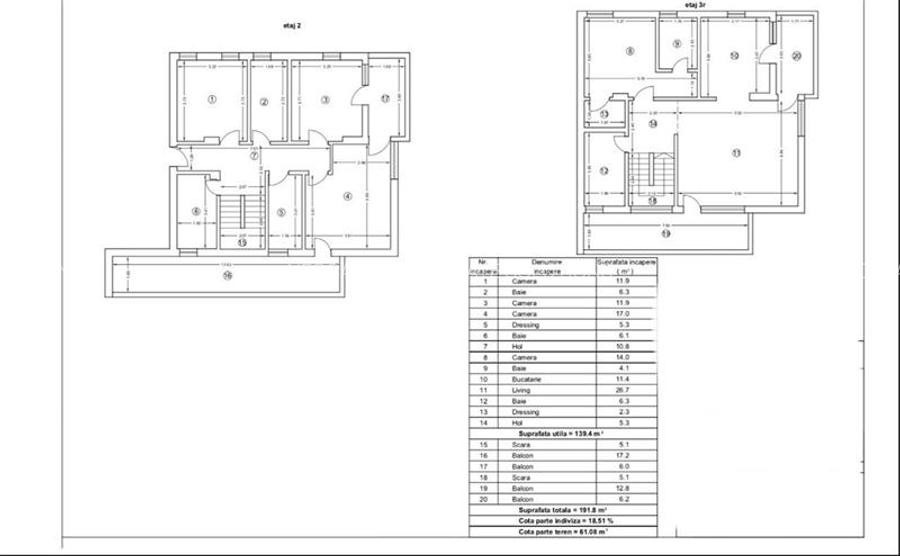
Duplex modern situat in zona Iancu Nicolae intr-un bloc boutique de 3 etaje, finalizat in 2025. Locuinta dispune de 139 mp utili, la care se adauga 4 balcoane ce insumeaza 42 mp, rezultand o suprafata totala de 191 mp. Etajul 2 include trei camere, un dressing, doua bai si doua balcoane. Etajul 3 cuprinde un living de 26,7 mp, o bucatarie, un dormitor cu baie en suite si dressing, o a doua baie si doua balcoane. Apartamentul se vinde in stadiul de constructie, la gri, oferind viitorului proprietar libertatea de a-l amenaja dupa propriile preferinte. Locul de parcare se achizitioneaza separat. Zona Iancu Nicolae este una dintre cele mai apreciate din nordul capitalei, cunoscuta pentru accesul rapid la centre comerciale, restaurante si servicii. In imediata apropiere se afla scoli private precum: Cambridge, British School, Mark Twain si Olga Gudynn, ceea ce face locatia extrem de atractiva pentru familii. Pozele au caracter informativ si includ randari, precum si imagini din stadiul actual al constructiei. ID intern: NEO .
Citește mai mult Citește mai puțin
Decomandat 4 Balcoane / Terase / Logii

Detalii apartament

ID anunț: X71S101P9 Copiat! 275465604 Copiat!
Actualizat în: 22 Aprilie 2026
Suprafață utilă totală: 139.4 mp
Suprafață construită: 191.8 mp
Nr. băi: 4
Structură rezistență: Altele
Tip imobil: Bloc de apartamente
Regim înălțime: P+3E

Utilități

Destinație
Rezidențial
Ușă intrare
Metal
Ferestre cu geam termopan
Aluminiu
Facilități imobil
Lift

Vecinătăți:

Scoala/gradinita, Restaurant/pub, Mall, Parc, Supermarket, Zona comerciala, Autobuz

Puncte de interes

Mijloace transport
bus-station
Jolie Ville Baneasa
Stații autobuz aprox. 513 m
airport
Aeroportul Internațional Băneasa (Aurel Vlaicu) - LRBS (BBU)
Aeroporturi aprox. 1257 m
bus-station
Statia Restaurant Baneasa, linia 148,301
Stații autobuz aprox. 1387 m
tram-station
Drumul Nisipoasa
Stații tramvai aprox. 1877 m
Școală
school
Mark Twain International School
Școli aprox. 745 m
school
British School of Bucharest
Școli aprox. 1962 m
Recreere
restaurant
Phill
Restaurant aprox. 118 m
supermarket
Jolie Ville Galleria
Supermarket aprox. 515 m
park
Parc
Parcuri aprox. 547 m
mall
Baneasa Shopping Center
Mall aprox. 1848 m

Detalii despre preț și costuri

Costuri cu achiziția

Fără credit
Credit ipotecar
Noua casă

i

Costuri adiționale mai puțin știute la achiziție: taxe notariale, comisioane etc.

Insight premium disponibil după login

Proprietăți similare

Apartament cu 4 camere decomandat, mobilat în Iancu Nicolae
370.000 € + TVA
București, Iancu Nicolae
4 camere
135 mp
Parter / 4
Apartament cu 4 camere în Iancu Nicolae
423.240 € + TVA
București, Iancu Nicolae
4 camere
165 mp
Etaj 1
Apartament cu 4 camere în Iancu Nicolae
393.080 € + TVA
București, Iancu Nicolae
4 camere
150 mp
Etaj 2

Detalii de contact

NEOCASA REAL ESTATE SOLUTIONS

Suport Clienti Consultant Imobiliar

NEOCASA REAL ESTATE SOLUTIONS
PRO

Abonează-te la newsletter să fii primul care primește cele mai noi recomandări de proprietăți și sfaturi de la experți.

CONTACT

Creează alertă

Salvează căutarea ca să primești pe email ultimele anunțuri publicate

Apartamente noi cu 4+ camere de vânzare în zona Iancu Nicolae, Sector 1