Apartament 2 camere + parcare - One North Lofts

195.000 €

Pipera, București

Nr. cam.:
2
Sup. utilă:
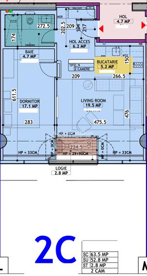
52,8 mp
Etaj:
1 / 6
An constr.:
2025 (Finalizată)
  • • Locație Verificată
  • • Locație exactă

Descriere apartament

Apartamentul de 2 camere situat in ansamblul rezidential One North Lofts ofera un stil de viata urban modern intr-una dintre cele mai dinamice zone din nordul Bucurestiului. Proiectul este dezvoltat de One United Properties, fiind apreciat pentru conceptul sau contemporan si pentru standardele ridicate de constructie. Apartamentul beneficiaza de o compartimentare eficienta, cu living luminos si bucatarie open space, dormitor confortabil si spatii vitrate ample care permit luminii naturale sa patrunda din abundenta. Designul interior este completat de finisaje premium si solutii tehnice moderne, precum incalzirea in pardoseala si sisteme performante de climatizare, oferind un nivel ridicat de confort si functionalitate. Ansamblul One North Lofts se remarca prin arhitectura sa moderna si prin amplasarea excelenta in zona Pipera – Barbu Vacarescu, cu acces rapid catre principalele centre de business din nordul capitalei, restaurante, cafenele si centre comerciale. De asemenea, proiectul beneficiaza de spatii verzi amenajate, securitate si facilitati dedicate rezidentilor. Prin localizarea strategica si conceptul modern al dezvoltarii, acest apartament de 2 camere reprezinta o alegere ideala atat pentru locuire, cat si pentru investitie, intr-una dintre cele mai cautate zone rezidentiale din Bucuresti. Pretul include un loc de parcare, nu se aplica TVA.
Citește mai mult Citește mai puțin
1 Balcon / Terasă / Logie Curte comună Aer condiționat Centrală imobil Încălzire prin pardoseală Beci 1 Parcare

Detalii apartament

ID anunț: XASU0000A Copiat! 275242183 Copiat!
Actualizat în: 10 Martie 2026
Suprafață utilă totală: 55.6 mp
Nr. bucătării: 1
Nr. băi: 1
Structură rezistență: Beton
Tip imobil: Bloc de apartamente
Regim înălțime: P+6E

Utilități

Destinație
Rezidențial
Pereți
Vopsea lavabilă
Podele
Gresie Parchet
Ușă intrare
Metal
Izolații termice
Interior
Ferestre cu geam termopan
Aluminiu
Contorizare
Contor gaz Apometre Contor căldură
Diverse
Senzor de fum Sistem de alarmă Telecomandă poartă garaj Telecomandă poartă acces auto
Alte spații utile
Terasă
Facilități imobil
Spații agrement Lift Videointerfon
Utilități
CATV Canalizare Curent Apă
Internet
Cablu Fibră optică
Servicii imobil
Administrare Pază Supraveghere video
Amenajare străzi
Betonate

Certificat energetic:

Clasa energetică: A

Puncte de interes

Mijloace transport
bus-station
Capat C.F.R Constanta linii : 112,135,445
Stații autobuz aprox. 798 m
tram-station
Statia Gelcap, linia 16, 36
Stații tramvai aprox. 952 m
bus-station
Rocin
Stații autobuz aprox. 954 m
metro-station
Pipera (M2)
Stații metrou aprox. 1267 m
Școală
kindergarten
Gradinita Zece
Gradinițe aprox. 1149 m
school
Scoala Nr.3 Voluntari
Școli aprox. 1295 m
school
Gradinita Happy Univers
Școli aprox. 1538 m
kindergarten
Echilibria 1
Gradinițe aprox. 1609 m
Recreere
restaurant
Q's Inn
Restaurant aprox. 106 m
park
spatiu verde
Parcuri aprox. 192 m
supermarket
Pipera Plaza
Supermarket aprox. 388 m
sports-ground
Teren sportiv
Terenuri sport aprox. 1642 m

Detalii despre preț și costuri

Prețul pe piață

Preț cerut: 195.000 €

Preț min. zonă 112.000 €
Preț max. zonă 250.000 €

92% dintre proprietățile similare ca zonă și nr. camere au prețul cerut mai mic. mai multe...

Bine de știut: prețul unei proprietăți este influențat și de alte caracteristici, cum ar fi: vechime, localizare, vecinătăți, suprafață, compartimentare, amenajări, dotări, etc. mai puțin...

Costuri cu achiziția

Fără credit
9.595 RON
Credit ipotecar
11.535 RON
Noua casă
1.133 RON+ taxe notariale

i

Costuri adiționale mai puțin știute la achiziție: taxe notariale, comisioane etc.

Proprietăți similare

Apartament cu 3 camere semidecomandat în Pipera
194.000 € + TVA
București, Pipera
3 camere
68,8 mp
Etaj 5 / 11
Apartament cu 3 camere semidecomandat în Pipera
205.841 € + TVA
București, Pipera
3 camere
70 mp
Etaj 2 / 4
Apartament cu 3 camere decomandat, mobilat în Pipera
194.900 € + TVA
București, Pipera
3 camere
90 mp
Etaj 2

Detalii de contact

HomePin

Home Pin Real Estate Agency

HomePin

Abonează-te la newsletter să fii primul care primește cele mai noi recomandări de proprietăți și sfaturi de la experți.

CONTACT

Creează alertă

Salvează căutarea ca să primești pe email ultimele anunțuri publicate

Apartamente noi cu 2 camere de vânzare în zona Pipera, Sector 1