Apartament 3 Camere LUX Iancu Nicolae Complex Exclusivist Comision 0

350.980 € + TVA

Pipera, București

Nr. cam.:
3
Sup. utilă:
94,57 mp
Etaj:
Parter / 3
An constr.:
2025 (În construcție)
  • • Comision 0%
  • • Locație aproximativă

Descriere apartament

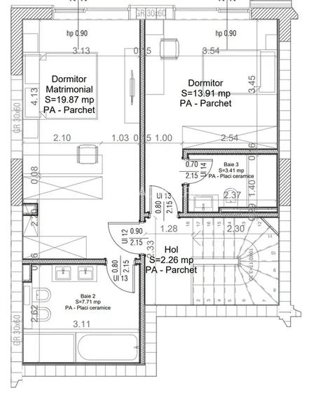
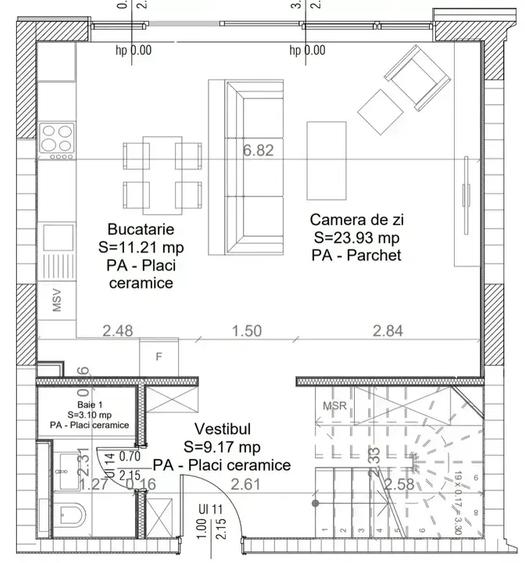
Vă propun spre achiziție un apartament tip duplex, situat într-o zonă premium, în imediata apropiere a pădurii și în centrul zonei Erou Iancu Nicolae. Proprietatea se află în vecinătatea Jolie Ville Galleria și a celor mai prestigioase școli internaționale din București – Cambridge School și Mark Twain. De asemenea, are acces rapid către Băneasa Shopping City, Grădina Zoologică, restaurante, clinici și alte puncte de interes. Imobilul face parte dintr-un proiect boutique exclusivist, format din doar două clădiri cu regim de înălțime P+3, prevăzute cu parcare subterană, lifturi moderne și facilități de top. Apartamentele sunt dispuse pe două niveluri – parter + etaj 1 sau etaj 2 + etaj 3 – cu acces individual prin parter sau etajul superior. Avantajele ansamblului: Înălțime generoasă a camerelor: 3.00 m în zona de zi, 2.80 m în dormitoare Structură fără grinzi, cu planșee realizate prin sistem modern de cabluri pretensionate – ideal pentru remodelare interioară Camere foarte spațioase și compartimentări eficiente Terase și balcoane ample, cu potențial ridicat de amenajare Spații verzi și zone de relaxare, cu acces direct către pădure pentru unele unități Lobby elegant pentru fiecare clădire Parcare subterană înaltă, compatibilă cu sistem tip Klaus, rampă de acces încălzită Acces securizat, monitorizare video 24/7 Lifturi Schindler de ultimă generație Elemente constructive și finisaje premium: Fațade ventilate, izolate cu vată minerală bazaltică, placate cu panouri decorative cu textură de lemn Zidărie exterioară Porotherm: 30 cm exterior, 25 cm între apartamente, 11.5 cm pereți interiori Finisaje interioare de calitate superioară și zugrăveli lavabile premium Sistem Smart Home integrat Gresie și faianță de import Italia, colecții premium Obiecte sanitare de top Uși interioare fabricate în Grecia, cu înălțime extinsă Încălzire în pardoseală cu pompe de căldură Hitachi și ventiloconvectoare dedicate fiecărei camere Control digital al temperaturii prin termostate inteligente și aplicație smartphone Tâmplărie din aluminiu cu profil tripan low-E (producție Belgia) Aparataj electric de top, cu funcționalitate smart Detalii apartament: Suprafață construită: 128,03 mp Suprafață utilă: 94,57 mp Curte: 43,80 mp Prețuri și condiții: Preț apartament: 350.980 EUR + TVA Loc de parcare subteran: 25.000 EUR + TVA (compatibil sistem Klaus) Comision 0% pentru cumpărător Pozele sunt cu titlu informativ, apartamentul se vinde fara mobila. Locație de excepție, într-un cadru verde, exclusivist – ideală pentru o locuință modernă, sigură și rafinată. Pentru informații suplimentare și programarea unei vizionări, vă invit să mă contactați: Cristian Alexe –
+403 ........ Vezi tot numărul
VAUNT ID: 102342
Citește mai mult Citește mai puțin
Confort lux Semidecomandat 1 Balcon / Terasă / Logie Curte comună Aer condiționat Ventiloconvectoare Încălzire prin pardoseală

Detalii apartament

ID anunț: X7QH10UFL Copiat! 270854328 Copiat!
Actualizat în: 22 Ianuarie 2026
Suprafață utilă totală: 94.57 mp
Suprafață construită: 128.03 mp
Nr. băi: 2
Structură rezistență: Beton
Tip imobil: Bloc de apartamente
Regim înălțime: P+3E

Utilități

Destinație
Rezidențial
Pereți
Vopsea lavabilă Faianță
Podele
Gresie Marmură
Ușă intrare
Parchet Metal
Izolații termice
Exterior
Ferestre cu geam termopan
Aluminiu Lemn
Contorizare
Apometre
Diverse
Scară interioară Telecomandă poartă acces auto
Facilități imobil
Videointerfon Interfon Lift
Utilități
CATV Curent Apă Canalizare
Internet
Fibră optică Cablu Wireless
Servicii imobil
Administrare Supraveghere video
Amenajare străzi
Iluminat stradal Mijloace de transport în comun Asfaltate

Certificat energetic:

Clasa energetică: A

Disponibilitate proprietate:

Disponibil

Puncte de interes

Mijloace transport
bus-station
Jolie Ville Baneasa
Stații autobuz aprox. 499 m
Școală
school
Mark Twain International School
Școli aprox. 399 m
school
British School of Bucharest
Școli aprox. 1091 m
kindergarten
Kindergarden
Gradinițe aprox. 1646 m
kindergarten
Echilibria 1
Gradinițe aprox. 1719 m
Recreere
supermarket
Lidl Pipera
Supermarket aprox. 330 m
restaurant
Restaurant Tecadra
Restaurant aprox. 617 m
park
Loc de joaca
Parcuri aprox. 935 m
cafe
Doncafe Brasserie
Cafenea aprox. 1009 m

Detalii despre preț și costuri

Prețul pe piață

Preț cerut: 350.980 €

Preț min. zonă 159.990 €
Preț max. zonă 395.000 €

89% dintre proprietățile similare ca zonă și nr. camere au prețul cerut mai mic. mai multe...

Bine de știut: prețul unei proprietăți este influențat și de alte caracteristici, cum ar fi: vechime, localizare, vecinătăți, suprafață, compartimentare, amenajări, dotări, etc. mai puțin...

Costuri cu achiziția

Fără credit
17.476 RON
Credit ipotecar
20.391 RON
Noua casă
2.303 RON+ taxe notariale

i

Costuri adiționale mai puțin știute la achiziție: taxe notariale, comisioane etc.

Proprietăți recomandate

Detalii de contact

R&D ADVISERS

Cristian Alexe Project Manager

4.93(5 review-uri)

R&D ADVISERS
PRO

Abonează-te la newsletter să fii primul care primește cele mai noi recomandări de proprietăți și sfaturi de la experți.

CONTACT

Creează alertă

Salvează căutarea ca să primești pe email ultimele anunțuri publicate

Apartamente cu 3 camere de vânzare în zona Pipera, Sector 1