Apartament 2 camere LUX | My Place Residence Pipera | Mobilat & Utilat

190.000 € + TVA

Pipera, București

Nr. cam.:
2
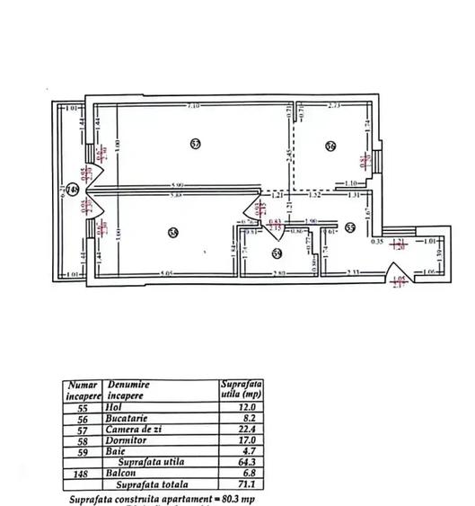
Sup. utilă:
71,1 mp
Etaj:
1 / 5
An constr.:
2023 (Finalizată)
  • • Locație aproximativă

Descriere apartament

Mobilat & utilat complet | Design interior premium Vă prezentăm spre vânzare un apartament de excepție, situat în complexul rezidențial My Place Residence, una dintre cele mai apreciate locații premium din nordul Capitalei, chiar lângă Porsche Pipera. Proprietatea este complet mobilată și utilată LUX, cu design realizat de designer de interior, fiecare element fiind ales cu atenție pentru un stil de viață modern, elegant și confortabil. Detalii apartament - 2 camere cu bucătărie open-space - Etaj 1 - Parchet din lemn triplu stratificat – calitate superioară - Finisaje premium în întreg apartamentul - Mobilier și electrocasnice de top, totul inclus - Terasă generoasă, cu acces din living și din dormitor - Compartimentare eficientă, spații luminoase și aerisite - Apartament gata de mutare, fără investiții suplimentare Localizare & accesibilitate Complexul este amplasat într-o zonă liniștită și selectă, cu acces rapid către principalele puncte de interes din Pipera și nordul Bucureștiului. Transport în comun: - Stații de autobuz la câteva minute de mers pe jos - Acces facil către zonele de business Pipera, Aviației, Barbu Văcărescu - Conexiune rapidă către arterele principale ale orașului Magazine & facilități în imediata apropiere: - Kaufland Pipera - Lidl - Supermarketuri, magazine de proximitate - Farmacii, bănci, săli de sport - Restaurante și cafenele - Centre comerciale precum Promenada Mall – la câteva minute cu mașina Avantaje - Complex rezidențial premium, nou - Zonă foarte bună, liniștită, ideală pentru locuit - Potrivit atât pentru rezidență proprie, cât și pentru investiție - Standard ridicat de calitate în tot ansamblul Preț: - 190.000 € + TVA - Loc de parcare subteran disponibil separat: 20.000 € + TVA Pentru detalii suplimentare sau programarea unei vizionări, vă stăm la dispoziție. Un apartament premium într-o locație premium — o oportunitate inedita în nordul Capitalei. Agent: Nicoleta Necula Contact: VAUNT ID: 109464
Citește mai mult Citește mai puțin
Confort lux Decomandat Mobilat Lux 1 Balcon / Terasă / Logie Aer condiționat Centrală imobil Încălzire prin pardoseală 1 Parcare 1 Garaj Bine întreținut (Bună)

Detalii apartament

ID anunț: X7QH200N8 Copiat! 274877675 Copiat!
Actualizat în: 23 Februarie 2026
Suprafață utilă totală: 71.1 mp
Suprafață construită: 80.3 mp
Nr. bucătării: 1
Nr. băi: 1
Structură rezistență: Beton
Tip imobil: Bloc de apartamente
Regim înălțime: P+5E

Utilități

Destinație
Rezidențial
Pereți
Vopsea lavabilă Faianță
Podele
Gresie
Ușă intrare
Parchet Metal
Uși interior
Celulare
Izolații termice
Interior Exterior
Ferestre cu geam termopan
PVC
Contorizare
Apometre Contor gaz
Bucătărie
Utilată Mobilată
Electrocasnice
Mașină de spălat Frigider Aragaz Hotă TV
Diverse
Senzor de fum
Alte spații utile
Terasă
Facilități imobil
Videointerfon Interfon Lift
Utilități
CATV Telefon Curent Apă Canalizare
Internet
Fibră optică Cablu Wireless
Servicii imobil
Administrare Menaj
Amenajare străzi
Iluminat stradal Mijloace de transport în comun Asfaltate

Certificat energetic:

Clasa energetică: A

Puncte de interes

Mijloace transport
bus-station
Capat C.F.R Constanta linii : 112,135,445
Stații autobuz aprox. 539 m
tram-station
Rocin
Stații tramvai aprox. 902 m
metro-station
Pipera (M2)
Stații metrou aprox. 1123 m
airport
Aeroportul Internațional Băneasa (Aurel Vlaicu) - LRBS (BBU)
Aeroporturi aprox. 1866 m
Școală
kindergarten
Gradinita Zece
Gradinițe aprox. 1310 m
school
Colegiul Tehnic Edmond Nicolau, fostul Electronica
Școli aprox. 1534 m
school
Scoala Nr.3 Voluntari
Școli aprox. 1555 m
kindergarten
Echilibria 1
Gradinițe aprox. 1905 m
Recreere
restaurant
Q's Inn
Restaurant aprox. 403 m
park
spatiu verde
Parcuri aprox. 477 m
supermarket
Pipera Plaza
Supermarket aprox. 691 m
sports-ground
Teren sportiv
Terenuri sport aprox. 1365 m

Detalii despre preț și costuri

Prețul pe piață

Preț cerut: 190.000 €

Preț min. zonă 112.000 €
Preț max. zonă 250.000 €

57% dintre proprietățile similare ca zonă și nr. camere au prețul cerut mai mare. mai multe...

Bine de știut: prețul unei proprietăți este influențat și de alte caracteristici, cum ar fi: vechime, localizare, vecinătăți, suprafață, compartimentare, amenajări, dotări, etc. mai puțin...

Costuri cu achiziția

Fără credit
10.799 RON
Credit ipotecar
12.888 RON
Noua casă
1.312 RON+ taxe notariale

i

Costuri adiționale mai puțin știute la achiziție: taxe notariale, comisioane etc.

Proprietăți recomandate

Detalii de contact

R&D ADVISERS

Nicoleta Necula

R&D ADVISERS
PRO

Abonează-te la newsletter să fii primul care primește cele mai noi recomandări de proprietăți și sfaturi de la experți.

CONTACT

Creează alertă

Salvează căutarea ca să primești pe email ultimele anunțuri publicate

Apartamente noi cu 2 camere de vânzare în zona Pipera, Sector 1