Descopera un apartament spectaculos, complet renovat in 2025, amplasat intr-un imobil interbelic impunator, construit in 1935 – o fosta vila boiereasca transformata intr-o bijuterie arhitecturala a zilelor noastre. Proprietatea imbina farmecul autentic al cladirilor istorice cu rafinamentul materialelor moderne si atentia desavarsita pentru detalii.
Cu o inaltime impresionanta de 4 metri, spatiul emana eleganta, lumina si proportii nobile, accentuate de finisajele de cea mai inalta calitate:
• Pereti placati cu ceramica premium,
• Parchet din lemn masiv fara noduri,
• Baterii si accesorii sanitare de top,
• Oglinzi full-height in bai,
• Iluminat ambiental inteligent, cu LED-uri si spoturi incastrate.
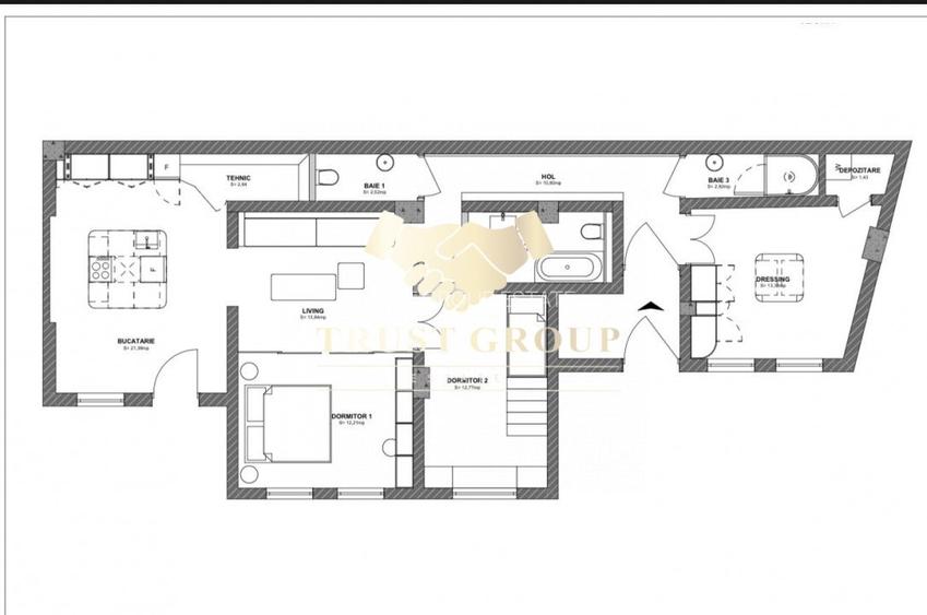
Apartamentul are o suprafata utila de 100 mp si este compartimentat astfel:
• Living spatios si elegant,
• Bucatarie generoasa, cu insula centrala – complet echipata, un spatiu modern si perfect pentru socializare,
• Trei dormitoare (unul transformat in dressing spectaculos din sticla, realizat la comanda),
• Camera tehnica dedicata,
• Terasa tip veranda in stil american,
• Acces catre o gradina comuna verde si aerisita, unde exista si posibilitatea de parcare pentru mai multe masini.
Intreaga instalatie electrica si sanitara a fost refacuta integral, iar sistemul de incalzire este complet nou – centrala proprie si calorifere de cea mai buna calitate.
Mobilierul a fost realizat integral la comanda, din materiale nobile si cu executie impecabila. Acesta nu este inclus in pretul afisat, insa poate fi achizitionat separat pentru 20.000 euro, la alegerea viitorului proprietar.
Situat in zona Armeneasca, una dintre cele mai frumoase si linistite zone ale Bucurestiului, apartamentul ofera intimitate, rafinament si acces facil catre centrul orasului, intr-un cadru verde si elegant.
Aceasta nu este doar o locuinta, ci o declaratie de stil si bun gust.
98%dintre proprietățile similare ca zonă și nr. camere au prețul cerutmai mic.
mai multe...
Bine de știut: prețul unei proprietăți este influențat și de alte caracteristici, cum ar fi: vechime, localizare, vecinătăți, suprafață, compartimentare, amenajări, dotări, etc.
mai puțin...
Costuri cu achiziția
Fără credit
16.220 RON
Credit ipotecar
18.979 RON
Noua casă
2.117 RON+ taxe notariale
i
Costuri adiționale mai puțin știute la achiziție: taxe notariale, comisioane etc.
Sediul central - Timișoara
Bulevardul Victor Babeș nr. 2, 300230, Timișoara, România
Tel: +40.374.40.44.98 / Fax: +40.256.401.179
Email: suport@imobiliare.ro
Luni - Vineri 08:00 - 20:00
Punct de lucru - București: Iride Business Park, Bld. Dimitrie
Pompeiu 9-9A, Clădirea B2B,
020335, Sector 2, București, România
CONTACT
Sediul central - Timișoara
Bulevardul Victor Babeș nr. 2, 300230, Timișoara, România
Tel: +40.374.40.44.98 / Fax: +40.256.401.179
Email: suport@imobiliare.ro
Luni - Vineri 08:00 - 20:00
Punct de lucru - București: Iride Business Park, Bld. Dimitrie
Pompeiu 9-9A, Clădirea B2B,
020335, Sector 2, București, România
UAUIM -Universitatea de Arhitectura si Urbanism Ion Mincu
aprox.
394 m
Facultatea de Stiinte
aprox.
409 m
Facultatea de Matematica-Informatica
aprox.
430 m
Facultatea de Farmacie
aprox.
447 m
Facultatea de Farmacie/Pharmacy Faculty
aprox.
451 m
Palatul Fundației Universitare "Carol I"
aprox.
800 m
University of Bucharest - Faculty of Foreign Languages and Literatures (en)
aprox.
840 m
Centrul de Limbi Straine Ariel
aprox.
843 m
Rectoratul UMF "Carol Davila"
aprox.
849 m
Institutul Bancar Român
aprox.
857 m
Facultatea de Stiinte Politice
aprox.
992 m
Gradinita nr.4 "Lizuca"
aprox.
386 m
Gradinita nr.203 (fosta Clementa)
aprox.
705 m
Gradinita nr. 203 program prelungit
aprox.
730 m
Gradinita numarul 257
aprox.
983 m
Gradinita Prikindel
aprox.
1120 m
Gradinita Magica
aprox.
1145 m
Gradinita Ioanid
aprox.
1188 m
Ioanid
aprox.
1200 m
Gradinita numarul 133
aprox.
1204 m
Cresa Micii Poznasi
aprox.
1221 m
Gradinita nr.192, "Pisicile Aristocrate"
aprox.
1258 m
Gradinita nr. 192 (Pisicile aristocrate)
aprox.
1272 m
Gradinita
aprox.
1287 m
Gradinita nr. 116
aprox.
1293 m
Gradinita Barba Cot
aprox.
1340 m
Pravalia Maestrului
aprox.
454 m
Mega Image Paleologu
aprox.
496 m
Cocor
aprox.
519 m
BILLA - Cocor
aprox.
529 m
Mag.Victoria
aprox.
663 m
Km 0
aprox.
671 m
dm
aprox.
675 m
Carrefour Unirii Non-Stop
aprox.
686 m
Carrefour Unirii
aprox.
689 m
Mega Image
aprox.
720 m
Mega Image Rosetti Non-Stop
aprox.
752 m
OK Non-stop Supermarket (en)
aprox.
801 m
OK Non-Stop
aprox.
801 m
ilanplant
aprox.
876 m
Mega Image - Icoanei
aprox.
961 m
Parcare
aprox.
28 m
Parcare
aprox.
33 m
Parcare privata
aprox.
154 m
Parcare
aprox.
289 m
Parcare
aprox.
313 m
Parcare
aprox.
321 m
Parcare
aprox.
327 m
Parcare subterană Piața Universității
aprox.
329 m
Parcare
aprox.
329 m
Parcare cu plata
aprox.
351 m
Parcare cu plata
aprox.
361 m
Parcare
aprox.
368 m
Parcare cu plata
aprox.
375 m
Parcare cu plata
aprox.
376 m
Parcare
aprox.
399 m
Parc
aprox.
129 m
Parc
aprox.
132 m
Parcul Colțea
aprox.
136 m
Parc
aprox.
137 m
Parc
aprox.
142 m
Parc
aprox.
147 m
Spatiu verde
aprox.
190 m
Rond Piața Universității
aprox.
211 m
Parc
aprox.
213 m
Parc
aprox.
218 m
Sfantul Gheorghe
aprox.
251 m
Parcul Sf. Gheorghe
aprox.
263 m
Piata Universitatii
aprox.
345 m
Parc
aprox.
519 m
Parc
aprox.
537 m
Piata Rosetti
aprox.
181 m
Piata Universitatii
aprox.
226 m
Piata Roma
aprox.
390 m
Piata Timpului
aprox.
478 m
Piața Drapelului (Tricolorului)
aprox.
575 m
Piața Sfântul Anton
aprox.
594 m
Piata Revolutiei
aprox.
750 m
Piata Latina
aprox.
812 m
Piata Natiunilor Unite
aprox.
906 m
Piata Bibescu
aprox.
1088 m
Piața Constituției
aprox.
1365 m
Piața Romană
aprox.
1495 m
Piata Bucur
aprox.
1521 m
Piața Regina Maria
aprox.
1899 m
Piata Emil Cioran (Vergilius) (en)
aprox.
1991 m
Teren sportiv
aprox.
718 m
Teren sportiv
aprox.
900 m
Teren sportiv
aprox.
1155 m
Teren sportiv
aprox.
1333 m
Teren sportiv
aprox.
1493 m
Baza sportiva Universitatea Bucuresti
aprox.
1738 m
teren tenis
aprox.
1782 m
Farmacon CO Impex
aprox.
84 m
Reteta
aprox.
112 m
HelpNet
aprox.
117 m
General Smart Farm
aprox.
166 m
Farmacia Coltea
aprox.
196 m
Sensiblu
aprox.
232 m
Simidon
aprox.
319 m
Sensiblu
aprox.
381 m
belladona
aprox.
416 m
Gema Farm Impex
aprox.
430 m
Farmacia Tarsis Impex
aprox.
440 m
Farmacia Nr. 1
aprox.
460 m
Farmacia Artafarm
aprox.
473 m
Farmacia 2NA
aprox.
479 m
Royal Blu Pharmacy
aprox.
491 m
Spitalul Colțea
aprox.
116 m
WORLD CLINIC - O viata fara alergii ! (en)
aprox.
433 m
Centrul Medical Batistei
aprox.
460 m
Cabinet stomatologic (en)
aprox.
492 m
Policlinica (en)
aprox.
495 m
MediDent
aprox.
508 m
Centru medical MEDSANA
aprox.
509 m
Art Implant
aprox.
520 m
Medident Dental X-ray
aprox.
522 m
Spitalul Clinic Prof. Dr. Doc Ovidiu Marina
aprox.
654 m
Institutul National de Recuperare
aprox.
667 m
Clinica Reumatologie "Dr. Ion Stoia"
aprox.
674 m
ProctoMed
aprox.
724 m
INGG Ana Aslan Spatarului nr. 15 (en)
aprox.
724 m
Clinica de Stomatologie
aprox.
836 m
Restaurant Dumbrava
aprox.
77 m
Aria Burger
aprox.
122 m
Rossetya
aprox.
141 m
Cantina Arhitecturii
aprox.
144 m
Taie Crapu' - Bar (en)
aprox.
145 m
Rossetya
aprox.
148 m
Coltea Kebab Non Stop
aprox.
207 m
Shaorma AlaTurka
aprox.
212 m
Famous - shaorma
aprox.
213 m
La Placinte
aprox.
227 m
Golden Falcon
aprox.
241 m
fast food Non-Stop
aprox.
249 m
Restaurant Golden Falcon
aprox.
253 m
Shaorma / Falafel Alice
aprox.
268 m
Restaurantul Doamnei
aprox.
310 m
Underworld
aprox.
104 m
Epic
aprox.
119 m
Macaz Bar Teatru Coop
aprox.
251 m
Dianei Patru
aprox.
279 m
Galliano Club
aprox.
316 m
Chat noir
aprox.
359 m
Expat
aprox.
409 m
Roter Heller
aprox.
412 m
Harley
aprox.
414 m
The Elbow Room
aprox.
427 m
The Drunken Lords
aprox.
428 m
Colorteca
aprox.
430 m
Tiki
aprox.
436 m
Hattrick
aprox.
443 m
Tralala
aprox.
451 m
The Living Room
aprox.
134 m
Bernschutz and Co
aprox.
245 m
T-zero
aprox.
269 m
T-zone
aprox.
269 m
Gio Cafe
aprox.
286 m
Iguana Cafe
aprox.
316 m
ART Cafe
aprox.
319 m
DDB caffe
aprox.
330 m
Godot
aprox.
361 m
Tucano Cofee
aprox.
372 m
Cafeneaua liberala
aprox.
420 m
La Muse
aprox.
456 m
Demmers Teahouse
aprox.
464 m
Van Gogh
aprox.
478 m
Klein Cafe
aprox.
484 m
Clock`s
aprox.
234 m
Club Surubelnita
aprox.
244 m
Have a Cigar
aprox.
350 m
Hanul cu Tei
aprox.
362 m
Club A
aprox.
367 m
Pebeo
aprox.
375 m
Dharma
aprox.
380 m
Manasia Hub
aprox.
384 m
Argentin
aprox.
386 m
Kulturhaus
aprox.
408 m
S.A.L.T.
aprox.
411 m
Iron City
aprox.
416 m
Legacy
aprox.
435 m
Gang Lads
aprox.
435 m
Charlatans Irish Pub
aprox.
440 m
Banca Transilvania - Ag. Rosetti
aprox.
157 m
BRD Rosetti
aprox.
165 m
Volksbank Coltei
aprox.
175 m
BCR
aprox.
221 m
Raiffeisen Bank
aprox.
243 m
Banca Transilvania - Ag. Lipscani
aprox.
306 m
Banca Transilvania
aprox.
328 m
Unicredit Èširiac Bank
aprox.
328 m
Banca Comerciala Romana
aprox.
331 m
CreditEurope Bank Doamnei
aprox.
335 m
Palatul Societății de Asigurări "Generala"(1906)
aprox.
339 m
Banca Transilvania - Ag. Bratianu
aprox.
356 m
ATM - Raiffeisen Bank - Asirom
aprox.
363 m
Bancpost
aprox.
396 m
Raiffeisen Bank
aprox.
403 m
Zona Ștefan cel Mare - Dacia - Eminescu - Armenească este destul de bine conectată cu alte cartiere din București prin intermediul mijloacelor de transport în comun. Printre acestea amintim autobuzul 605 pe care îl poți lua pentru a ajunge la mall-ul Băneasa Shopping City, tramvaiul 16 care te poate ajuta să ajungi la Piața Sf. Vineri și troleibuzul 86 care oferă o legătură directă cu Gara de Nord. Mai multe stații de metrou sunt și ele disponibile în apropiere. Este vorba despre Ștefan cel Mare și Obor, aflate pe magistrala 1 Dristor - Pantelimon, și despre Piața Romană și Universitate situate pe traseul magistralei 2 Berceni-Pipera. Consultă harta pentru a afla poziționarea exactă a stațiilor mijloacelor de transport în comun.
În zona Ștefan cel Mare - Dacia - Eminescu - Armenească vei găsi mai multe unități de învățământ, de stat și private. Amintim astfel Colegiul Național Școala Centrală de lângă Parcul Grădina Icoanei, Colegiul Național "Spiru Haret" de pe Strada Italiană, Colegiul Național "Cantemir Vodă" și Liceul Economic "Virgil Madgearu", ambele situate pe Bulevardul Dacia. Școala Sanitară Postliceală "Carol Davila" se află și ea în această zonă, iar Academia de Studii Economice din București poate fi găsită în apropiere, la Piața Romană. Consultă harta pentru a vedea care vor fi cele mai apropiate grădinițe, școli și licee de viitoarea ta locuință.
În această zonă vei găsi, în principal, magazine mici și câteva supermarketuri. La intersecția dintre Bulevardul Dacia și Strada Vasile Lascăr vei avea la dispoziție Piața Gemeni și un concept store Mega Image. Cel mai apropiat mall este situat în zona Obor. Este vorba despre Veranda Mall, unul dintre cele mai noi astfel de centre comerciale din București. Tot aici găsești magazinul Bucur Obor și o piață. Cu mașina poți ajunge destul de rapid și la mall-ul Promenada sau la complexul comercial cu magazin Kaufland și Carrefour Market de pe Strada Barbu Văcărescu. Consultă harta și află ce alte opțiuni mai ai aproape de viitoarea ta casă, dar și în împrejurimi.
Îți recomandăm să verifici dacă există posibilitatea închirierii unui loc de parcare în apropierea locuinței de care ești interesat. Poți face acest lucru apelând la Serviciul Parcări din cadrul ADP Sector 2. Atunci îți aducem în atenție faptul că Bulevardul Dacia, Strada Mihai Eminescu și Strada Polonă sunt unele dintre cele mai circulate din această zonă. Trafic intens vei întâlni, totodată, la intersecția dintre Calea Dorobanți, Bulevardul Dacia și Strada Mihai Eminescu. Aglomerație vei găsi și pe Bulevardul Ștefan cel Mare, mai ales la orele de vârf și în zilele în care se organizează evenimente sportive în cadrul stadionului Dinamo. Consultă harta și vezi unde se găsesc principalele parcări din această zonă.
În zona Ștefan cel Mare - Dacia - Eminescu - Armenească se organizează periodic diferite evenimente, de la ateliere, la festivaluri și demonstrații de artă stradală. Dacă te vei muta în această parte a orașului, vei avea la doi pași de casă mai multe ceainării, restaurante, spații unde se organizează jocuri de tip escape room și trei teatre - Țăndărică, Metropolis și Bulandra. Pentru evenimente culturale și seri de film vei putea merge pe Bulevardul Dacia, la Institutul Francez din București. Ajungi repede și în centru, unde poți fi spectatorul unei piese puse în scenă de actorii Teatrului Național București. Parcurile Grădina Icoanei și Ioanid, deși sunt destul de restrânse ca suprafață, sunt unele dintre cele mai frumoase din această parte a orașului. Totodată, în nordul acestei zone, în imediata apropiere a Șoselei Ștefan cel Mare, vei găsi Circul Metropolitan București și parcul acestuia, iar în vecinătatea lor Stadionul Dinamo și complexul său sportiv. Nu uita, totodată, că din această zonă vei ajunge destul de rapid în Centrul Vechi, unde pe lângă terase și restaurante găsești și câteva obiective turistice care merită vizitate măcar o dată. Află ce alte puncte de interes găsești în zona Ștefan cel Mare - Dacia - Eminescu - Armenească și din vecinătatea acesteia. Consultă harta.
Dacă te vei muta în această zonă, vei avea la dispoziție mai multe spitale și clinici private. Printre acestea se numără Spitalul Clinic Dr. Ion Cantacuzino din zona Pieței Gemeni și Spitalul Ion Stroia . Alte unități sanitare din vecinătate sunt Spitalul Clinic Colentina, Spitalul Sf. Ștefan, Spitalul Clinic de Urgență București (cunoscut și ca Floreasca) și Spitalul Euroclinic din rețeaua privată de sănătate Regina Maria. Toate acestea sunt concentrate în nordul zonei Ștefan cel Mare - Dacia - Eminescu - Armenească, în vecinătatea Stadionului Dinamo și a Parcului Circului. Vezi pe hartă localizarea exactă a unităților medicale de mai sus.
Presărate pe străzile din această zonă găsești mai multe terase și restaurante mici. Câteva dintre cele mai cochete se află în vechiul cartier Armenesc. De aici ajungi extrem de repede și în Centrul Vechi al orașului, pentru mai multă diversitate. Fiind atât de aproape de centrul orașului, vei avea la dispoziție extrem de multe opțiuni. Restaurantele și cafenelele din Dorobanți sau de pe Calea Floreasca pot fi cu siguranță pe gustul tău. Dacă vrei să faci și o plimbare, să admiri arhitectura frumoasă a vechilor clădiri din București și să te oprești la o cafea sau la o prăjitură, atunci Calea Victoriei poate fi ideală. Pentru o mică gustare sau un meniu fast food ai mai multe variante în zona Obor, iar dacă te grăbești atunci poți încerca drive through-ul McDonald"™s de pe Strada Barbu Văcărescu. Aruncă o privire pe hartă și vezi ce alte restaurante, terase sau cafenele ai în zonă.
Găsești mai multe sucursale bancare și ATM-uri în special pe Șoseaua Ștefan cel Mare. Aruncă o privire pe hartă și vezi ce alte opțiuni găsești în apropierea viitoarei tale locuințe.
Înainte să pleci...
Ești sigur că ai văzut și aceste proprietăți?
395.000 € + TVA
București, Armeneasca
2 camere
82,2 mp
Parter
420.000 €
București, Armeneasca
5 camere
181 mp
Etaj 2 / 2
395.000 € + TVA
București, Armeneasca
3 camere
96 mp
Parter / 3
Creează alertă
Salvează căutarea ca să primești pe email ultimele anunțuri publicate
Apartamente cu 4+ camere de vânzare în zona Armeneasca, Sector 2
Cere detalii prin email
*
*
*
*
Detaliile tale de contact vor fi partajate cu Trust Group Estate
Asigurare de viață/lună Costul este variabil. În funcție de banca aleasă, procentul variază între 0.0259% și 0.035% din soldul creditului.
Costuri cu achiziția18.979 RON
Comision agenție Întreabă agenţia
Onorariu notarial13.255 RON
Taxă întabulare OCPI2.965 RON
Autentificare contract credit2.759 RON
Preț de achiziție1.976.976 RON
Preț locuință1.976.976 RON
TVA 0%Inclus în prețul cerut
Preț de achiziție1.976.976 RON
Preț locuință1.976.976 RON
TVA 0%
Inclus în prețul cerut
Avans minim1.370.636 RON
Credit pe 30 de ani606.341 RON
Cost achitat în prima lună
Taxa evaluare imobil(până la)
575 RON
Rata lunară (variabilă)4.260 RON
Depozit colateral12.780 RON
Comision de garantare FNGCIMM165 RON
Asigurare anuală imobil1.977 RON
Poliță PAD130 RON
Tarif arhivă electronică102 RON
Costuri adiționale2.117 RON + taxe notariale
Asigurare viață și complexă (opțională)Costul este variabil. În funcție de banca aleasă, procentul variază între 0.0259% și 0.035% din soldul creditului
Onorariu notarialconform tarif notarial
Taxă întabulare OCPI2.117 RON
i
Toate valorile de mai sus sunt estimative și nu reprezintă în mod obligatoriu costurile exacte pe care le veți primi de la companiile/instituțiile prin care veți încheia tranzacția.