SelectHomes va prezinta in urmatorul tur virtual un apartament spatios si modern, pozitionat pe Strada Mihai Eminescu.
Pentru o prima vizionare va invitam sa accesati turul virtual/plimbare virtuala.
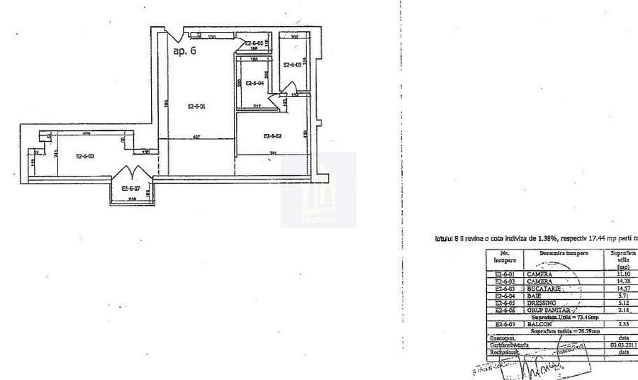
Apartamentul se afla la etajul 2/7 in bloc finalizat in anul 2025, are o suprafata utila de 74mp+2mp terasa si este compartimentat astfel : living 31mp, bucatarie semi-deschisa, dormitor cu baie en-suite, dressing, grup sanitar.
Pretul de vanzare este de 298.500 euro + TVA. Se vinde asa cum este prezentat in poze/turul virtual.
Finisaje si dotari: centrala imobil, incalzire prin ventiloconvectoare, AC centralizat, parchet triplustratificat, tamplarie aluminiu.
In complex mai sunt disponibile spre vanzare doua apartamente de 3 camere si doua apartamente de 4 camere cu suprafete utile cuprinse intre 89mp si 130mp si compartimentari diferite.
Va stam la dispozitie pentru stabilirea unei vizionari sau orice detaliu aditional.
Citește mai mult
Citește mai puțin
Confort 1
Nedecomandat
Acceptă animale de companie
Nemobilat
1 Balcon / Terasă / Logie
Aer condiționat
Centrală imobil
Încălzire prin pardoseală
94%dintre proprietățile similare ca zonă și nr. camere au prețul cerutmai mic.
mai multe...
Bine de știut: prețul unei proprietăți este influențat și de alte caracteristici, cum ar fi: vechime, localizare, vecinătăți, suprafață, compartimentare, amenajări, dotări, etc.
mai puțin...
Costuri cu achiziția
Fără credit
15.302 RON
Credit ipotecar
17.948 RON
Noua casă
1.981 RON+ taxe notariale
i
Costuri adiționale mai puțin știute la achiziție: taxe notariale, comisioane etc.
Sediul central - Timișoara
Bulevardul Victor Babeș nr. 2, 300230, Timișoara, România
Tel: +40.374.40.44.98 / Fax: +40.256.401.179
Email: suport@imobiliare.ro
Luni - Vineri 08:00 - 20:00
Punct de lucru - București: Iride Business Park, Bld. Dimitrie
Pompeiu 9-9A, Clădirea B2B,
020335, Sector 2, București, România
CONTACT
Sediul central - Timișoara
Bulevardul Victor Babeș nr. 2, 300230, Timișoara, România
Tel: +40.374.40.44.98 / Fax: +40.256.401.179
Email: suport@imobiliare.ro
Luni - Vineri 08:00 - 20:00
Punct de lucru - București: Iride Business Park, Bld. Dimitrie
Pompeiu 9-9A, Clădirea B2B,
020335, Sector 2, București, România
Metrorex. Stația Obor (M1)(1989)(Fosta statie de tramvai subterana)
aprox.
821 m
Statia Soseaua Mihai Bravu, linia 14
aprox.
1169 m
Metrorex. Stația Ștefan cel Mare (M1)(1989)
aprox.
1182 m
Statia Metrou Piata Romana(M2)Metrorex
aprox.
1399 m
Metrorex. Stația Piața Romană (M2)(1988)
aprox.
1421 m
Piata Romana (M2)
aprox.
1421 m
Statia Metrou Piata Romana(M2)Metrorex
aprox.
1428 m
Metrorex. Stația Universitate (M2)(1987)
aprox.
1498 m
Universitate (M2)
aprox.
1555 m
Statia Metrou Piata Universitatii(M2)Metrorex
aprox.
1565 m
Statia Metrou Piata Universitatii(M2)Metrorex
aprox.
1598 m
Colegiul National "Cantemir-Voda"
aprox.
200 m
Gradinita Magnolia
aprox.
211 m
ȘCOALA DE ARTE ȘI MESERII NR. 3
aprox.
285 m
Scoala de Arte si Meserii Nr. 3
aprox.
300 m
Grădinița (en)
aprox.
367 m
Scoala nr. 23
aprox.
389 m
Școala Nr. 23 Sf. Silvestru (en)
aprox.
389 m
Scoala Postliceala Carol Davila (en)
aprox.
470 m
Scoala Pentru Hipoacuzici
aprox.
485 m
Liceul Tehnologic Special nr. 3
aprox.
491 m
Gradinita Montessori
aprox.
643 m
Scoala Nr. 50
aprox.
652 m
Cursuri Paleologu
aprox.
653 m
Colegiul National Bilingv "George Cosbuc"
aprox.
709 m
Scoala Postliceala "Sf. Vasile cel Mare" - .scoalasanitara.ro
aprox.
712 m
Gradinita numarul 8
aprox.
202 m
Gradinita numarul 257
aprox.
591 m
Gradinita numarul 133
aprox.
698 m
Gradinita
aprox.
743 m
Gradinita Ioanid
aprox.
929 m
Ioanid
aprox.
944 m
Gradinita nr. 138 cu program prelungit
aprox.
957 m
Gradinita Magica
aprox.
1086 m
Amalia's Kindergarten (en)
aprox.
1128 m
Gradinita nr.203 (fosta Clementa)
aprox.
1140 m
Gradinita nr. 203 program prelungit
aprox.
1144 m
Gradinita nr.4 "Lizuca"
aprox.
1213 m
Gradinita Waldorf
aprox.
1280 m
Gradinita nr. 85
aprox.
1302 m
Gradinita nr. 252 cu program prelungit
aprox.
1419 m
CROS - Universitatea Alternativa
aprox.
982 m
Universitatea din Bucuresti - Facultatea de Stiinte Politice
aprox.
987 m
Facultatea de Stiinte Politice
aprox.
998 m
Facultatea de Instalatii (en)
aprox.
1097 m
Rectoratul UMF "Carol Davila"
aprox.
1177 m
Universitatea Spiru Haret - Facultatea de Medicina veterinara
aprox.
1206 m
University of Bucharest - Faculty of Foreign Languages and Literatures (en)
aprox.
1274 m
Centrul de Limbi Straine Ariel
aprox.
1282 m
ASE - Cibernetica
aprox.
1326 m
Facultatea de Farmacie
aprox.
1332 m
Facultatea de Farmacie/Pharmacy Faculty
aprox.
1338 m
ASE Cibernetica (en)
aprox.
1363 m
ASE - Facultatea de Comert
aprox.
1367 m
Amfiteatrele ASE
aprox.
1456 m
ASE - Cladirea Cihoschi
aprox.
1461 m
Mega Image
aprox.
285 m
Mega Image Concept Store
aprox.
358 m
Mega Image
aprox.
472 m
Mega Image Fainari
aprox.
560 m
Mega Image Supermarket
aprox.
713 m
Stock Market
aprox.
726 m
Mega Image Lizeanu Non-Stop
aprox.
732 m
Mega Image - Icoanei
aprox.
747 m
Mega Image
aprox.
772 m
Mega Image
aprox.
782 m
OK Non-stop Supermarket (en)
aprox.
850 m
OK Non-Stop
aprox.
850 m
Spectrum
aprox.
927 m
Bucur Obor
aprox.
1020 m
Complex Comercial OBOR
aprox.
1066 m
"METROPLIS CENTER"
aprox.
1629 m
Parcare
aprox.
357 m
Parcare
aprox.
706 m
Parcare
aprox.
804 m
Parcare
aprox.
896 m
Parcare
aprox.
967 m
Parcare
aprox.
967 m
Parcare
aprox.
978 m
Parcare
aprox.
982 m
Parcare
aprox.
996 m
Parcare
aprox.
1009 m
Parcare
aprox.
1058 m
Parcare
aprox.
1065 m
Parcare
aprox.
1080 m
Parcare
aprox.
1105 m
Parcare
aprox.
1109 m
Parc
aprox.
45 m
Parc
aprox.
45 m
Parc
aprox.
428 m
Parc
aprox.
478 m
Parc
aprox.
801 m
Parc
aprox.
823 m
Parcul Ion Voicu
aprox.
865 m
Parcul Izvorul Rece
aprox.
870 m
Parcul Izvorul Rece
aprox.
870 m
Parcul "Ioanid"
aprox.
873 m
60 Minutes
aprox.
911 m
Obor Park (en)
aprox.
926 m
Rond
aprox.
951 m
Parculet
aprox.
957 m
Parcul Obor
aprox.
963 m
Piata Bucur Obor
aprox.
892 m
Piata Latina
aprox.
894 m
Piata Rosetti
aprox.
1298 m
Piața Romană
aprox.
1504 m
Piata Universitatii
aprox.
1508 m
Piata Iancului
aprox.
1511 m
Piata Revolutiei
aprox.
1616 m
Piata Roma
aprox.
1860 m
Piața Drapelului (Tricolorului)
aprox.
1861 m
Piata Timpului
aprox.
1921 m
Respawn B
aprox.
943 m
Etaj 1 - Hala CQB
aprox.
1026 m
Parter - Hala mare
aprox.
1030 m
Gradinita
aprox.
1048 m
Respawn A
aprox.
1071 m
Stadionul Dinamo
aprox.
1456 m
Teren sportiv
aprox.
1477 m
Teren sportiv
aprox.
1564 m
Teren sportiv
aprox.
1567 m
Teren sportiv
aprox.
1614 m
Teren sportiv
aprox.
1653 m
Teren sportiv
aprox.
1680 m
Teren sportiv
aprox.
1741 m
Teren sportiv
aprox.
1784 m
Teren sportiv
aprox.
1833 m
SERVICIUL DE AMBULANTA BUCURESTI-ILFOV
aprox.
64 m
Cabinet Gineco
aprox.
141 m
Clinica de oftalmologie Ama Optimex
aprox.
264 m
Centrul medical Sanatatea TA
aprox.
277 m
Optim Sano
aprox.
317 m
Clinica Audionova
aprox.
351 m
Institutul de Diabet NCPaulescu (en)
aprox.
471 m
Spitalul Cantacuzino
aprox.
480 m
Dacia Medical Center
aprox.
571 m
Centrul Medical Pop de Basesti
aprox.
712 m
Spitalul de ortopedie "Foisorul de foc"
aprox.
740 m
PAVILIONUL A
aprox.
806 m
Laurus Medical
aprox.
824 m
INGG Ana Aslan Spatarului nr. 15 (en)
aprox.
837 m
Clinica de 10
aprox.
841 m
Colvimed
aprox.
181 m
Farmacia Ana Maria
aprox.
293 m
Farmacia Belladonna 38
aprox.
330 m
Help Net Farma
aprox.
369 m
Sensiblu
aprox.
401 m
Farmacia Alissa Retail
aprox.
402 m
Catena Farmacie
aprox.
407 m
Farmadex Non-Stop
aprox.
447 m
Farmacia Artafarm
aprox.
453 m
Sensiblu
aprox.
509 m
Farmacia Dona
aprox.
583 m
Farmacia Carmen
aprox.
590 m
Farmacia Remedia
aprox.
648 m
Farmacia Humanitas
aprox.
672 m
HelpNet
aprox.
682 m
El Vino Tapas & Wine
aprox.
51 m
Templul Soarelui
aprox.
100 m
Amore Trattoria
aprox.
105 m
Rotiseria Dacia 131
aprox.
128 m
cam aici ar fi Restaurant Lotca
aprox.
194 m
Haveli
aprox.
201 m
Bistro
aprox.
253 m
Il Destino
aprox.
291 m
Restaurant Degustibus
aprox.
296 m
Saphir
aprox.
310 m
Old House
aprox.
312 m
Torega
aprox.
314 m
Newton Restaurant (en)
aprox.
316 m
La Taverna Bar & Grill
aprox.
337 m
KFC
aprox.
355 m
E... Varza
aprox.
311 m
MIM Bistro
aprox.
460 m
Trei Betivi
aprox.
672 m
Alan Dala
aprox.
779 m
Antic Bar
aprox.
834 m
Voltage Bar
aprox.
844 m
Geo Bar
aprox.
938 m
Lokal
aprox.
939 m
RSS Pub
aprox.
1021 m
La Baraca
aprox.
1134 m
Piua Book Bar
aprox.
1162 m
Que Pasa
aprox.
1163 m
Dianei Patru
aprox.
1202 m
ACAB Pub
aprox.
1204 m
La Pirati
aprox.
1241 m
Smart's Pub & Bistro
aprox.
594 m
Bluzz
aprox.
753 m
Terasa Rustica Foisor
aprox.
784 m
Waldo's
aprox.
786 m
Open Pub
aprox.
1001 m
Le Boutique Food Concept Store
aprox.
1093 m
Panik & Pub
aprox.
1147 m
Have a Cigar
aprox.
1157 m
OLD NICK PUB
aprox.
1177 m
Club Surubelnita
aprox.
1380 m
La Scena
aprox.
1481 m
Restaurant-pizzerie BONA DA ELENA
aprox.
1513 m
Studio Martin
aprox.
1615 m
Clock`s
aprox.
1663 m
Coloseum
aprox.
1669 m
Slot Cafe
aprox.
764 m
Shiva
aprox.
784 m
Cappucini
aprox.
823 m
Cafe Lautrec
aprox.
834 m
OstrawVegan
aprox.
860 m
Smart Change
aprox.
868 m
Carla Caffe
aprox.
964 m
Lente Arcului
aprox.
984 m
Tana de lupo
aprox.
999 m
Hobby Caffe & Shop
aprox.
1018 m
Newton Caffe
aprox.
1023 m
Vesuvio Cafe
aprox.
1028 m
Hathor Cafe
aprox.
1052 m
Lente Praporgescu
aprox.
1126 m
5 To Go Lahovari
aprox.
1162 m
BRD Vasile Lascar
aprox.
326 m
Raiffeisen Bank - Agentia Mosilor
aprox.
356 m
Raiffaisen bank
aprox.
371 m
BRD
aprox.
378 m
BRD Mosilor
aprox.
382 m
Banca Carpatica
aprox.
397 m
ING Mosilor
aprox.
426 m
BCR
aprox.
438 m
Alpha Bank
aprox.
443 m
Piraeus Bank
aprox.
445 m
Unicredit Tiriac bank
aprox.
453 m
Banca Romaneasca
aprox.
462 m
BCR
aprox.
465 m
Leumi Bank
aprox.
465 m
UniCredit Bank - Ag. Traian
aprox.
472 m
Zona Ștefan cel Mare - Dacia - Eminescu - Armenească este destul de bine conectată cu alte cartiere din București prin intermediul mijloacelor de transport în comun. Printre acestea amintim autobuzul 605 pe care îl poți lua pentru a ajunge la mall-ul Băneasa Shopping City, tramvaiul 16 care te poate ajuta să ajungi la Piața Sf. Vineri și troleibuzul 86 care oferă o legătură directă cu Gara de Nord. Mai multe stații de metrou sunt și ele disponibile în apropiere. Este vorba despre Ștefan cel Mare și Obor, aflate pe magistrala 1 Dristor - Pantelimon, și despre Piața Romană și Universitate situate pe traseul magistralei 2 Berceni-Pipera. Consultă harta pentru a afla poziționarea exactă a stațiilor mijloacelor de transport în comun.
În zona Ștefan cel Mare - Dacia - Eminescu - Armenească vei găsi mai multe unități de învățământ, de stat și private. Amintim astfel Colegiul Național Școala Centrală de lângă Parcul Grădina Icoanei, Colegiul Național "Spiru Haret" de pe Strada Italiană, Colegiul Național "Cantemir Vodă" și Liceul Economic "Virgil Madgearu", ambele situate pe Bulevardul Dacia. Școala Sanitară Postliceală "Carol Davila" se află și ea în această zonă, iar Academia de Studii Economice din București poate fi găsită în apropiere, la Piața Romană. Consultă harta pentru a vedea care vor fi cele mai apropiate grădinițe, școli și licee de viitoarea ta locuință.
În această zonă vei găsi, în principal, magazine mici și câteva supermarketuri. La intersecția dintre Bulevardul Dacia și Strada Vasile Lascăr vei avea la dispoziție Piața Gemeni și un concept store Mega Image. Cel mai apropiat mall este situat în zona Obor. Este vorba despre Veranda Mall, unul dintre cele mai noi astfel de centre comerciale din București. Tot aici găsești magazinul Bucur Obor și o piață. Cu mașina poți ajunge destul de rapid și la mall-ul Promenada sau la complexul comercial cu magazin Kaufland și Carrefour Market de pe Strada Barbu Văcărescu. Consultă harta și află ce alte opțiuni mai ai aproape de viitoarea ta casă, dar și în împrejurimi.
Îți recomandăm să verifici dacă există posibilitatea închirierii unui loc de parcare în apropierea locuinței de care ești interesat. Poți face acest lucru apelând la Serviciul Parcări din cadrul ADP Sector 2. Atunci îți aducem în atenție faptul că Bulevardul Dacia, Strada Mihai Eminescu și Strada Polonă sunt unele dintre cele mai circulate din această zonă. Trafic intens vei întâlni, totodată, la intersecția dintre Calea Dorobanți, Bulevardul Dacia și Strada Mihai Eminescu. Aglomerație vei găsi și pe Bulevardul Ștefan cel Mare, mai ales la orele de vârf și în zilele în care se organizează evenimente sportive în cadrul stadionului Dinamo. Consultă harta și vezi unde se găsesc principalele parcări din această zonă.
În zona Ștefan cel Mare - Dacia - Eminescu - Armenească se organizează periodic diferite evenimente, de la ateliere, la festivaluri și demonstrații de artă stradală. Dacă te vei muta în această parte a orașului, vei avea la doi pași de casă mai multe ceainării, restaurante, spații unde se organizează jocuri de tip escape room și trei teatre - Țăndărică, Metropolis și Bulandra. Pentru evenimente culturale și seri de film vei putea merge pe Bulevardul Dacia, la Institutul Francez din București. Ajungi repede și în centru, unde poți fi spectatorul unei piese puse în scenă de actorii Teatrului Național București. Parcurile Grădina Icoanei și Ioanid, deși sunt destul de restrânse ca suprafață, sunt unele dintre cele mai frumoase din această parte a orașului. Totodată, în nordul acestei zone, în imediata apropiere a Șoselei Ștefan cel Mare, vei găsi Circul Metropolitan București și parcul acestuia, iar în vecinătatea lor Stadionul Dinamo și complexul său sportiv. Nu uita, totodată, că din această zonă vei ajunge destul de rapid în Centrul Vechi, unde pe lângă terase și restaurante găsești și câteva obiective turistice care merită vizitate măcar o dată. Află ce alte puncte de interes găsești în zona Ștefan cel Mare - Dacia - Eminescu - Armenească și din vecinătatea acesteia. Consultă harta.
Dacă te vei muta în această zonă, vei avea la dispoziție mai multe spitale și clinici private. Printre acestea se numără Spitalul Clinic Dr. Ion Cantacuzino din zona Pieței Gemeni și Spitalul Ion Stroia . Alte unități sanitare din vecinătate sunt Spitalul Clinic Colentina, Spitalul Sf. Ștefan, Spitalul Clinic de Urgență București (cunoscut și ca Floreasca) și Spitalul Euroclinic din rețeaua privată de sănătate Regina Maria. Toate acestea sunt concentrate în nordul zonei Ștefan cel Mare - Dacia - Eminescu - Armenească, în vecinătatea Stadionului Dinamo și a Parcului Circului. Vezi pe hartă localizarea exactă a unităților medicale de mai sus.
Presărate pe străzile din această zonă găsești mai multe terase și restaurante mici. Câteva dintre cele mai cochete se află în vechiul cartier Armenesc. De aici ajungi extrem de repede și în Centrul Vechi al orașului, pentru mai multă diversitate. Fiind atât de aproape de centrul orașului, vei avea la dispoziție extrem de multe opțiuni. Restaurantele și cafenelele din Dorobanți sau de pe Calea Floreasca pot fi cu siguranță pe gustul tău. Dacă vrei să faci și o plimbare, să admiri arhitectura frumoasă a vechilor clădiri din București și să te oprești la o cafea sau la o prăjitură, atunci Calea Victoriei poate fi ideală. Pentru o mică gustare sau un meniu fast food ai mai multe variante în zona Obor, iar dacă te grăbești atunci poți încerca drive through-ul McDonald"™s de pe Strada Barbu Văcărescu. Aruncă o privire pe hartă și vezi ce alte restaurante, terase sau cafenele ai în zonă.
Găsești mai multe sucursale bancare și ATM-uri în special pe Șoseaua Ștefan cel Mare. Aruncă o privire pe hartă și vezi ce alte opțiuni găsești în apropierea viitoarei tale locuințe.
Înainte să pleci...
Ești sigur că ai văzut și aceste proprietăți?
305.000 € + TVA
București, Eminescu
3 camere
95 mp
Etaj 1 / 4
290.000 €
București, Eminescu
3 camere
94 mp
Etaj 1 / 3
289.000 €
București, Eminescu
4 camere
119 mp
Etaj 2 / 2
Creează alertă
Salvează căutarea ca să primești pe email ultimele anunțuri publicate
Apartamente noi cu 2 camere de vânzare în zona Eminescu, Sector 2
Cere detalii prin email
*
*
*
*
Detaliile tale de contact vor fi partajate cu Select Homes
Asigurare de viață/lună Costul este variabil. În funcție de banca aleasă, procentul variază între 0.0259% și 0.035% din soldul creditului.
Costuri cu achiziția17.948 RON
Comision agenție Întreabă agenţia
Onorariu notarial12.541 RON
Taxă întabulare OCPI2.761 RON
Autentificare contract credit2.646 RON
Preț de achiziție1.840.635 RON
Preț locuință1.521.185 RON
TVA 21%319.449 RON
Preț de achiziție1.840.635 RON
Preț locuință1.521.185 RON
TVA 21%
319.449 RON
Avans minim1.234.199 RON
Credit pe 30 de ani606.436 RON
Cost achitat în prima lună
Taxa evaluare imobil(până la)
575 RON
Rata lunară (variabilă)4.261 RON
Depozit colateral12.783 RON
Comision de garantare FNGCIMM153 RON
Asigurare anuală imobil1.841 RON
Poliță PAD130 RON
Tarif arhivă electronică102 RON
Costuri adiționale1.981 RON + taxe notariale
Asigurare viață și complexă (opțională)Costul este variabil. În funcție de banca aleasă, procentul variază între 0.0259% și 0.035% din soldul creditului
Onorariu notarialconform tarif notarial
Taxă întabulare OCPI1.981 RON
i
Toate valorile de mai sus sunt estimative și nu reprezintă în mod obligatoriu costurile exacte pe care le veți primi de la companiile/instituțiile prin care veți încheia tranzacția.