SelectHomes va prezinta in urmatorul tur virtual un apartament spatios si modern, pozitionat pe Strada Mihai Eminescu 220.
Pentru o prima vizionare va invitam sa accesati turul virtual/plimbare virtuala.
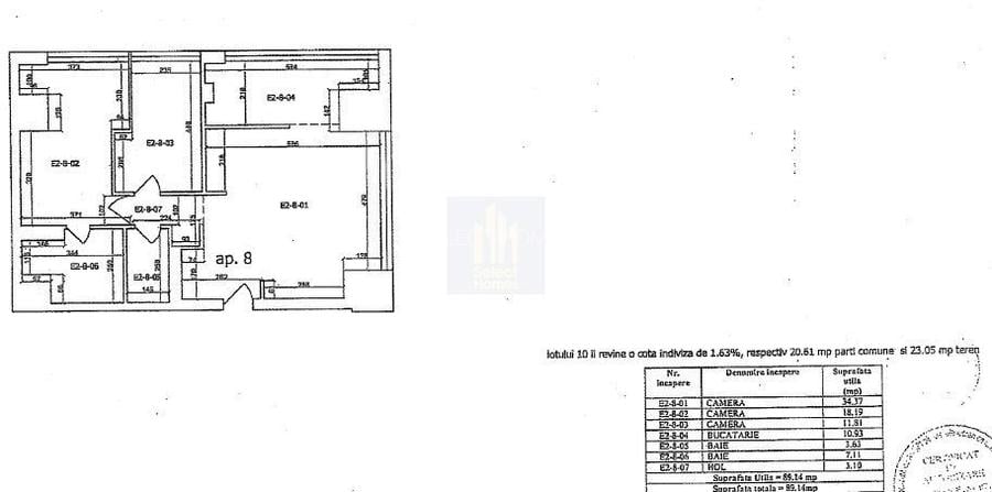
Apartamentul se afla la etajul 2/7 in bloc finalizat in anul 2025, are o suprafata utila de 89mp si este compartimentat astfel : living 34mp, bucatarie semi-deschisa, hol, dormitor cu baie en-suite, baie, dormitor.
Pretul de vanzare este de 356.000 euro + TVA. Se vinde asa cum este prezentat in poze/turul virtual.
Finisaje si dotari: centrala imobil, incalzire prin pardoseala si ventiloconvectoare, AC centralizat, parchet triplustratificat, tamplarie aluminiu.
Va stam la dispozitie pentru stabilirea unei vizionari sau orice detaliu aditional.
Citește mai mult
Citește mai puțin
Confort 1
Semidecomandat
Acceptă animale de companie
Nemobilat
Aer condiționat
Centrală imobil
Încălzire prin pardoseală
92%dintre proprietățile similare ca zonă și nr. camere au prețul cerutmai mic.
mai multe...
Bine de știut: prețul unei proprietăți este influențat și de alte caracteristici, cum ar fi: vechime, localizare, vecinătăți, suprafață, compartimentare, amenajări, dotări, etc.
mai puțin...
Costuri cu achiziția
Fără credit
15.119 RON
Credit ipotecar
17.742 RON
Noua casă
1.954 RON+ taxe notariale
i
Costuri adiționale mai puțin știute la achiziție: taxe notariale, comisioane etc.
Calculul ipotecarului
Proprietăți recomandate
Pornind de la căutarea ta îți recomandăm următoarele anunțuri
Sediul central - Timișoara
Bulevardul Victor Babeș nr. 2, 300230, Timișoara, România
Tel: +40.374.40.44.98 / Fax: +40.256.401.179
Email: suport@imobiliare.ro
Luni - Vineri 08:00 - 20:00
Punct de lucru - București: Iride Business Park, Bld. Dimitrie
Pompeiu 9-9A, Clădirea B2B,
020335, Sector 2, București, România
CONTACT
Sediul central - Timișoara
Bulevardul Victor Babeș nr. 2, 300230, Timișoara, România
Tel: +40.374.40.44.98 / Fax: +40.256.401.179
Email: suport@imobiliare.ro
Luni - Vineri 08:00 - 20:00
Punct de lucru - București: Iride Business Park, Bld. Dimitrie
Pompeiu 9-9A, Clădirea B2B,
020335, Sector 2, București, România
Metrorex. Stația Obor (M1)(1989)(Fosta statie de tramvai subterana)
aprox.
821 m
Statia Soseaua Mihai Bravu, linia 14
aprox.
1169 m
Metrorex. Stația Ștefan cel Mare (M1)(1989)
aprox.
1182 m
Statia Metrou Piata Romana(M2)Metrorex
aprox.
1399 m
Metrorex. Stația Piața Romană (M2)(1988)
aprox.
1421 m
Piata Romana (M2)
aprox.
1421 m
Statia Metrou Piata Romana(M2)Metrorex
aprox.
1428 m
Metrorex. Stația Universitate (M2)(1987)
aprox.
1498 m
Universitate (M2)
aprox.
1555 m
Statia Metrou Piata Universitatii(M2)Metrorex
aprox.
1565 m
Statia Metrou Piata Universitatii(M2)Metrorex
aprox.
1598 m
Colegiul National "Cantemir-Voda"
aprox.
200 m
Gradinita Magnolia
aprox.
211 m
ȘCOALA DE ARTE ȘI MESERII NR. 3
aprox.
285 m
Scoala de Arte si Meserii Nr. 3
aprox.
300 m
Grădinița (en)
aprox.
367 m
Scoala nr. 23
aprox.
389 m
Școala Nr. 23 Sf. Silvestru (en)
aprox.
389 m
Scoala Postliceala Carol Davila (en)
aprox.
470 m
Scoala Pentru Hipoacuzici
aprox.
485 m
Liceul Tehnologic Special nr. 3
aprox.
491 m
Gradinita Montessori
aprox.
643 m
Scoala Nr. 50
aprox.
652 m
Cursuri Paleologu
aprox.
653 m
Colegiul National Bilingv "George Cosbuc"
aprox.
709 m
Scoala Postliceala "Sf. Vasile cel Mare" - .scoalasanitara.ro
aprox.
712 m
Gradinita numarul 8
aprox.
202 m
Gradinita numarul 257
aprox.
591 m
Gradinita numarul 133
aprox.
698 m
Gradinita
aprox.
743 m
Gradinita Ioanid
aprox.
929 m
Ioanid
aprox.
944 m
Gradinita nr. 138 cu program prelungit
aprox.
957 m
Gradinita Magica
aprox.
1086 m
Amalia's Kindergarten (en)
aprox.
1128 m
Gradinita nr.203 (fosta Clementa)
aprox.
1140 m
Gradinita nr. 203 program prelungit
aprox.
1144 m
Gradinita nr.4 "Lizuca"
aprox.
1213 m
Gradinita Waldorf
aprox.
1280 m
Gradinita nr. 85
aprox.
1302 m
Gradinita nr. 252 cu program prelungit
aprox.
1419 m
CROS - Universitatea Alternativa
aprox.
982 m
Universitatea din Bucuresti - Facultatea de Stiinte Politice
aprox.
987 m
Facultatea de Stiinte Politice
aprox.
998 m
Facultatea de Instalatii (en)
aprox.
1097 m
Rectoratul UMF "Carol Davila"
aprox.
1177 m
Universitatea Spiru Haret - Facultatea de Medicina veterinara
aprox.
1206 m
University of Bucharest - Faculty of Foreign Languages and Literatures (en)
aprox.
1274 m
Centrul de Limbi Straine Ariel
aprox.
1282 m
ASE - Cibernetica
aprox.
1326 m
Facultatea de Farmacie
aprox.
1332 m
Facultatea de Farmacie/Pharmacy Faculty
aprox.
1338 m
ASE Cibernetica (en)
aprox.
1363 m
ASE - Facultatea de Comert
aprox.
1367 m
Amfiteatrele ASE
aprox.
1456 m
ASE - Cladirea Cihoschi
aprox.
1461 m
Mega Image
aprox.
285 m
Mega Image Concept Store
aprox.
358 m
Mega Image
aprox.
472 m
Mega Image Fainari
aprox.
560 m
Mega Image Supermarket
aprox.
713 m
Stock Market
aprox.
726 m
Mega Image Lizeanu Non-Stop
aprox.
732 m
Mega Image - Icoanei
aprox.
747 m
Mega Image
aprox.
772 m
Mega Image
aprox.
782 m
OK Non-stop Supermarket (en)
aprox.
850 m
OK Non-Stop
aprox.
850 m
Spectrum
aprox.
927 m
Bucur Obor
aprox.
1020 m
Complex Comercial OBOR
aprox.
1066 m
"METROPLIS CENTER"
aprox.
1629 m
Parcare
aprox.
357 m
Parcare
aprox.
706 m
Parcare
aprox.
804 m
Parcare
aprox.
896 m
Parcare
aprox.
967 m
Parcare
aprox.
967 m
Parcare
aprox.
978 m
Parcare
aprox.
982 m
Parcare
aprox.
996 m
Parcare
aprox.
1009 m
Parcare
aprox.
1058 m
Parcare
aprox.
1065 m
Parcare
aprox.
1080 m
Parcare
aprox.
1105 m
Parcare
aprox.
1109 m
Parc
aprox.
45 m
Parc
aprox.
45 m
Parc
aprox.
428 m
Parc
aprox.
478 m
Parc
aprox.
801 m
Parc
aprox.
823 m
Parcul Ion Voicu
aprox.
865 m
Parcul Izvorul Rece
aprox.
870 m
Parcul Izvorul Rece
aprox.
870 m
Parcul "Ioanid"
aprox.
873 m
60 Minutes
aprox.
911 m
Obor Park (en)
aprox.
926 m
Rond
aprox.
951 m
Parculet
aprox.
957 m
Parcul Obor
aprox.
963 m
Piata Bucur Obor
aprox.
892 m
Piata Latina
aprox.
894 m
Piata Rosetti
aprox.
1298 m
Piața Romană
aprox.
1504 m
Piata Universitatii
aprox.
1508 m
Piata Iancului
aprox.
1511 m
Piata Revolutiei
aprox.
1616 m
Piata Roma
aprox.
1860 m
Piața Drapelului (Tricolorului)
aprox.
1861 m
Piata Timpului
aprox.
1921 m
Respawn B
aprox.
943 m
Etaj 1 - Hala CQB
aprox.
1026 m
Parter - Hala mare
aprox.
1030 m
Gradinita
aprox.
1048 m
Respawn A
aprox.
1071 m
Stadionul Dinamo
aprox.
1456 m
Teren sportiv
aprox.
1477 m
Teren sportiv
aprox.
1564 m
Teren sportiv
aprox.
1567 m
Teren sportiv
aprox.
1614 m
Teren sportiv
aprox.
1653 m
Teren sportiv
aprox.
1680 m
Teren sportiv
aprox.
1741 m
Teren sportiv
aprox.
1784 m
Teren sportiv
aprox.
1833 m
SERVICIUL DE AMBULANTA BUCURESTI-ILFOV
aprox.
64 m
Cabinet Gineco
aprox.
141 m
Clinica de oftalmologie Ama Optimex
aprox.
264 m
Centrul medical Sanatatea TA
aprox.
277 m
Optim Sano
aprox.
317 m
Clinica Audionova
aprox.
351 m
Institutul de Diabet NCPaulescu (en)
aprox.
471 m
Spitalul Cantacuzino
aprox.
480 m
Dacia Medical Center
aprox.
571 m
Centrul Medical Pop de Basesti
aprox.
712 m
Spitalul de ortopedie "Foisorul de foc"
aprox.
740 m
PAVILIONUL A
aprox.
806 m
Laurus Medical
aprox.
824 m
INGG Ana Aslan Spatarului nr. 15 (en)
aprox.
837 m
Clinica de 10
aprox.
841 m
Colvimed
aprox.
181 m
Farmacia Ana Maria
aprox.
293 m
Farmacia Belladonna 38
aprox.
330 m
Help Net Farma
aprox.
369 m
Sensiblu
aprox.
401 m
Farmacia Alissa Retail
aprox.
402 m
Catena Farmacie
aprox.
407 m
Farmadex Non-Stop
aprox.
447 m
Farmacia Artafarm
aprox.
453 m
Sensiblu
aprox.
509 m
Farmacia Dona
aprox.
583 m
Farmacia Carmen
aprox.
590 m
Farmacia Remedia
aprox.
648 m
Farmacia Humanitas
aprox.
672 m
HelpNet
aprox.
682 m
El Vino Tapas & Wine
aprox.
51 m
Templul Soarelui
aprox.
100 m
Amore Trattoria
aprox.
105 m
Rotiseria Dacia 131
aprox.
128 m
cam aici ar fi Restaurant Lotca
aprox.
194 m
Haveli
aprox.
201 m
Bistro
aprox.
253 m
Il Destino
aprox.
291 m
Restaurant Degustibus
aprox.
296 m
Saphir
aprox.
310 m
Old House
aprox.
312 m
Torega
aprox.
314 m
Newton Restaurant (en)
aprox.
316 m
La Taverna Bar & Grill
aprox.
337 m
KFC
aprox.
355 m
E... Varza
aprox.
311 m
MIM Bistro
aprox.
460 m
Trei Betivi
aprox.
672 m
Alan Dala
aprox.
779 m
Antic Bar
aprox.
834 m
Voltage Bar
aprox.
844 m
Geo Bar
aprox.
938 m
Lokal
aprox.
939 m
RSS Pub
aprox.
1021 m
La Baraca
aprox.
1134 m
Piua Book Bar
aprox.
1162 m
Que Pasa
aprox.
1163 m
Dianei Patru
aprox.
1202 m
ACAB Pub
aprox.
1204 m
La Pirati
aprox.
1241 m
Smart's Pub & Bistro
aprox.
594 m
Bluzz
aprox.
753 m
Terasa Rustica Foisor
aprox.
784 m
Waldo's
aprox.
786 m
Open Pub
aprox.
1001 m
Le Boutique Food Concept Store
aprox.
1093 m
Panik & Pub
aprox.
1147 m
Have a Cigar
aprox.
1157 m
OLD NICK PUB
aprox.
1177 m
Club Surubelnita
aprox.
1380 m
La Scena
aprox.
1481 m
Restaurant-pizzerie BONA DA ELENA
aprox.
1513 m
Studio Martin
aprox.
1615 m
Clock`s
aprox.
1663 m
Coloseum
aprox.
1669 m
Slot Cafe
aprox.
764 m
Shiva
aprox.
784 m
Cappucini
aprox.
823 m
Cafe Lautrec
aprox.
834 m
OstrawVegan
aprox.
860 m
Smart Change
aprox.
868 m
Carla Caffe
aprox.
964 m
Lente Arcului
aprox.
984 m
Tana de lupo
aprox.
999 m
Hobby Caffe & Shop
aprox.
1018 m
Newton Caffe
aprox.
1023 m
Vesuvio Cafe
aprox.
1028 m
Hathor Cafe
aprox.
1052 m
Lente Praporgescu
aprox.
1126 m
5 To Go Lahovari
aprox.
1162 m
BRD Vasile Lascar
aprox.
326 m
Raiffeisen Bank - Agentia Mosilor
aprox.
356 m
Raiffaisen bank
aprox.
371 m
BRD
aprox.
378 m
BRD Mosilor
aprox.
382 m
Banca Carpatica
aprox.
397 m
ING Mosilor
aprox.
426 m
BCR
aprox.
438 m
Alpha Bank
aprox.
443 m
Piraeus Bank
aprox.
445 m
Unicredit Tiriac bank
aprox.
453 m
Banca Romaneasca
aprox.
462 m
BCR
aprox.
465 m
Leumi Bank
aprox.
465 m
UniCredit Bank - Ag. Traian
aprox.
472 m
Zona Ștefan cel Mare - Dacia - Eminescu - Armenească este destul de bine conectată cu alte cartiere din București prin intermediul mijloacelor de transport în comun. Printre acestea amintim autobuzul 605 pe care îl poți lua pentru a ajunge la mall-ul Băneasa Shopping City, tramvaiul 16 care te poate ajuta să ajungi la Piața Sf. Vineri și troleibuzul 86 care oferă o legătură directă cu Gara de Nord. Mai multe stații de metrou sunt și ele disponibile în apropiere. Este vorba despre Ștefan cel Mare și Obor, aflate pe magistrala 1 Dristor - Pantelimon, și despre Piața Romană și Universitate situate pe traseul magistralei 2 Berceni-Pipera. Consultă harta pentru a afla poziționarea exactă a stațiilor mijloacelor de transport în comun.
În zona Ștefan cel Mare - Dacia - Eminescu - Armenească vei găsi mai multe unități de învățământ, de stat și private. Amintim astfel Colegiul Național Școala Centrală de lângă Parcul Grădina Icoanei, Colegiul Național "Spiru Haret" de pe Strada Italiană, Colegiul Național "Cantemir Vodă" și Liceul Economic "Virgil Madgearu", ambele situate pe Bulevardul Dacia. Școala Sanitară Postliceală "Carol Davila" se află și ea în această zonă, iar Academia de Studii Economice din București poate fi găsită în apropiere, la Piața Romană. Consultă harta pentru a vedea care vor fi cele mai apropiate grădinițe, școli și licee de viitoarea ta locuință.
În această zonă vei găsi, în principal, magazine mici și câteva supermarketuri. La intersecția dintre Bulevardul Dacia și Strada Vasile Lascăr vei avea la dispoziție Piața Gemeni și un concept store Mega Image. Cel mai apropiat mall este situat în zona Obor. Este vorba despre Veranda Mall, unul dintre cele mai noi astfel de centre comerciale din București. Tot aici găsești magazinul Bucur Obor și o piață. Cu mașina poți ajunge destul de rapid și la mall-ul Promenada sau la complexul comercial cu magazin Kaufland și Carrefour Market de pe Strada Barbu Văcărescu. Consultă harta și află ce alte opțiuni mai ai aproape de viitoarea ta casă, dar și în împrejurimi.
Îți recomandăm să verifici dacă există posibilitatea închirierii unui loc de parcare în apropierea locuinței de care ești interesat. Poți face acest lucru apelând la Serviciul Parcări din cadrul ADP Sector 2. Atunci îți aducem în atenție faptul că Bulevardul Dacia, Strada Mihai Eminescu și Strada Polonă sunt unele dintre cele mai circulate din această zonă. Trafic intens vei întâlni, totodată, la intersecția dintre Calea Dorobanți, Bulevardul Dacia și Strada Mihai Eminescu. Aglomerație vei găsi și pe Bulevardul Ștefan cel Mare, mai ales la orele de vârf și în zilele în care se organizează evenimente sportive în cadrul stadionului Dinamo. Consultă harta și vezi unde se găsesc principalele parcări din această zonă.
În zona Ștefan cel Mare - Dacia - Eminescu - Armenească se organizează periodic diferite evenimente, de la ateliere, la festivaluri și demonstrații de artă stradală. Dacă te vei muta în această parte a orașului, vei avea la doi pași de casă mai multe ceainării, restaurante, spații unde se organizează jocuri de tip escape room și trei teatre - Țăndărică, Metropolis și Bulandra. Pentru evenimente culturale și seri de film vei putea merge pe Bulevardul Dacia, la Institutul Francez din București. Ajungi repede și în centru, unde poți fi spectatorul unei piese puse în scenă de actorii Teatrului Național București. Parcurile Grădina Icoanei și Ioanid, deși sunt destul de restrânse ca suprafață, sunt unele dintre cele mai frumoase din această parte a orașului. Totodată, în nordul acestei zone, în imediata apropiere a Șoselei Ștefan cel Mare, vei găsi Circul Metropolitan București și parcul acestuia, iar în vecinătatea lor Stadionul Dinamo și complexul său sportiv. Nu uita, totodată, că din această zonă vei ajunge destul de rapid în Centrul Vechi, unde pe lângă terase și restaurante găsești și câteva obiective turistice care merită vizitate măcar o dată. Află ce alte puncte de interes găsești în zona Ștefan cel Mare - Dacia - Eminescu - Armenească și din vecinătatea acesteia. Consultă harta.
Dacă te vei muta în această zonă, vei avea la dispoziție mai multe spitale și clinici private. Printre acestea se numără Spitalul Clinic Dr. Ion Cantacuzino din zona Pieței Gemeni și Spitalul Ion Stroia . Alte unități sanitare din vecinătate sunt Spitalul Clinic Colentina, Spitalul Sf. Ștefan, Spitalul Clinic de Urgență București (cunoscut și ca Floreasca) și Spitalul Euroclinic din rețeaua privată de sănătate Regina Maria. Toate acestea sunt concentrate în nordul zonei Ștefan cel Mare - Dacia - Eminescu - Armenească, în vecinătatea Stadionului Dinamo și a Parcului Circului. Vezi pe hartă localizarea exactă a unităților medicale de mai sus.
Presărate pe străzile din această zonă găsești mai multe terase și restaurante mici. Câteva dintre cele mai cochete se află în vechiul cartier Armenesc. De aici ajungi extrem de repede și în Centrul Vechi al orașului, pentru mai multă diversitate. Fiind atât de aproape de centrul orașului, vei avea la dispoziție extrem de multe opțiuni. Restaurantele și cafenelele din Dorobanți sau de pe Calea Floreasca pot fi cu siguranță pe gustul tău. Dacă vrei să faci și o plimbare, să admiri arhitectura frumoasă a vechilor clădiri din București și să te oprești la o cafea sau la o prăjitură, atunci Calea Victoriei poate fi ideală. Pentru o mică gustare sau un meniu fast food ai mai multe variante în zona Obor, iar dacă te grăbești atunci poți încerca drive through-ul McDonald"™s de pe Strada Barbu Văcărescu. Aruncă o privire pe hartă și vezi ce alte restaurante, terase sau cafenele ai în zonă.
Găsești mai multe sucursale bancare și ATM-uri în special pe Șoseaua Ștefan cel Mare. Aruncă o privire pe hartă și vezi ce alte opțiuni găsești în apropierea viitoarei tale locuințe.
Înainte să pleci...
Ești sigur că ai văzut și aceste proprietăți?
249.000 €
București, Moșilor
3 camere
74 mp
Etaj 1
270.000 €
București, Pipera
3 camere
81 mp
Etaj 2
279.999 €
București, Pipera
3 camere
106 mp
Etaj 5
230.000 € + TVA
București, Floreasca
2 camere
54,3 mp
Etaj 2
350.000 €
București, Herăstrău
2 camere
60 mp
Etaj 3
135.000 €
București, Cișmigiu
2 camere
42 mp
Etaj 5 / 7
Creează alertă
Salvează căutarea ca să primești pe email ultimele anunțuri publicate
Apartamente noi cu 3 camere de vânzare în zona Eminescu, Sector 2
Cere detalii prin email
*
*
*
*
Detaliile tale de contact vor fi partajate cu Select Homes
Statistici proprietate
Apartamente 3 camere de vânzare
250.000 €
Medie preț cerut la vânzare
2.760 €/mp
Medie preț cerut pe metru pătrat
1.200 €
Medie chirie lunară
Preț total1.828.689 RON (358.967 €)
Costuri cu achiziția15.119 RON
Preț de achiziție1.813.570 RON
Costuri cu achiziția15.119 RON
Comision agenție Întreabă agenţia
Onorariu notarial12.399 RON
Taxă înscriere OCPI2.720 RON
Preț de achiziție1.813.570 RON
Preț locuință1.813.570 RON
TVA 0%Inclus în prețul cerut
Cost total293.049 RON (57.524 €)
Avans (15%)272.036 RON
Cost achitat în prima lună3.271 RON
Costuri cu achiziția17.742 RON
Cost achitat în prima lună3.271 RON
Comision analiză dosar
400 RON - 900 RON
Taxă evaluare imobil(până la)
575 RON
Rata lunară (variabilă)8.079 RON
Asigurare anuală imobil1.814 RON
Arhivă electronică102 RON
Poliță PAD130 RON
Asigurare de viață/lună Costul este variabil. În funcție de banca aleasă, procentul variază între 0.0259% și 0.035% din soldul creditului.
Costuri cu achiziția17.742 RON
Comision agenție Întreabă agenţia
Onorariu notarial12.399 RON
Taxă întabulare OCPI2.720 RON
Autentificare contract credit2.623 RON
Preț de achiziție1.813.570 RON
Preț locuință1.813.570 RON
TVA 0%Inclus în prețul cerut
Preț de achiziție1.813.570 RON
Preț locuință1.813.570 RON
TVA 0%
Inclus în prețul cerut
Avans minim1.207.349 RON
Credit pe 30 de ani606.222 RON
Cost achitat în prima lună
Taxa evaluare imobil(până la)
575 RON
Rata lunară (variabilă)4.260 RON
Depozit colateral12.780 RON
Comision de garantare FNGCIMM151 RON
Asigurare anuală imobil1.814 RON
Poliță PAD130 RON
Tarif arhivă electronică102 RON
Costuri adiționale1.954 RON + taxe notariale
Asigurare viață și complexă (opțională)Costul este variabil. În funcție de banca aleasă, procentul variază între 0.0259% și 0.035% din soldul creditului
Onorariu notarialconform tarif notarial
Taxă întabulare OCPI1.954 RON
i
Toate valorile de mai sus sunt estimative și nu reprezintă în mod obligatoriu costurile exacte pe care le veți primi de la companiile/instituțiile prin care veți încheia tranzacția.