Apartament în vilă cu potențial, Moșilor

249.000 €

Moșilor, București

Nr. cam.:
3
Sup. utilă:
74 mp
Etaj:
1
An constr.:
1948
  • • Locație aproximativă

Descriere apartament

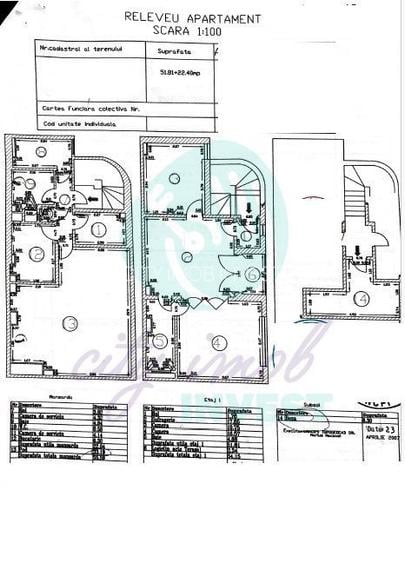
CityImob Invest vă propune spre vânzare un apartament, amplasat într-o vilă cu un nivel și mansardă, situată pe o stradă liniștită între Bulevardul Moșilor și Ferdinand I. Proprietatea este distribuită pe două etaje -etajul 1 și mansardă. În plus, clădirea găzduiește doar un alt proprietar la parter, oferind un grad sporit de intimitate și liniște. 🏡 Caracteristici imobil: La primul nivel, apartamentul dispune de 3 camere spațioase, un hol generos, o baie complet echipată și un balcon de 2 mp. Suprafața utilă la acest nivel este de 52 mp, oferind o compartimentare practică și confortabilă. La etajul superior, găsim bucătăria, două camere mai mici, o spălătorie și un WC de serviciu. Suprafața utilă a acestui nivel este de 22 mp, iar podul, cu o suprafață de 33 mp, este în proprietate exclusivă, ideal pentru depozitare sau amenajare ca spațiu suplimentar. Boxa la subsol de 8,30 mp, perfectă pentru depozitare suplimentară. Înălțimea camerelor este de 3,10 metri, conferind un aer elegant și spațios întregului apartament. 🔧 Renovări și îmbunătățiri: Clădirea a fost recent anvelopată, iar acoperișul a fost complet refăcut, asigurând un plus de confort termic și siguranță. Apartamentul necesită renovare integrală, oferind astfel posibilitatea de a-l amenaja după propriile gusturi și necesități. 📍 Localizare și accesibilitate: Situată pe o stradă liniștită, imobilul beneficiază de acces rapid către multiple mijloace de transport – doar 5 minute până la stațiile de metrou Iancului și Obor. În apropiere se regăsesc și stații STB pentru troleibuzul  și tramvaiele. Zona este caracterizată de clădiri cu regim redus de înălțime, oferind intimitate și liniște, fiind în același timp în proximitatea centrului orașului. Ideal pentru locuire sau amenajare ca sediu de firmă. Pentru mai multe informații sau pentru a programa o vizionare, vă rugăm să ne contactați. Oferim consultanță GRATUITĂ pentru achiziții prin credit ipotecar! Certificatul energetic va fi disponibil la vânzare. Vizionarea imobilului se face doar în baza semnării unui acord de vizionare, conform art. 2.096-2.102 din Codul Civil.
Citește mai mult Citește mai puțin
Confort 1 Semidecomandat 1 Balcon / Terasă / Logie Calorifere Centrală proprie 1 Parcare Necesită renovare

Detalii apartament

ID anunț: XC3T1074B Copiat! 275430311 Copiat!
Actualizat în: 14 Aprilie 2026
Nr. bucătării: 1
Nr. băi: 2
Structură rezistență: Cărămidă
Tip imobil: Casă/Vilă
Tip tranzacție: De vânzare prin agent
Regim înălțime: D+P+1E+M
Modalitate de plată: Cash sau Credit

Utilități

Pereți
Faianță Vopsea lavabilă
Podele
Dușumea Gresie Parchet
Ușă intrare
Metal
Uși interior
Lemn
Izolații termice
Exterior
Contorizare
Apometre Contor gaz
Facilități imobil
Acoperiș
Utilități
Curent Apă Canalizare CATV Gaze Telefon
Internet
Cablu
Amenajare străzi
Iluminat stradal Mijloace de transport în comun Asfaltate
Comision
standard

Disponibilitate proprietate:

Imediat

Puncte de interes

Mijloace transport
bus-station
Statia Fainari; Liniile:N101, 66
Stații autobuz aprox. 46 m
tram-station
Bucur Obor
Stații tramvai aprox. 326 m
metro-station
Metrorex. Stația Obor (M1)(1989)(Fosta statie de tramvai subterana)
Stații metrou aprox. 363 m
trolleybus-station
Statia Soseaua Mihai Bravu, linia 68,85
Stații troleibuz aprox. 672 m
Școală
school
Scoala Nr. 50
Școli aprox. 143 m
school
ȘCOALA DE ARTE ȘI MESERII NR. 3
Școli aprox. 315 m
kindergarten
Gradinita numarul 8
Gradinițe aprox. 537 m
university
Facultatea de Instalatii (en)
Universități aprox. 842 m
Recreere
supermarket
Mega Image Fainari
Supermarket aprox. 68 m
park
Parc
Parcuri aprox. 71 m
public-square
Piata Bucur Obor
Piețe publice aprox. 409 m
sports-ground
Respawn B
Terenuri sport aprox. 691 m

Detalii despre preț și costuri

Prețul pe piață

Preț cerut: 249.000 €

Preț min. zonă
Preț max. zonă

85% dintre proprietățile similare ca zonă și nr. camere au prețul cerut mai mic. mai multe...

Bine de știut: prețul unei proprietăți este influențat și de alte caracteristici, cum ar fi: vechime, localizare, vecinătăți, suprafață, compartimentare, amenajări, dotări, etc. mai puțin...

Acces la informații premium după autentificare
Login Gratuit

Costuri cu achiziția

Fără credit
Credit ipotecar
Noua casă

i

Costuri adiționale mai puțin știute la achiziție: taxe notariale, comisioane etc.

Acces la informații premium după autentificare
Login Gratuit

Proprietăți similare

Apartament cu 2 camere semidecomandat în Moșilor
272.250 €
București, Moșilor
2 camere
54 mp
Etaj 5
Apartament cu 2 camere semidecomandat în Moșilor
240.790 €
București, Moșilor
2 camere
55 mp
Etaj 3 / 7
Apartament cu 2 camere semidecomandat în Moșilor
254.100 €
București, Moșilor
2 camere
54 mp
Etaj 4

Detalii de contact

CITY IMOB INVEST

Andreea Manea Associated Sales Coordinator

4.55(11 review-uri)

CITY IMOB INVEST
PRO

Abonează-te la newsletter să fii primul care primește cele mai noi recomandări de proprietăți și sfaturi de la experți.

CONTACT

Creează alertă

Salvează căutarea ca să primești pe email ultimele anunțuri publicate

Apartamente cu 3 camere de vânzare în zona Moșilor, Sector 2