Descoperă un apartament de 2 camere, situat la etajul 4 din 4 in ansamblul Cellini Residence din sectorul 2, pozitionat la mica distanta între două parcuri: Parcul Circului și Parcul Tei.
📍 Localizare ideală – zonă verde, liniștită, dar totodată aproape de toate punctele de interes urban.
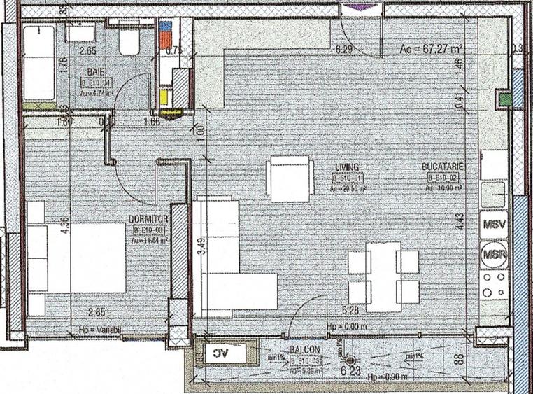
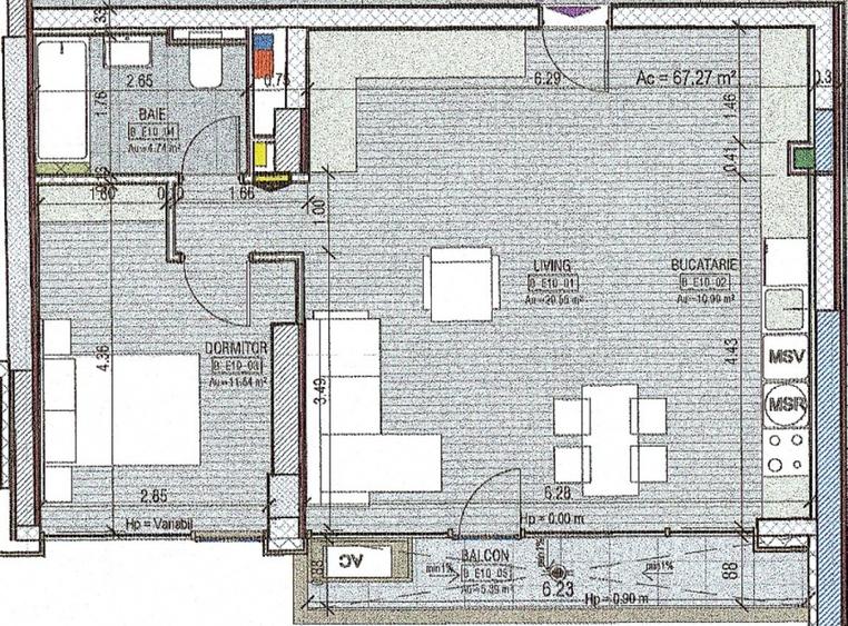
📐 Suprafață utilă: 57 mp
❄️ Aer condiționat Mitsubishi – confort sporit în sezonul cald.
🏗️ Proiect finalizat.
🎨 Finisaje moderne și de calitate – totul este gata pentru a fi mobilat după gustul tău.
Apartamentul este situat pe scara 1, cu 2 ascensoare.
Apartamentul este ideal atât pentru locuit, cât și pentru investiție, într-un cartier consolidat, aproape de școli, mijloace de transport in comun, magazine și spații verzi.
Locuri de parcare vor fi disponibile odata cu finalizarea fazei 2.
Pretului afisat i se adauga TVA 21%.
📞 Contactează-ne pentru o vizionare și hai să descoperi dacă acesta este viitorul tău cămin!
67%dintre proprietățile similare ca zonă și nr. camere au prețul cerutmai mic.
mai multe...
Bine de știut: prețul unei proprietăți este influențat și de alte caracteristici, cum ar fi: vechime, localizare, vecinătăți, suprafață, compartimentare, amenajări, dotări, etc.
mai puțin...
Costuri cu achiziția
Fără credit
8.722 RON
Credit ipotecar
10.554 RON
Noua casă
1.004 RON+ taxe notariale
i
Costuri adiționale mai puțin știute la achiziție: taxe notariale, comisioane etc.
Calculul ipotecarului
Proprietăți recomandate
Pornind de la căutarea ta îți recomandăm următoarele anunțuri
Sediul central - Timișoara
Bulevardul Victor Babeș nr. 2, 300230, Timișoara, România
Tel: +40.374.40.44.98 / Fax: +40.256.401.179
Email: suport@imobiliare.ro
Luni - Vineri 08:00 - 20:00
Punct de lucru - București: Iride Business Park, Bld. Dimitrie
Pompeiu 9-9A, Clădirea B2B,
020335, Sector 2, București, România
CONTACT
Sediul central - Timișoara
Bulevardul Victor Babeș nr. 2, 300230, Timișoara, România
Tel: +40.374.40.44.98 / Fax: +40.256.401.179
Email: suport@imobiliare.ro
Luni - Vineri 08:00 - 20:00
Punct de lucru - București: Iride Business Park, Bld. Dimitrie
Pompeiu 9-9A, Clădirea B2B,
020335, Sector 2, București, România
Metrorex. Stația Obor (M1)(1989)(Fosta statie de tramvai subterana)
aprox.
1498 m
Statia Teiul Doamnei, linia 66
aprox.
1314 m
Statia Doamna Ghica, linia 66
aprox.
1489 m
Statia Doamna Ghica, linia 66
aprox.
1559 m
Statia Calea Dorobantilor; Liniile:79, 86,
aprox.
1832 m
Statia Piata Romana linii : 79,86
aprox.
1989 m
Liceul Tehnic Traian
aprox.
121 m
Colegiul Tehnic "Traian"
aprox.
122 m
Scoala de muzica si arte plastice nr. 4
aprox.
396 m
Scoala Gimnaziala de Arte nr. 4
aprox.
414 m
gradinitza "zori de zi"
aprox.
648 m
Scoala Generala nr.28
aprox.
727 m
Scoala Generala nr. 28
aprox.
727 m
ȘCOALA CU CLASELE I-VIII NR. 10
aprox.
823 m
Maria Rosetti
aprox.
823 m
Laborator de Hidraulică și Protecția Mediului
aprox.
856 m
Gradinita Floreasca Rahmaninov
aprox.
933 m
LICEUL TEORETIC "C.A. ROSETTI"
aprox.
1021 m
Liceul C.A. Rosetti
aprox.
1021 m
Scoala Generala 27
aprox.
1105 m
Clubul Sportiv Dinamo Bucuresti
aprox.
1106 m
Gradinita Numarul 7
aprox.
398 m
Gradinita nr. 7
aprox.
401 m
Gradinita Nr. 234 - Zori de zi
aprox.
617 m
Gradinita numarul 12 Albinuta
aprox.
815 m
Gradinita nr. 12 Albinuta
aprox.
828 m
Gradinita nr. 7
aprox.
843 m
Paradisul Copiilor
aprox.
918 m
Gradinita numarul 233
aprox.
993 m
Gradinita cu program normal si prelungit Happy Kids
aprox.
1115 m
Gradinita numarul 135
aprox.
1133 m
Gradinita nr. 135
aprox.
1140 m
Gradinita nr. 138 cu program prelungit
aprox.
1181 m
Gradinita nr. 233
aprox.
1229 m
Coccinelle
aprox.
1262 m
Gradinita nr. 252 cu program prelungit
aprox.
1564 m
Athenaeum University (en)
aprox.
702 m
Universitatea Atenaeum
aprox.
710 m
Facultatea de Hidrotehnica
aprox.
845 m
UTCB-Laborator de Hidraulica si Protectia Mediului
aprox.
856 m
Universitatea Technică de Construcții (UTCB)
aprox.
909 m
Universitatea Tehnica de Constructii Bucuresti
aprox.
927 m
Facultatea de Constructii Civile, Industriale si Agricole
aprox.
931 m
Facultatea de Constructii Civile
aprox.
932 m
UTCB - Facultatea de Geodezie
aprox.
995 m
Facultatea de Cai Ferate Drumuri si Poduri, Facultate de Geodezie
aprox.
1011 m
Universitatea Spiru Haret - Facultatea de Medicina veterinara
aprox.
1129 m
CROS - Universitatea Alternativa
aprox.
1513 m
ASE - Cibernetica
aprox.
1826 m
ASE Cibernetica (en)
aprox.
1860 m
ASE - Facultatea de Comert
aprox.
1891 m
Mega Image
aprox.
47 m
Domino Plaza
aprox.
404 m
Kaufland Barbu Vacarescu
aprox.
465 m
Issa Supermarket
aprox.
491 m
BILLA - B. Vacarescu
aprox.
533 m
Mega Image Maica Domnului Non-Stop
aprox.
587 m
Best Supermarket
aprox.
1045 m
Ethos supermarket
aprox.
1045 m
Stock Market
aprox.
1058 m
Mega Image
aprox.
1072 m
Mega Image Lizeanu Non-Stop
aprox.
1102 m
Mega Image Supermarket
aprox.
1122 m
Carrefour Express
aprox.
1280 m
Cristim
aprox.
1290 m
Hamudi Star Company
aprox.
1291 m
"METROPLIS CENTER"
aprox.
1593 m
Parcare
aprox.
265 m
Parcare
aprox.
496 m
Parcare
aprox.
547 m
Parcare
aprox.
551 m
Parcare
aprox.
573 m
Parcare
aprox.
639 m
Parcare
aprox.
656 m
Parcare
aprox.
658 m
Parcare
aprox.
658 m
Parcare privata
aprox.
711 m
Parcare
aprox.
754 m
Parcare
aprox.
876 m
Parcare
aprox.
879 m
Parcare
aprox.
965 m
Parcare
aprox.
980 m
Teren sportiv
aprox.
214 m
ICSIM
aprox.
625 m
Teren sportiv
aprox.
835 m
Teren sportiv
aprox.
873 m
Teren sportiv
aprox.
874 m
Teren sportiv
aprox.
902 m
Teren sportiv
aprox.
912 m
Teren sportiv
aprox.
936 m
Teren sportiv
aprox.
968 m
Teren sportiv
aprox.
973 m
Teren sportiv
aprox.
974 m
Teren sportiv
aprox.
980 m
Teren sportiv
aprox.
983 m
Teren sportiv
aprox.
1003 m
Teren sportiv
aprox.
1013 m
Parc
aprox.
312 m
Parcul Circului
aprox.
440 m
Parcul Circului(1961)
aprox.
523 m
Spatii verzi
aprox.
650 m
Parc
aprox.
681 m
Parc
aprox.
770 m
Parcul Floreasca Cinema
aprox.
778 m
Parc
aprox.
822 m
Parcul Tei
aprox.
1018 m
Parcul Tei(1948)
aprox.
1026 m
Parc
aprox.
1055 m
Automatica Park (en)
aprox.
1058 m
Cosmos Party
aprox.
1145 m
Parc
aprox.
1159 m
Parcul Verdi
aprox.
1182 m
Piata Bucur Obor
aprox.
1545 m
Catena Farmacie
aprox.
36 m
Sante
aprox.
60 m
Bebe Tei
aprox.
64 m
Farmacia Tei
aprox.
69 m
Sensiblu
aprox.
84 m
Farmacia Richter
aprox.
249 m
Farmacia Tei
aprox.
346 m
Panaceea
aprox.
363 m
Farmacia Dona
aprox.
404 m
City Pharma
aprox.
427 m
BellaDona
aprox.
427 m
Sensiblu
aprox.
465 m
Sensiblu Spitalul Colentina
aprox.
792 m
Pluriactiv Expert
aprox.
826 m
Pharma Life
aprox.
870 m
Scorseze Medical Grup
aprox.
498 m
PROVITA
aprox.
592 m
PAVILIONUL D
aprox.
652 m
Pavilion D - Policlinica Grozovici
aprox.
664 m
Pavilonul J
aprox.
685 m
Pavilonul C
aprox.
694 m
Sectia Cardiologie
aprox.
713 m
PAVILIONUL I
aprox.
718 m
Clinica de Boli Profesionale
aprox.
720 m
PAVILIONUL E
aprox.
724 m
Centrul de Sanatate al RATB
aprox.
733 m
Centrul de Sanatate RATB
aprox.
738 m
PAVILIONUL B
aprox.
739 m
PAVILIONUL G
aprox.
763 m
Dispensar floreasca
aprox.
764 m
Restaurant Balbek
aprox.
94 m
Restaurant BUGATTI 2000
aprox.
173 m
Circus Pub
aprox.
249 m
Issa kebap
aprox.
510 m
Shaorma Nora
aprox.
556 m
McDonald's
aprox.
561 m
Restaurant Refugiu
aprox.
569 m
Presto Pizza
aprox.
594 m
Ganesha Garden
aprox.
755 m
Don Carlos
aprox.
759 m
Spring Time
aprox.
869 m
Spring Time (en)
aprox.
880 m
Sabatini Pizza
aprox.
886 m
Restaurant Tropicana
aprox.
887 m
La Placinte
aprox.
898 m
Restaurant-pizzerie BONA DA ELENA
aprox.
223 m
Open Pub
aprox.
1197 m
Barletto
aprox.
1263 m
Studio Martin
aprox.
1491 m
Doncafe Brasserie
aprox.
1657 m
Waldo's
aprox.
1707 m
Panik & Pub
aprox.
1756 m
OLD NICK PUB
aprox.
1993 m
Smart's Pub & Bistro
aprox.
1998 m
La Baraca
aprox.
504 m
Cup & Cake
aprox.
714 m
Sky Bar
aprox.
1465 m
Alan Dala
aprox.
1541 m
Lokal
aprox.
1592 m
ACAB Pub
aprox.
1614 m
E... Varza
aprox.
1654 m
Zappa Rock & More
aprox.
1787 m
Happy Pub
aprox.
1821 m
MIM Bistro
aprox.
1865 m
Ganesha Cafe
aprox.
755 m
Fitto Cafe
aprox.
1064 m
Randez Vous
aprox.
1427 m
Smart Change
aprox.
1441 m
Ambiance Caffe
aprox.
1484 m
Shiva
aprox.
1497 m
The Eatery
aprox.
1502 m
High Heels
aprox.
1511 m
Nuba Cafe
aprox.
1528 m
Slot Cafe
aprox.
1572 m
Reader's Cafe
aprox.
1600 m
Cappucini
aprox.
1749 m
Tucano Coffee - Dorobanti
aprox.
1780 m
Tucano Coffee
aprox.
1792 m
Mon Amour
aprox.
1862 m
Raiffeisen Bank
aprox.
62 m
CEC BANK
aprox.
178 m
Centrul de perfectionare BRD
aprox.
313 m
Banca Transilvania - Ag. Lacul Tei
aprox.
408 m
ING Kaufland Barbu Vacarescu
aprox.
462 m
Banca Romaneasca
aprox.
484 m
BCR Lacul Tei
aprox.
560 m
ING Lacul tei
aprox.
601 m
Banca Romaneasca
aprox.
682 m
Raiffeisen Bank - Agentia Lizeanu
aprox.
903 m
ProCredit Bank
aprox.
913 m
Banca Comerciala Carpatica
aprox.
944 m
UniCredit Bank - Ag. Lizeanu
aprox.
954 m
ING Stefan cel Mare - Lizeanu
aprox.
977 m
BRD Stefan Cel Mare
aprox.
979 m
Dacă te vei muta în zona Tei, vei avea la dispoziție mai multe mijloace de transport în comun. Printre acestea se numără tramvaiele 16 și 36. Primul oferă o conexiune rapidă cu zona Pipera sau te poate ajuta să ajungi la doi pași de Piața Unirii. Cel de-al doilea merge până în cartierul Titan. Cu autobuzul 182 poți să te deplasezi până în zona Gării de Nord, iar cu autobuzul 282 până la Gara Basarab. Cele mai apropiate stații de metrou pe care le vei alea la dispoziție, dacă te vei muta în Tei, sunt Ștefan cel Mare și Obor, ambele aflate pe traseul magistralei 1 Dristor - Pantelimon. Este important de menționat și faptul că în zona Fabrica de Glucoză - Petricani de la marginea cartierului există autostrada urbană. Practic, ai o legătură directă cu A3 București-Ploiești. Consultă harta pentru a afla unde sunt poziționate stațiile mijloacelor de transport în comun.
În zona Tei găsești mai multe grădinițe și școli. Printre unitățile de învățământ din cartier se numără Școala Gimnazială nr. 28 din zona Parcului Circului și Școala Gimnazială nr. 31 de pe Bulevardul Lacul Tei. Tot aici se află și Liceul Teoretic Traian și Universitatea Tehnică de Construcții din București, una dintre cele mai importante instituții de învățământ superior din Capitală. Consultă harta pentru mai multe opțiuni.
Dacă te muți în cartierul Tei, cel mai ușor îți poi face cumpărăturile în zona Obor. Ai acolo atât magazinul Bucur Obor, cât și halele și piața Obor. Imediat lângă acestea se află mall-ul Veranda care include un hipermarket Carrefour. La doi pași găsești și magazinul Kaufland Colentina. O altă zonă comercială, care include un magazin Kaufland cu o mică galerie comercială și un Carrefour Market, este localizată pe Strada Barbu Văcărescu. De aici ajungi foarte repede și la mall-ul Promenada. Centrul comercial Pipera Plaza poate fi, de asemenea, o opțiune bună pentru tine, mai ales dacă lucrezi în zona Pipera. Cuprinde mai mulți retaileri, câteva restaurante și cafenele. Consultă harta și vezi unde poți să-ți faci cumpărăturile, dacă te muți în cartierul Tei.
Îți recomandăm să te interesezi dacă poți închiria un loc de parcare în apropierea locuinței dorite. Trebuie să apelezi în acest sens la Biroul Parcări din cadrul ADP Sector 2. Este important, totodată, să știi că dacă te deplasezi cu mașina vei întâlni aglomerație în trafic în zona Străzii Doamna Ghica, în special la intersecția dintre aceasta, Bulevardul Lacul Tei și Strada Petricani. Intersecția se află pe ruta directă spre polul de business Pipera. De menționat este și faptul că în zona Fabrica de Glucoză - Petricani de la marginea cartierului există autostrada urbană. Practic, ai o legătură directă cu A3 București - Ploiești. Trafic îngreunat apare și la intersecția dintre Șoseaua Ștefan cel Mare și Strada Lizeanu, iar în zona intersecției Doamna Ghica există un proiect extensiv în lucru pentru realizarea unui pasaj rutier suprateran.
Dacă te vei muta în zona Tei, vei avea în apropierea casei tale mai multe parcuri și locuri de joacă. Parcul Lacul Tei cuprinde numeroase atracții pentru cei mici și o roată mare de unde te poți bucura de priveliști frumoase ale orașului. În zona Parcului Studențesc Tei vei găsi săli de fitness, cluburi de lux, terenuri sportive și Stadionul Studențesc, iar în partea de sud a cartierului Parcul Circului și Circul Metropolitan București (fostul Globus). În vecinătatea lor se află Stadionul Dinamo. Parcul Plumbuita poate fi o altă opțiune pentru a petrece o după-amiază liniștită în aer liber. Cel mai apropiat mall la care vei avea acces este Veranda. Aici vei putea merge la un cinema VR sau îți vei putea duce copilul la un loc de joacă indoor. Ajungi destul de rapid și la mall-ul Promenada. Dacă nu te deranjează să mergi câteva minute cu mașina, atunci trebuie să știi că ajungi destul de rapid la mall-ul Promenda, dar și în Piața Victoriei unde găsești mai multe muzee. Îți poți lăsa mașina în parcarea publică aflată aici și poți face o mică plimbare pe Calea Victoriei. Găsești destul de multe obiective de vizitat în zonă și ai și unde să faci un popas la o cafea. Pentru o experiență inedită îți recomandăm o scurtă plimbare cu mașina până în cartierul Primăverii. Aici vei putea să vizitezi Palatul Primăverii, fosta reședință grandioasă a lui Nicolae Ceaușescu. Atenție, însă, ai nevoie de rezervare în avans. Află ce alte puncte de interes găsești în zona Tei și în împrejurimi de pe hartă.
Printre cele mai apropiate unități medicale la care vei putea apela, dacă te vei muta în zona Tei, se numără Spitalul Clinic Colentina și Institutul Național de Boli Infecțioase Prof. Dr. Matei Balș, ambele situate în vecinătatea Parcului Circului. La intersecția dintre Strada Barbu Văcărescu și Șoseaua Ștefan cel Mare vei găsi, totodată, Spitalul Sf. Ștefan. În imediata apropiere a acestuia se află și Spitalul Clinic de Urgență București și Spitalul Euroclinic din rețeaua privată Regina Maria. Consultă harta pentru a vedea unde sunt localizate clinicile private din cartier și din împrejurimi.
Găsești o serie de restaurante și baruri în zona Parcului Verdi și pe malul Lacului Tei. De altfel, există și mai multe săli de evenimente cu ieșire la lac sau situate în imediata sa vecinătate. Din zona Tei ajungi foarte rapid și la numeroasele terase, cafenele și restaurante aflate pe Calea Floreasca sau în Dorobanți. Restaurante de tip fast food găsești în zona Obor din apropiere. Ai câteva opțiuni pentru o gustare și în incinta Veranda Mall. Iar dacă îți dorești mai multă diversitate, poți oricând să mergi cu mașina până la Promenada Mall. Ajungi în doar câteva minute. Consultă harta. Află care este cel mai apropiat local de viitoarea ta locuință din zona Tei.
Găsești mai multe sucursale bancare în zona intersecției Doamna Ghica, lângă intrarea în Parcul Plumbuita. Altele pe Bulevardul Lacul Tei care traversează cartierul. Consultă harta și află unde găsești cel mai apropiat bancomat.
Înainte să pleci...
Ești sigur că ai văzut și aceste proprietăți?
160.000 € + TVA
București, Lacul Tei
2 camere
99 mp
Etaj 3
119.900 €
București, Tei
2 camere
53 mp
Etaj 3 / 10
147.000 € + TVA
București, Tei
2 camere
51 mp
Etaj 5 / 12
139.999 € + TVA
București, Parcul Circului
2 camere
57 mp
Etaj 4
157.000 €
București, Barbu Văcărescu
2 camere
43 mp
Etaj 1 / 2
151.500 € + TVA
București, Tei
2 camere
56,5 mp
Parter / 6
Creează alertă
Salvează căutarea ca să primești pe email ultimele anunțuri publicate
Apartamente noi cu 2 camere de vânzare în zona Tei, Sector 2
Cere detalii prin email
*
*
*
*
Detaliile tale de contact vor fi partajate cu Meta Homes
Statistici proprietate
Apartamente 2 camere de vânzare
- București
- Zona Tei
Asigurare de viață/lună Costul este variabil. În funcție de banca aleasă, procentul variază între 0.0259% și 0.035% din soldul creditului.
Costuri cu achiziția10.554 RON
Comision agenție Întreabă agenţia
Onorariu notarial7.426 RON
Taxă întabulare OCPI1.296 RON
Autentificare contract credit1.832 RON
Preț de achiziție863.686 RON
Preț locuință713.790 RON
TVA 21%149.896 RON
Preț de achiziție863.686 RON
Preț locuință713.790 RON
TVA 21%
149.896 RON
Avans minim256.965 RON
Credit pe 30 de ani606.722 RON
Cost achitat în prima lună
Taxa evaluare imobil(până la)
575 RON
Rata lunară (variabilă)4.263 RON
Depozit colateral12.789 RON
Comision de garantare FNGCIMM72 RON
Asigurare anuală imobil864 RON
Poliță PAD130 RON
Tarif arhivă electronică102 RON
Costuri adiționale1.004 RON + taxe notariale
Asigurare viață și complexă (opțională)Costul este variabil. În funcție de banca aleasă, procentul variază între 0.0259% și 0.035% din soldul creditului
Onorariu notarialconform tarif notarial
Taxă întabulare OCPI1.004 RON
i
Toate valorile de mai sus sunt estimative și nu reprezintă în mod obligatoriu costurile exacte pe care le veți primi de la companiile/instituțiile prin care veți încheia tranzacția.