1

Apartament 2 camere 51 mp/ Sector 3/ Park LAKE

104.999 €

Liviu Rebreanu, București

Nr. cam.:
2
Sup. utilă:
51 mp
Etaj:
Parter
An constr.:
1967
  • • Exclusivitate
  • • Locație aproximativă
  • • Vizionare prin apel video

Descriere apartament

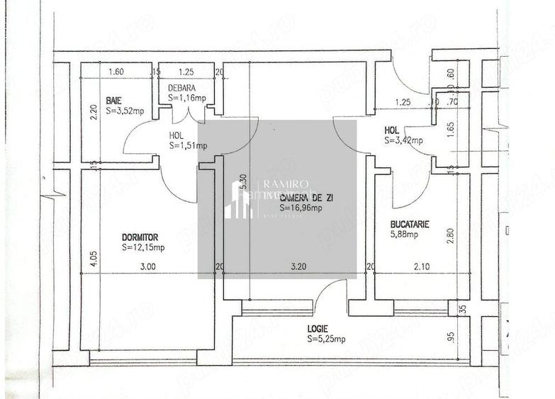
Apartament 2 camere, semidecomandat, 51 mp Situat în zona Dristor, pe strada Liviu Rebreanu Amplasat la parterul unui bloc anvelopat de 10 etaje Poziționare avantajoasă Avantaje principale: Orientare către spațiu verde generos → liniște și intimitate Balcon tip logie de peste 5 mp Baie cu geam (ventilație naturală) Dotări: Parțial mobilat și utilat Aer condiționat Aragaz Mașină de spălat rufe Localizare și acces: Aproximativ 5 minute până la metrou Dristor Aproape de Piața Râmnicu Sărat În vecinătatea parcului IOR Acces rapid la facilități urbane (magazine, transport, servicii) Potrivit pentru: Locuință personală Investiție (zonă cu cerere constantă) Preț negociabil Comision Standard Pentru mai multe detalii, vizionari sau oferte similare, contactati-ma! Emma Oferim suport complet în relația cu banca, cu acces la cele mai bune oferte de finanțare, precum și asistență notarială la cele mai bune prețuri.
Citește mai mult Citește mai puțin
Confort 1 Semidecomandat 1 Balcon / Terasă / Logie Renovat

Detalii apartament

ID anunț: XCRN104HM Copiat! 275398815 Copiat!
Actualizat în: 10 Mai 2026
Nr. bucătării: 1
Nr. băi: 1
Tip imobil: Bloc de apartamente
Tip tranzacție: De vânzare prin agent
Regim înălțime: P+10E
Modalitate de plată: Cash sau Credit

Utilități

Utilități
Curent Apă Canalizare CATV Gaze Telefon
Internet
Cablu
Amenajare străzi
Iluminat stradal Mijloace de transport în comun Asfaltate
Comision
standard

Vecinătăți:

ParkLake

Disponibilitate proprietate:

Imediat

Puncte de interes

Mijloace transport
tram-station
statia de tramvai voluntarilor
Stații tramvai aprox. 98 m
bus-station
statia Fizicienilor, linia 330, N103, 23, 27.
Stații autobuz aprox. 332 m
metro-station
Metrorex.Stația Dristor 1 (M1) , (M3)(1981)
Stații metrou aprox. 814 m
trolleybus-station
statie troleu 70,92,79 (en)
Stații troleibuz aprox. 1554 m
Școală
kindergarten
Gradinita nr.3
Gradinițe aprox. 113 m
kindergarten
Gradinita nr. 3
Gradinițe aprox. 113 m
school
Scoala Generala nr. 54 (en)
Școli aprox. 164 m
university
Universitatea "Gheorghe Cristea"
Universități aprox. 947 m
Recreere
sports-ground
Teren sportiv
Terenuri sport aprox. 139 m
supermarket
Mega Image
Supermarket aprox. 227 m
park
Little community park
Parcuri aprox. 339 m
restaurant
Cetatea Berarilor
Restaurant aprox. 353 m

Detalii despre preț și costuri

Prețul pe piață

Preț cerut: 104.999 €

Preț min. zonă
Preț max. zonă

68% dintre proprietățile similare ca zonă și nr. camere au prețul cerut mai mic. mai multe...

Bine de știut: prețul unei proprietăți este influențat și de alte caracteristici, cum ar fi: vechime, localizare, vecinătăți, suprafață, compartimentare, amenajări, dotări, etc. mai puțin...

Acces la informații premium după autentificare
Login Gratuit

Costuri cu achiziția

Fără credit
Credit ipotecar
Noua casă

i

Costuri adiționale mai puțin știute la achiziție: taxe notariale, comisioane etc.

Acces la informații premium după autentificare
Login Gratuit

Proprietăți similare

Apartament cu 2 camere decomandat în Theodor Pallady
102.729 €
București, Theodor Pallady
2 camere
56,1 mp
Etaj 7 / 11
Apartament cu 3 camere semidecomandat în Liviu Rebreanu
100.000 €
București, Liviu Rebreanu
3 camere
60 mp
Etaj 3
Apartament cu 2 camere semidecomandat, mobilat în Liviu Rebreanu
115.000 €
București, Liviu Rebreanu
2 camere
51 mp
Parter / 10

Detalii de contact

Abonează-te la newsletter să fii primul care primește cele mai noi recomandări de proprietăți și sfaturi de la experți.

CONTACT

Creează alertă

Salvează căutarea ca să primești pe email ultimele anunțuri publicate

Apartamente cu 2 camere de vânzare în zona Liviu Rebreanu, Sector 3