3

3 camere | cesiune | Estoria | 6 MINUTE METROU | finalizat

146.835 € + TVA

Theodor Pallady, București

Nr. cam.:
3
Sup. utilă:
82,1 mp
Etaj:
10 / 11
An constr.:
2025 (Finalizată)
  • • Locație exactă

Descriere apartament

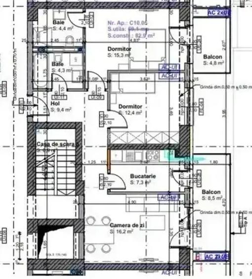
Se vinde un apartament de 3 camere in Estoria City faza doi - 82.90 mp cu 2 balcoane incluse -pozitie est. Detalii si vizionari la numarul - . Se accepta credit. Pret cedare - 177.670 euro tva inclus ( 31.325 euro + 4721.85 euro tva si diferenta de plata la dezvoltator 141.624.45 euro ) Apartamentul are varianta de finisaje Premium.. Apartamentul 3 Camere situat la etajul 10, compus din 3 (trei) camere de locuit și dependințe, respectiv, cameră de zi, două dormitoare, bucătărie, două băi și hol, având suprafața utilă de aproximativ 68,90 mp + suprafață logie/terasa/balcon de aproximativ 13,30 mp, deci o suprafață totală (inclusiv logie/terasa/balcon) de aproximativ 82,20 mp Parcare de la 12.500 euro + tva daca se doreste. VAUNT ID: 105911
Citește mai mult Citește mai puțin
Confort 1 Decomandat Nemobilat 2 Balcoane Curte comună Centrală proprie Încălzire prin pardoseală Renovat

Detalii apartament

ID anunț: XERG102EO Copiat! 272285033 Copiat!
Actualizat în: 06 Februarie 2026
Suprafață utilă totală: 82.1 mp
Suprafață construită: 105 mp
Nr. bucătării: 1
Nr. băi: 2
Structură rezistență: Beton
Tip imobil: Bloc de apartamente
Regim înălțime: P+11E

Utilități

Destinație
Rezidențial
Pereți
Vopsea lavabilă Faianță
Podele
Gresie
Ușă intrare
Parchet Metal
Uși interior
Celulare
Izolații termice
Exterior
Ferestre cu geam termopan
PVC
Contorizare
Apometre Contor gaz
Dotări imobil
Videointerfon Lift
Utilități
Gaze CATV Curent Apă Canalizare
Acces internet
Fibră optică Cablu Wireless
Servicii imobil
Administrare Supraveghere video
Amenajare străzi
Iluminat stradal Mijloace de transport în comun Asfaltate

Certificat energetic:

Clasa energetică: A

Puncte de interes

Mijloace transport
bus-station
Statia Chimopar, N111, 23, 27, 40
Stații autobuz aprox. 370 m
tram-station
Chimopar
Stații tramvai aprox. 372 m
metro-station
Metrorex.Stația Nicolae Teclu (M3)(2008)
Stații metrou aprox. 404 m
bus-station
RATB Titan, Linia 246, N111, 23, 27, 40
Stații autobuz aprox. 560 m
Școală
school
Spectrum Liceul Teoretic International de Informatica
Școli aprox. 1074 m
kindergarten
Gradinita nr. 68
Gradinițe aprox. 1153 m
kindergarten
Gradinita Nr. 160
Gradinițe aprox. 1371 m
school
Scoala Nr. 149
Școli aprox. 1397 m
Recreere
park
Parc
Parcuri aprox. 263 m
hypermarket
Decathlon
Hipermarket aprox. 281 m
supermarket
Metro Pallady
Supermarket aprox. 295 m
sports-ground
Teren de fotbal
Terenuri sport aprox. 1265 m

Detalii despre preț și costuri

Prețul pe piață

Preț cerut: 146.835 €

Preț min. zonă 93.000 €
Preț max. zonă 199.000 €

52% dintre proprietățile similare ca zonă și nr. camere au prețul cerut mai mic. mai multe...

Bine de știut: prețul unei proprietăți este influențat și de alte caracteristici, cum ar fi: vechime, localizare, vecinătăți, suprafață, compartimentare, amenajări, dotări, etc. mai puțin...

Costuri cu achiziția

Fără credit
9.001 RON
Credit ipotecar
10.868 RON
Noua casă
1.045 RON+ taxe notariale

i

Costuri adiționale mai puțin știute la achiziție: taxe notariale, comisioane etc.

Proprietăți recomandate

Detalii de contact

Real Home

Mihai Alecsa Project Manager

Real Home
PRO

Abonează-te la newsletter să fii primul care primește cele mai noi recomandări de proprietăți și sfaturi de la experți.

CONTACT

Creează alertă

Salvează căutarea ca să primești pe email ultimele anunțuri publicate

Apartamente noi cu 3 camere de vânzare în zona Theodor Pallady, Sector 3