Apartament 2 camere 61mp utili / incalzire pardoseala / Metrou N.Teclu

164.800 €

Theodor Pallady, București

Nr. cam.:
2
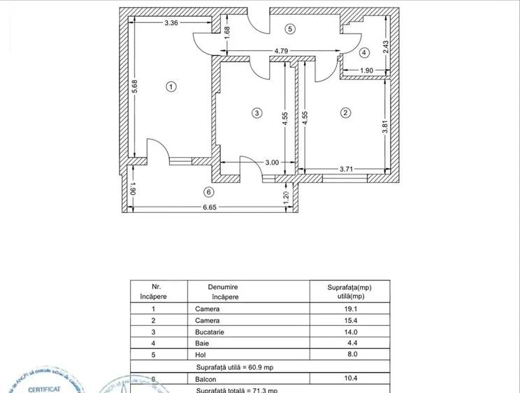
Sup. utilă:
60,9 mp
Etaj:
1 / 5
An constr.:
2023 (Finalizată)
  • • Locație exactă

Descriere apartament

Atentie: acest anunt nu este facut cu chatgpt. Adresa: complex Evia Uno Theodor Pallady Aspecte importante pe langa faptul ca are toate utilitatile furnizate de Sectorul 3. -60.9mp utili, 71.3mp utili totali -bucatarie 14mp foarte generoasa -clasa energetica A ( pentru cine doreste info la creditare) -incalzire prin pardoseala innofloor premium reglabila pe fiecare incapere -tamplarie Salamander tripan BluEvolution 4s 5 camere gri antracit -rulouri exterioare -balcon de 10mp inchis cu sticla tip evantai ( foarte practic iarna) -pozitionare cardinala SUD -centrala prop -mobilat si utilat -obiecte sanitare Roca -prize si intrerupatoare Gewiss Dispune si de videointerfon, pe casa scarii avem lift Schindler. Sistem supraveghere video -bloc finalizat in anul 2023 Apartamentul se prezinta foarte bine , fotografii reale. Cu putina imaginatie pentru cine doreste sa mute bucataria in living , se poate transforma intr-un 3 camere bucatarie open. Pentru mai multe detalii sau vizionari, ma puteti suna sau mesaj pe whatsapp Victor :) VAUNT ID: 110410
Citește mai mult Citește mai puțin
Confort lux Decomandat Mobilat Mobilat 1 Balcon / Terasă / Logie Aer condiționat Centrală proprie Încălzire prin pardoseală Bine întreținut (Bună)

Detalii apartament

ID anunț: XERG102LR Copiat! 275124617 Copiat!
Actualizat în: 26 Februarie 2026
Suprafață utilă totală: 60.9 mp
Suprafață construită: 83 mp
Nr. bucătării: 1
Nr. băi: 1
Structură rezistență: Beton
Tip imobil: Bloc de apartamente
Regim înălțime: P+5E

Utilități

Destinație
Rezidențial
Izolații termice
Exterior
Ferestre cu geam termopan
PVC
Bucătărie
Utilată Parțial mobilată
Electrocasnice
Mașină de spălat Frigider Cuptor microunde Aragaz Hotă
Diverse
Senzor de fum Telecomandă poartă acces auto
Facilități imobil
Videointerfon Interfon Lift
Utilități
Gaze Curent Apă Canalizare
Internet
Fibră optică Cablu Wireless
Servicii imobil
Administrare Supraveghere video
Amenajare străzi
Mijloace de transport în comun Asfaltate

Certificat energetic:

Clasa energetică: A

Puncte de interes

Mijloace transport
tram-station
Chimopar
Stații tramvai aprox. 896 m
tram-station
Complex RATB Titan
Stații tramvai aprox. 897 m
bus-station
RATB Titan, Linia 246, N111, 23, 27, 40
Stații autobuz aprox. 900 m
metro-station
Metrorex.Stația Nicolae Teclu (M3)(2008)
Stații metrou aprox. 1019 m
Școală
school
Spectrum Liceul Teoretic International de Informatica
Școli aprox. 933 m
kindergarten
Gradinita nr. 68
Gradinițe aprox. 1374 m
school
Scoala Generala nr. 55
Școli aprox. 1670 m
kindergarten
Gradinita Nr. 160 - "soarelui"
Gradinițe aprox. 1782 m
Recreere
park
Parc
Parcuri aprox. 378 m
supermarket
Metro Pallady
Supermarket aprox. 602 m
hypermarket
Metro
Hipermarket aprox. 602 m
sports-ground
Teren de fotbal
Terenuri sport aprox. 1688 m

Detalii despre preț și costuri

Prețul pe piață

Preț cerut: 164.800 €

Preț min. zonă 69.900 €
Preț max. zonă 140.000 €

i

Proprietate cu prețul cerut în afara intervalului mai multe...

Posibile explicații pentru faptul că prețul proprietății este peste cel maxim: imobil nou cu suprafață mare, are dotări și finisaje de lux.
Bine de știut: prețul unei proprietăți este influențat și de alte caracteristici, cum ar fi: vechime, localizare, vecinătăți, suprafață, compartimentare, amenajări, dotări, etc.

Costuri cu achiziția

Fără credit
8.560 RON
Credit ipotecar
10.372 RON
Noua casă
980 RON+ taxe notariale

i

Costuri adiționale mai puțin știute la achiziție: taxe notariale, comisioane etc.

Proprietăți similare

Apartament cu 3 camere decomandat în Theodor Pallady
148.370 € + TVA
București, Theodor Pallady
3 camere
69 mp
Etaj 10
Apartament cu 3 camere decomandat în Theodor Pallady
148.700 € + TVA
București, Theodor Pallady
3 camere
90,1 mp
Etaj 1
Apartament cu 3 camere semidecomandat în Theodor Pallady
158.860 € + TVA
București, Theodor Pallady
3 camere
94 mp
Etaj 3

Detalii de contact

Real Home

Victor Gheorghe Project Manager

Real Home
PRO

Abonează-te la newsletter să fii primul care primește cele mai noi recomandări de proprietăți și sfaturi de la experți.

CONTACT

Creează alertă

Salvează căutarea ca să primești pe email ultimele anunțuri publicate

Apartamente noi cu 2 camere de vânzare în zona Theodor Pallady, Sector 3