2

Metrou Berceni(350 metri)-Apartament 2 camere-Bloc Finalizat-TVA INCLUS 21%

89.500 €

Berceni, București

Nr. cam.:
2
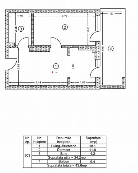
Sup. utilă:
43,6 mp
Etaj:
3 / 7
An constr.:
2025 (Finalizată)
  • • Comision 0%
  • • Locație exactă
  • • Proprietate nelocuită

Descriere apartament

Acest apartament se afla untr-un proiect cu 2 piscine esterioare si un parc privat. Apartamentul cu 2 camere tip studio de 43,6 mp se află în bloc construit în 2025, situat la etajul 3. Are 2 camere, balcoan și tâmplărie din plastic. În interior, pardoselile sunt și ele moderne, iar în plus, beneficiați de aer condiționat și centrală pe gaz si incalzire in pardoseala. Proprietatea este gata de utilizare și se vinde cu drept de proprietate. Locația este foarte convenabilă, fiind în apropierea metroului Berceni. În apropiere găsești mai multe școli, parcuri și centre medicale, precum și supermarket-uri și magazine. Transportul public este accesibil, cu stații de autobuz și metrou aproape. În plus, sunt disponibile restaurant-uri, cafea și centre sportive în zonă. Dacă te interesează un apartament într-o zonă cu toate facilitățile, acest imobil poate fi o alegere potrivită. Contactează-ne pentru a programa o vizionare și descoperă-ți noua locuință! Acte gata, mutare imediata. Cash sau Credit ipotecar. Birou Vanzari. Comision-0
Citește mai mult Citește mai puțin
Confort 1 Nedecomandat 1 Balcon / Terasă / Logie Piscină Aer condiționat Centrală proprie Încălzire prin pardoseală Bine întreținut (Bună)

Detalii apartament

ID anunț: X78O005I1 Copiat! 275404260 Copiat!
Actualizat în: 09 Mai 2026
Suprafață utilă totală: 43.6 mp
Suprafață construită: 50 mp
Nr. bucătării: 1
Nr. băi: 1
Structură rezistență: Beton
Tip imobil: Bloc de apartamente
Tip tranzacție: De vânzare prin agent
Regim înălțime: D+P+7E
Vizionare cu programare: Da
Modalitate de plată: Cash sau Credit

Utilități

Destinație
Rezidențial
Pereți
Faianță Vopsea lavabilă
Podele
Parchet Gresie
Ușă intrare
Metal
Uși interior
Lemn
Izolații termice
Exterior
Ferestre cu geam termopan
PVC
Contorizare
Contor gaz Apometre
Bucătărie
Mobilată
Facilități imobil
Piscină exterioară Lift Interfon
Utilități
CATV Gaze Curent Canalizare Apă
Internet
Cablu Fibră optică
Servicii imobil
Administrare Pază
Amenajare străzi
Asfaltate Betonate Iluminat stradal Mijloace de transport în comun
Comision
0%

Vecinătăți:

Metrou Berceni(400 metri)

Alte detalii despre preț:

TVA Inclus

Puncte de interes

Mijloace transport
metro-station
Berceni (M2)
Stații metrou aprox. 47 m
bus-station
Statia IMGB Poarta 2, linia 125, metrou M2
Stații autobuz aprox. 102 m
bus-station
Sos. Berceni 104, linia 125
Stații autobuz aprox. 659 m
metro-station
Dimitrie Leonida (M2)
Stații metrou aprox. 1002 m
Școală
school
Colegiul Tehnic Miron Nicolescu
Școli aprox. 1333 m
Recreere
supermarket
Nonni
Supermarket aprox. 497 m
park
Parc
Parcuri aprox. 663 m
hypermarket
Metro Berceni
Hipermarket aprox. 1877 m
sports-ground
Teren sportiv
Terenuri sport aprox. 1887 m

Detalii despre preț și costuri

Prețul pe piață

Preț cerut: 89.500 €

Preț min. zonă
Preț max. zonă

81% dintre proprietățile similare ca zonă și nr. camere au prețul cerut mai mic. mai multe...

Bine de știut: prețul unei proprietăți este influențat și de alte caracteristici, cum ar fi: vechime, localizare, vecinătăți, suprafață, compartimentare, amenajări, dotări, etc. mai puțin...

Acces la informații premium după autentificare
Login Gratuit

Costuri cu achiziția

Fără credit
Credit ipotecar
Noua casă

i

Costuri adiționale mai puțin știute la achiziție: taxe notariale, comisioane etc.

Acces la informații premium după autentificare
Login Gratuit

Proprietăți similare

Apartament cu 2 camere decomandat în Berceni
92.500 €
București, Berceni
2 camere
61 mp
Etaj 3
Apartament cu 2 camere în Berceni
85.000 €
București, Berceni
2 camere
50 mp
Etaj 8
Apartament cu 2 camere semidecomandat, mobilat în Berceni
94.000 €
București, Berceni
2 camere
50 mp
Etaj 3

Detalii de contact

TOPHOME.RO

Liviu Hantar agent

5.00(18 review-uri)

TOPHOME.RO
PRO

Abonează-te la newsletter să fii primul care primește cele mai noi recomandări de proprietăți și sfaturi de la experți.

CONTACT

Creează alertă

Salvează căutarea ca să primești pe email ultimele anunțuri publicate

Apartamente noi cu 2 camere de vânzare în zona Berceni, Sector 4