Ansamblu rezidential premium - Apartament 3 camere, terasa 65mp

244.000 € + TVA

Berceni, București

Nr. cam.:
3
Sup. utilă:
77,3 mp
Etaj:
6 / 6
An constr.:
2025 (În construcție)
  • • Comision 0%
  • • Exclusivitate
  • • Locație exactă

Descriere apartament

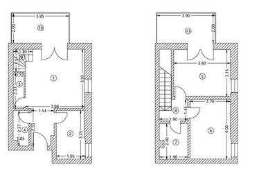
Va propunem spre vanzare un apartament cu 3 camere, parte din ansamblul Venus Arena Residence, un nou proiect rezidential modern, bine structurat si pregatit sa ofere un stil de viata confortabil, intr-un cadru urban bine conectat la facilitati esentiale din Sectorul 4, Bucuresti. Locuinta este eficient compartimentata si ofera o suprafata totala de 142.5 mp, din care: - Suprafata utila: 77.3 mp - Terasa: 65.2 mp - Compartimentare interioara optimizata: hol 11 mp, living 18.65mp, dormitor matrimonial cu baie proprie 14.85 mp, dressing 6.50 mp, dormitor secundar 9.45 mp. bucatarie 8.7 mp, baie 4.65 mp si grup sanitar 3.5 mp. Dotari si beneficii: - Incalzire in pardoseala, cu reglaj individual - Aer conditionat, inclus in pret - Tamplarie PVC Salamander, tripan, culoare Gri Antracit – izolatie fonica si termica superioara - Centrala termica de bloc, controlabila individual si sisteme ultramoderne MTH - Lifturi Schindler cu acces la toate nivelurile, inclusiv in parcarea subterana - Finisaje premium, la alegere in showroom dedicat - Balcon cu inchideri din sticla securizata, ideal pentru relaxare sau depozitare Ansamblul este situat la cateva minute de mers pe jos de metrou Aparatorii Patriei, intr-o zona urbana moderna, complet dezvoltata. - Acces facil la metrou, linii STB si bulevarde importante (Brancoveanu, Obregia, Metalurgiei), iar Pasajul Europa Unita asigura legatura rapida cu centrul orasului. - Comert si servicii: Sun Plaza, Grand Arena, Metro, Auchan, Selgros, Lidl, Carrefour, Piata Aparatorii Patriei, Spitalul Bagdasar-Arseni. - Educatie si sport: scoli, gradinite, centre educationale, Berceni Arena Sport Center (patinoar olimpic). - Recreere: Delta Vacaresti si Parcul Tudor Arghezi, ideale pentru relaxare si timp liber. Zona beneficiaza de infrastructura moderna si investitii continue, fiind un cadru ideal pentru o viata urbana activa si confortabila. In pretul afisat nu este inclusa cota de TVA.
Citește mai mult Citește mai puțin
Confort 1 Decomandat Nemobilat Aer condiționat Centrală imobil Încălzire prin pardoseală

Detalii apartament

ID anunț: X53U104A5 Copiat! 275305924 Copiat!
Actualizat în: 18 Martie 2026
Nr. bucătării: 1
Nr. băi: 2
Structură rezistență: Beton
Tip imobil: Bloc de apartamente
Regim înălțime: S+P+6E+M
Nr. terase: 1

Utilități

Destinație
Rezidențial
Pereți
Faianță Vopsea lavabilă
Podele
Gresie Parchet
Ușă intrare
Metal
Uși interior
Lemn
Izolații termice
Exterior
Ferestre cu geam termopan
PVC
Contorizare
Apometre Contor căldură Contor gaz
Alte spații utile
Terasă
Facilități imobil
Lift Videointerfon
Utilități
Curent Apă Canalizare Gaze
Internet
Cablu
Amenajare străzi
Iluminat stradal Mijloace de transport în comun Asfaltate
Servicii imobil
Supraveghere video

Disponibilitate proprietate:

05.2028

Puncte de interes

Mijloace transport
metro-station
Aparatorii Patriei (M2)
Stații metrou aprox. 170 m
metro-station
Metrorex. Stația Apărătorii Patriei (M2)(1986)
Stații metrou aprox. 182 m
bus-station
Statia Cartier Aparatorii Patriei, linia 125, 232, N106, 202, metrou M2
Stații autobuz aprox. 225 m
tram-station
Soseaua Vitan-Barzesti
Stații tramvai aprox. 966 m
Școală
university
Universitatea Spiru Haret
Universități aprox. 199 m
university
Universitatea "Spiru Haret" (Fosta Casă de Cultură IMGB).
Universități aprox. 223 m
school
Scoala Gimnaziala General Eremia Grigorescu
Școli aprox. 377 m
kindergarten
Gradinita "Panseluta", nr.166
Gradinițe aprox. 596 m
Recreere
supermarket
Profi
Supermarket aprox. 196 m
sports-ground
Teren sportiv
Terenuri sport aprox. 385 m
park
Parc
Parcuri aprox. 625 m
hypermarket
Hornbach
Hipermarket aprox. 1373 m

Detalii despre preț și costuri

Prețul pe piață

Preț cerut: 244.000 €

Preț min. zonă 84.000 €
Preț max. zonă 219.000 €

i

Proprietate cu prețul cerut în afara intervalului mai multe...

Posibile explicații pentru faptul că prețul proprietății este peste cel maxim: imobil nou cu suprafață mare, are dotări și finisaje de lux.
Bine de știut: prețul unei proprietăți este influențat și de alte caracteristici, cum ar fi: vechime, localizare, vecinătăți, suprafață, compartimentare, amenajări, dotări, etc.

Costuri cu achiziția

Fără credit
13.037 RON
Credit ipotecar
15.403 RON
Noua casă
1.644 RON+ taxe notariale

i

Costuri adiționale mai puțin știute la achiziție: taxe notariale, comisioane etc.

Venus Arena

Venus Arena

Bun Venit în Venus Arena Residence – Premium Apartments, Sector 4, București, dezvoltat lângă noul Berceni Arena și Metrou Apărătorii Patriei. Ultra modern, exclusivist, sofisticat, excelent poziționat și certificat verde de către Consiliul Clădirilor Verzi din România. Proiectul Venus Arena Residence este compus din 5 imobile rezidențiale, fiecare...

Vezi detalii ansamblu

Proprietăți similare

Apartament cu 4 camere decomandat în Berceni
220.000 € + TVA
București, Berceni
4 camere
87,9 mp
Etaj 1 / 11
Apartament cu 3 camere decomandat, mobilat în Berceni
250.000 €
București, Berceni
3 camere
60 mp
Etaj 11
Apartament cu 3 camere decomandat, mobilat în Berceni
225.000 €
București, Berceni
3 camere
85,96 mp
Etaj 3 / 4

Detalii de contact

SUD REZIDENTIAL

SudRezidential Excelenta in imobiliare

SUD REZIDENTIAL
PRO

Abonează-te la newsletter să fii primul care primește cele mai noi recomandări de proprietăți și sfaturi de la experți.

CONTACT

Creează alertă

Salvează căutarea ca să primești pe email ultimele anunțuri publicate

Apartamente cu 3 camere de vânzare în zona Berceni, Sector 4