4 Camere de vanzare | Berceni | Comision 0% | Centrala | Nou 2026

256.520 €

Berceni, București

Nr. cam.:
4
Sup. utilă:
94,32 mp
Etaj:
5 / 7
An constr.:
2026 (În construcție)
  • • Comision 0%
  • • Locație aproximativă

Descriere apartament

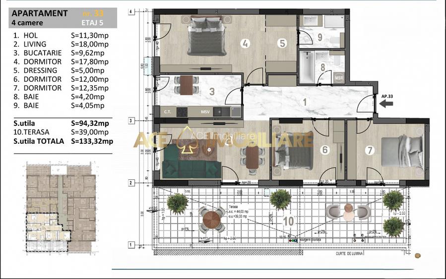
P253914 ACE Imobiliare vă oferă spre vânzare un apartament cu 4 camere, 2 bai, situat în zona Berceni, Strada Dealul Cucului. Locuința are o suprafață totala de 133,32 mp și se află la etajul 5 într-un imobil cu regim de înălțime P+7. Apartamentul este situat într-un imobil nou, aflat în curs de finalizare (termen estimat: august 2026), ideal atât pentru locuit, cât și pentru investiție. Locuința are: - suprafață utilă de 94,32 mp - suprafata terasa 39 mp Un mare plus îl reprezintă faptul că finisajele pot fi alese de către cumpărător, oferindu-vă posibilitatea de a personaliza locuința exact după gustul și stilul dorit. Se pot achizitiona si locuri de parcare: - exterior 7000 EURO + TVA - acoperit 9000 EURO + TVA - demisol 12000 EURO + TVA Zona beneficiază de acces facil la transportul public, restaurante, centre comerciale și alte facilități urbane, ceea ce face din acest apartament o alegere excelentă pentru un stil de viață confortabil și echilibrat sau pentru o investiție sigură. Pentru detalii suplimentare și pentru a programa o vizionare, vă invităm să ne contactați. ACE Imobiliare – acasă începe cu noi. Comisionul de intermediere este de 0% din prețul de tranzacție. Consultant imobiliar: Ana Dinu
Citește mai mult Citește mai puțin
Confort 1 Decomandat Nemobilat Calorifere Centrală proprie 1 Parcare Bine întreținut (Bună)

Detalii apartament

ID anunț: XG32101BL Copiat! 275348328 Copiat!
Actualizat în: 09 Mai 2026
Nr. bucătării: 1
Nr. băi: 2
Structură rezistență: Beton
Tip imobil: Bloc de apartamente
Tip tranzacție: De vânzare prin agent
Regim înălțime: P+7E
Nr. terase: 1
Modalitate de plată: Cash sau Credit

Utilități

Pereți
Vopsea lavabilă Var Faianță
Podele
Parchet Gresie
Ușă intrare
Metal
Izolații termice
Exterior Interior
Ferestre cu geam termopan
PVC
Contorizare
Contor căldură Contor gaz
Diverse
Senzor de fum Sistem de alarmă Telecomandă poartă acces auto
Facilități imobil
Videointerfon Lift
Utilități
Curent Apă Canalizare Gaze Telefon
Internet
Fibră optică
Servicii imobil
Supraveghere video
Amenajare străzi
Asfaltate
Comision
0%

Puncte de interes

Mijloace transport
bus-station
Statia Bd. Constantin Brancoveanu / Dorohoi, linia 141, 220, 202
Stații autobuz aprox. 800 m
bus-station
Statia CET Progresul, linia 216
Stații autobuz aprox. 808 m
train-station
Gara CFR Progresul
Stații tren aprox. 1789 m
tram-station
Cap. Raducanu Cristea
Stații tramvai aprox. 1888 m
Școală
kindergarten
Gradinita nr. 149
Gradinițe aprox. 967 m
school
Gradinita 167
Școli aprox. 1140 m
kindergarten
Gradinita
Gradinițe aprox. 1142 m
school
Clubul Sportiv Scolar 6
Școli aprox. 1374 m
Recreere
hypermarket
Hornbach
Hipermarket aprox. 589 m
supermarket
Selgros Berceni
Supermarket aprox. 589 m
park
Sere
Parcuri aprox. 707 m
sports-ground
Sala de sport
Terenuri sport aprox. 1587 m

Detalii despre preț și costuri

Prețul pe piață

Preț cerut: 310.389 €

Preț min. zonă
Preț max. zonă

99% dintre proprietățile similare ca zonă și nr. camere au prețul cerut mai mic. mai multe...

Bine de știut: prețul unei proprietăți este influențat și de alte caracteristici, cum ar fi: vechime, localizare, vecinătăți, suprafață, compartimentare, amenajări, dotări, etc. mai puțin...

Acces la informații premium după autentificare
Login Gratuit

Costuri cu achiziția

Fără credit
Credit ipotecar
Noua casă

i

Costuri adiționale mai puțin știute la achiziție: taxe notariale, comisioane etc.

Acces la informații premium după autentificare
Login Gratuit

Proprietăți similare

Apartament cu 4 camere decomandat în Berceni
217.800 €
București, Berceni
4 camere
99,7 mp
Etaj 6 / 7
Apartament cu 3 camere decomandat în Berceni
228.000 €
București, Berceni
3 camere
77 mp
Etaj 1
Apartament cu 3 camere decomandat, mobilat în Berceni
205.000 €
București, Berceni
3 camere
83 mp
Etaj 1

Detalii de contact

ACE Imobiliare

ACE Imobiliare Agent

4.21(12 review-uri)

ACE Imobiliare
PRO

Abonează-te la newsletter să fii primul care primește cele mai noi recomandări de proprietăți și sfaturi de la experți.

CONTACT

Creează alertă

Salvează căutarea ca să primești pe email ultimele anunțuri publicate

Apartamente cu 4+ camere de vânzare în zona Berceni, Sector 4