Locuinta cu terasa si curte privata – metrou Eroii Revolutiei, Sect4

240.000 € + TVA

Eroii Revoluției, București

Nr. cam.:
2
Sup. utilă:
56,2 mp
Etaj:
Parter / 3
An constr.:
2025 (În construcție)
  • • Comision 0%
  • • Locație aproximativă

Descriere apartament

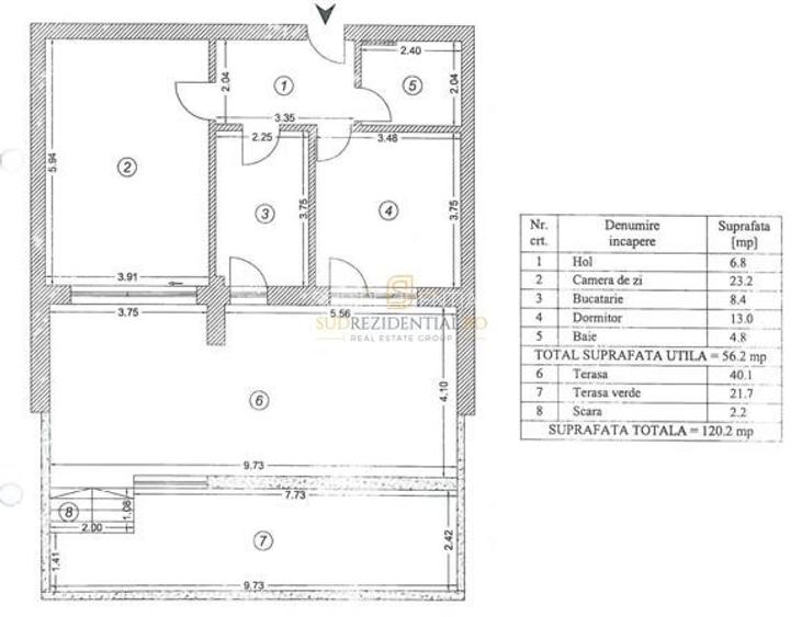
Va prezentam un apartament cu 2 camere situat la parterul unui imobil modern, ideal pentru cei care isi doresc un spatiu generos si confortabil. Locuinta face parte dintr-un complex rezidential exclusivist din Sector 4, Bucuresti si beneficiaza de proximitatea principalelor puncte de interes din zona. Suprafata utila a apartamentului este de 56.2 mp, completata de o terasa de 40.1 mp si o curte privata de 21.7 mp, ce ofera un cadru perfect pentru relaxare si activitati in aer liber. Dispunerea interioara este bine optimizata si include: - Hol: 6.8 mp - Living: 23.2 mp - Bucatarie: 8.4 mp - Dormitor: 13 mp - Baie: 4.8 mp Apartamentul este livrat finisat la standarde inalte, cu materiale premium, precum parchet laminat de calitate superioara, gresie si faianta moderna in baie si bucatarie, usi interioare din MDF si tamplarie PVC cu geam tripan. Sistemul de incalzire este asigurat de o centrala proprie, iar izolatia eficienta a peretilor contribuie la un consum redus de energie. Avantaje suplimentare: - Terasa spatioasa si curte privata amenajata cu spatiu verde. - Acces facil la mijloace de transport in comun, scoli, magazine si parcuri precum Tineretului, Oraselul Copiilor si Carol. - Posibilitate de achizitie loc de parcare. Complexul rezidential se bucura de o locatie privilegiata, cu acces rapid la transportul public. Statia de metrou Eroii Revolutiei se afla la aproximativ 10-12 minute de mers pe jos, iar la doar 2 minute distanta sunt disponibile statii pentru autobuzele 323 si N107, precum si pentru tramvaiele 7, 19 si 25. Zona ofera toate facilitatile necesare pentru un trai confortabil si modern. Aici se gasesc institutii de invatamant pentru toate varstele, de la crese si gradinite pana la scoli, dar si spatii comerciale, inclusiv Piata Progresul, complet modernizata. De asemenea, strazile largi si bine intretinute asigura conexiuni rapide catre centrul orasului si alte puncte de interes. Pentru momentele de relaxare, locatarii au la dispozitie parcuri precum Tineretului, Carol si Oraselul Copiilor, ideale pentru plimbari si activitati in aer liber. In plus, Mall Sun Plaza, aflat in apropiere, ofera o gama variata de magazine, restaurante si optiuni de divertisment, asigurand acces la toate serviciile necesare pentru un stil de viata activ si confortabil.
Citește mai mult Citește mai puțin
Confort 1 Decomandat Nemobilat Aer condiționat Centrală proprie Încălzire prin pardoseală

Detalii apartament

ID anunț: X53U100GC Copiat! 252840699 Copiat!
Actualizat în: 02 Ianuarie 2026
Suprafață construită: 138.23 mp
Nr. bucătării: 1
Nr. băi: 1
Structură rezistență: Beton
Tip imobil: Bloc de apartamente
Regim înălțime: S+P+3E
Nr. terase: 1

Utilități

Destinație
Birouri Rezidențial
Pereți
Faianță Vopsea lavabilă
Podele
Gresie Parchet
Ușă intrare
Metal
Uși interior
Lemn
Izolații termice
Exterior
Ferestre cu geam termopan
PVC
Contorizare
Apometre Contor căldură Contor gaz
Alte spații utile
Terasă
Facilități imobil
Lift Videointerfon
Utilități
Curent Apă Canalizare Gaze
Internet
Cablu
Amenajare străzi
Iluminat stradal Mijloace de transport în comun Asfaltate
Comision
0%

Disponibilitate proprietate:

03.2025

Puncte de interes

Mijloace transport
bus-station
Statia Muzeul Bacovia, linia 323, N107, 7,25
Stații autobuz aprox. 335 m
tram-station
Sura Mare
Stații tramvai aprox. 448 m
bus-station
Statia Sura Mare, linia 323, N107, 7, 25, 1
Stații autobuz aprox. 471 m
metro-station
Metrorex. Stația Constantin Brâncoveanu (M2)(1988)
Stații metrou aprox. 688 m
Școală
school
Grădinița nr.263, "Ciupercuta"
Școli aprox. 87 m
school
Scoala nr.111
Școli aprox. 126 m
kindergarten
Ursuletul de Plus - Gradinita de vara&afterschool
Gradinițe aprox. 198 m
university
Academie de Studii Postuniversitare - Politie
Universități aprox. 1175 m
Recreere
supermarket
Mega Image
Supermarket aprox. 415 m
park
Playground Livada
Parcuri aprox. 559 m
sports-ground
Teren sportiv
Terenuri sport aprox. 591 m
mall
Cora Sun Plaza
Mall aprox. 1939 m

Detalii despre preț și costuri

Prețul pe piață

Preț cerut: 240.000 €

Preț min. zonă 59.000 €
Preț max. zonă 137.900 €

i

Proprietate cu prețul cerut în afara intervalului mai multe...

Posibile explicații pentru faptul că prețul proprietății este peste cel maxim: imobil nou cu suprafață mare, are dotări și finisaje de lux.
Bine de știut: prețul unei proprietăți este influențat și de alte caracteristici, cum ar fi: vechime, localizare, vecinătăți, suprafață, compartimentare, amenajări, dotări, etc.

Costuri cu achiziția

Fără credit
12.869 RON
Credit ipotecar
15.214 RON
Noua casă
1.620 RON+ taxe notariale

i

Costuri adiționale mai puțin știute la achiziție: taxe notariale, comisioane etc.

Proprietăți recomandate

Detalii de contact

SUD REZIDENTIAL

Sudrezidential

3.89(12 review-uri)

SUD REZIDENTIAL
PRO

Abonează-te la newsletter să fii primul care primește cele mai noi recomandări de proprietăți și sfaturi de la experți.

CONTACT

Creează alertă

Salvează căutarea ca să primești pe email ultimele anunțuri publicate

Apartamente cu 2 camere de vânzare în zona Eroii Revoluției, Sector 4