Locuinta ideala: 3 camere, terasa si curte, zona Eroii Revolutiei

265.000 € + TVA

Eroii Revoluției, București

Nr. cam.:
3
Sup. utilă:
77,7 mp
Etaj:
Parter / 3
An constr.:
2025 (În construcție)
  • • Locație aproximativă

Descriere apartament

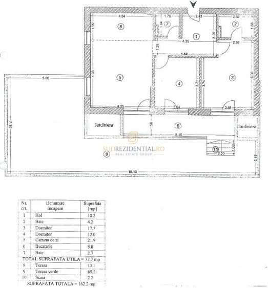
Va propunem spre vanzare un apartament modern si spatios, situat la parterul unui ansamblu rezidential premium din Sector 4, Bucuresti. Cu o suprafata utila generoasa si o curte privata, acest apartament este ideal pentru cei care isi doresc confort, intimitate si acces facil la facilitatile orasului. Detalii despre apartament - Suprafata utila: 77.7 mp - Terasa: 13.1 mp - Curte privata: 69.2 mp Compartimentare: - Camera de zi: 21.9 mp - Bucatarie: 9 mp - Dormitor: 12 mp - Dormitor matrimonial: 17.7 mp + baie proprie: 4.2 mp - Baie: 2.7 mp - Hol: 10.2 mp Apartamentul este prevazut cu finisaje premium, incluzand tamplarie PVC cu geam tripan, incalzire prin pardoseala si centrala termica proprie, oferind un mediu placut si eficient energetic. Imobilul face parte dintr-un ansamblu rezidential modern, situat intr-o zona in plina dezvoltare din Sector 4, Bucuresti. Locatia ofera acces rapid la: - Parcuri si spatii verzi: la cateva minute distanta de zone de relaxare si agrement precum Parcul Carol I si Parcul Tineretului - Centre comerciale: in apropiere de supermarketuri, hipermarketuri si mall-uri pentru shopping rapid - Transport public: statii STB si acces facil catre metrou (statia Eroii Revolutiei) pentru deplasare rapida in oras - Scoli si gradinite: unitati de invatamant in proximitate, ideale pentru familii cu copii - Restaurante si cafenele: diverse optiuni pentru a petrece timpul liber intr-un cadru placut Ansamblul rezidential dispune de acces securizat, locuri de parcare si spatii verzi amenajate, oferind un stil de viata modern si confortabil.
Citește mai mult Citește mai puțin
Confort 1 Nemobilat Aer condiționat Centrală proprie Încălzire prin pardoseală

Detalii apartament

ID anunț: X53U105MC Copiat! 275407614 Copiat!
Actualizat în: 06 Aprilie 2026
Suprafață construită: 88.55 mp
Nr. bucătării: 1
Nr. băi: 2
Structură rezistență: Beton
Tip imobil: Bloc de apartamente
Regim înălțime: S+P+3E
Nr. terase: 1

Utilități

Destinație
Birouri Rezidențial
Pereți
Faianță Vopsea lavabilă
Podele
Gresie Parchet
Ușă intrare
Metal
Uși interior
Lemn
Izolații termice
Exterior
Ferestre cu geam termopan
PVC
Contorizare
Apometre Contor căldură Contor gaz
Alte spații utile
Terasă
Facilități imobil
Lift Videointerfon
Utilități
Curent Apă Canalizare Gaze
Internet
Cablu
Amenajare străzi
Iluminat stradal Mijloace de transport în comun Asfaltate
Comision
standard

Disponibilitate proprietate:

03.2025

Puncte de interes

Mijloace transport
bus-station
Statia Muzeul Bacovia, linia 323, N107, 7,25
Stații autobuz aprox. 134 m
tram-station
Sura Mare
Stații tramvai aprox. 289 m
bus-station
Autobuz 323
Stații autobuz aprox. 314 m
metro-station
Eroii Revolutiei (M2)
Stații metrou aprox. 585 m
Școală
school
Scoala Generala nr. 188
Școli aprox. 376 m
school
Scoala Nr. 188 (en)
Școli aprox. 393 m
kindergarten
Gradinita Alba ca Zapada si Piticii
Gradinițe aprox. 641 m
university
Academie de Studii Postuniversitare - Politie
Universități aprox. 1628 m
Recreere
supermarket
Mega Image
Supermarket aprox. 195 m
sports-ground
Sala de Sport
Terenuri sport aprox. 376 m
public-square
Piata Eroii Revolutiei (en)
Piețe publice aprox. 629 m
park
Playground Livada
Parcuri aprox. 674 m

Detalii despre preț și costuri

Prețul pe piață

Preț cerut: 265.000 €

Preț min. zonă 84.000 €
Preț max. zonă 219.000 €

i

Proprietate cu prețul cerut în afara intervalului mai multe...

Posibile explicații pentru faptul că prețul proprietății este peste cel maxim: imobil nou cu suprafață mare, are dotări și finisaje de lux.
Bine de știut: prețul unei proprietăți este influențat și de alte caracteristici, cum ar fi: vechime, localizare, vecinătăți, suprafață, compartimentare, amenajări, dotări, etc.

Costuri cu achiziția

Fără credit
13.914 RON
Credit ipotecar
16.388 RON
Noua casă
1.775 RON+ taxe notariale

i

Costuri adiționale mai puțin știute la achiziție: taxe notariale, comisioane etc.

Proprietăți similare

Apartament cu 4 camere decomandat, mobilat în Eroii Revoluției
255.000 €
București, Eroii Revoluției
4 camere
92 mp
1990
Apartament cu 3 camere decomandat în Eroii Revoluției
265.000 € + TVA
București, Eroii Revoluției
3 camere
162 mp
Parter / 3
Apartament cu 2 camere decomandat în Eroii Revoluției
240.000 € + TVA
București, Eroii Revoluției
2 camere
56,2 mp
Parter / 3

Detalii de contact

SUD REZIDENTIAL

SudRezidential Excelenta in imobiliare

SUD REZIDENTIAL
PRO

Abonează-te la newsletter să fii primul care primește cele mai noi recomandări de proprietăți și sfaturi de la experți.

CONTACT

Creează alertă

Salvează căutarea ca să primești pe email ultimele anunțuri publicate

Apartamente cu 3 camere de vânzare în zona Eroii Revoluției, Sector 4