2

De Vanzare Apartament 3 Camere de Lux, pe 2 Nivele, Sebastian sect.5

326.900 €

Sebastian, București

Nr. cam.:
3
Sup. utilă:
85,1 mp
Etaj:
11 / 12
An constr.:
2023 (Finalizată)
  • • Locație aproximativă

Descriere apartament

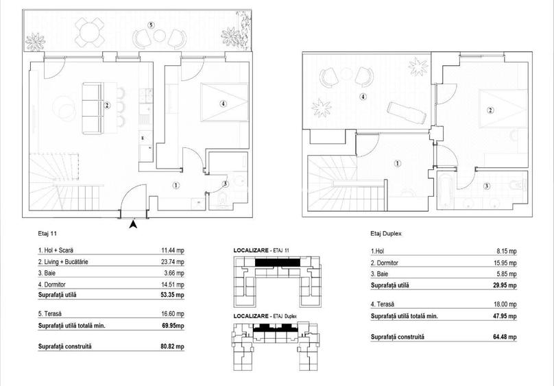
AFY Imobiliare va ofera spre vanzare un apartament de lux in regim duplex, amplasat in Complexul Vulcan Residence. Detalii generale Tip proprietate: Apartament de lux cu 3 camere Complex rezidențial: Vulcan Residence Etaj: 11–12/12+ Etaj Tehnic Regim: duplex An construcție clădire: 2023 An amenajare apartament: 2025 Proprietar: persoană juridică Compartimentare Etaj 11: Living open space cu bucătărie Dormitor cu canapea extensibila Baie cu cabină de duș walk-in Spații multiple de depozitare Terasă Casă a scării către nivelul superior Etaj 12: Dormitor matrimonial Baie proprie cu cadă și două chiuvete Hol amenajat ca birou Terasă Dotări și echipamente Mașină de spălat rufe Mașină de spălat vase Frigider Aragaz Hotă Cuptor electric Cuptor cu microunde Aer condiționat de capacitate mare Televizor Măsuță make-up Toate electrocasnicele sunt noi Clădire și facilități Bloc modern cu 2 lifturi Posibilitate de a achizitiona locuri de parcare subteran/suprateran, la cerere Acte la zi. Comision agenție: 3% Apartamentul poate fi inchiriat si pentru destinatie activitati profesionale, nemobilat, sau mobilat in cadru rezidential, fiind o oportunitate de investitie. Apartament premium, ideal pentru un stil de viață modern, cu spații generoase, terase ample și finisaje de calitate superioară.
Citește mai mult Citește mai puțin
Confort lux Decomandat Acceptă animale de companie Mobilat Lux Aer condiționat Calorifere Centrală imobil Încălzire prin pardoseală 3 Parcări 1 Garaj

Detalii apartament

ID anunț: XE9U103BS Copiat! 275419498 Copiat!
Actualizat în: 19 Mai 2026
Suprafață construită: 147.7 mp
Nr. bucătării: 1
Nr. băi: 2
Structură rezistență: Beton
Tip imobil: Bloc de apartamente
Tip tranzacție: De vânzare prin agent
Regim înălțime: P+12E
Nr. terase: 2
Modalitate de plată: Cash sau Credit

Utilități

Destinație
Birouri Rezidențial
Pereți
Faianță Lambriu Vopsea lavabilă
Podele
Gresie Parchet
Ușă intrare
Metal
Uși interior
Lemn
Izolații termice
Exterior Interior
Ferestre cu geam termopan
Aluminiu
Bucătărie
Mobilată Utilată
Electrocasnice
Aragaz Frigider Hotă Mașină de spălat Mașină spălat vase TV
Diverse
Scară interioară Sistem de alarmă Telecomandă poartă acces auto Telecomandă poartă garaj
Alte spații utile
Debara Terasă
Facilități imobil
Acoperiș Interfon Lift
Utilități
Curent Apă Canalizare CATV Gaze
Internet
Cablu Wireless
Servicii imobil
Pază Supraveghere video
Amenajare străzi
Iluminat stradal Mijloace de transport în comun Asfaltate
Comision
standard

Disponibilitate proprietate:

Imediat

Puncte de interes

Mijloace transport
bus-station
Statie RATB 122, 226, 385
Stații autobuz aprox. 162 m
tram-station
Sebastian
Stații tramvai aprox. 189 m
metro-station
Orizont (M5)
Stații metrou aprox. 1117 m
trolleybus-station
Statia RATB Favorit, linia troleibuz 69,71 si linia autobuz 126
Stații troleibuz aprox. 1649 m
Școală
kindergarten
GRĂDINIȚA DE COPII NR. 33
Gradinițe aprox. 129 m
kindergarten
Gradinita nr. 75
Gradinițe aprox. 168 m
school
Grupul Scolar Industrial Dimitrie Gusti
Școli aprox. 207 m
university
Universitatea Nationala de Aparare "Carol I"
Universități aprox. 1130 m
Recreere
supermarket
Prosper Plaza
Supermarket aprox. 132 m
park
Parculet
Parcuri aprox. 234 m
public-square
Jose Rizal Square (en)
Piețe publice aprox. 621 m
sports-ground
Teren sportiv
Terenuri sport aprox. 862 m

Istoricul prețurilor

Acces la informații premium după autentificare
Login Gratuit

Detalii despre preț și costuri

Prețul pe piață

Preț cerut: 326.900 €

Preț min. zonă
Preț max. zonă

i

Proprietate cu prețul cerut în afara intervalului mai multe...

Posibile explicații pentru faptul că prețul proprietății este peste cel maxim: imobil nou cu suprafață mare, are dotări și finisaje de lux.
Bine de știut: prețul unei proprietăți este influențat și de alte caracteristici, cum ar fi: vechime, localizare, vecinătăți, suprafață, compartimentare, amenajări, dotări, etc.
Acces la informații premium după autentificare
Login Gratuit

Costuri cu achiziția

Fără credit
Credit ipotecar
Noua casă

i

Costuri adiționale mai puțin știute la achiziție: taxe notariale, comisioane etc.

Acces la informații premium după autentificare
Login Gratuit

Proprietăți similare

Apartament cu 4 camere nedecomandat în Ghencea
321.739 €
București, Ghencea
4 camere
91,77 mp
Etaj 11 / 11
Apartament cu 3 camere decomandat în Cotroceni
330.000 €
București, Cotroceni
3 camere
82 mp
Etaj 8
Apartament cu 2 camere decomandat, mobilat în 13 Septembrie
296.000 €
București, 13 Septembrie
2 camere
73,8 mp
Etaj 4 / 4

Detalii de contact

AFY IMOBILIARE

Iulia Gama Manager

4.19(9 review-uri)

AFY IMOBILIARE
PRO

Abonează-te la newsletter să fii primul care primește cele mai noi recomandări de proprietăți și sfaturi de la experți.

CONTACT

Creează alertă

Salvează căutarea ca să primești pe email ultimele anunțuri publicate

Apartamente noi cu 3 camere de vânzare în zona Sebastian, Sector 5