3 camere, decomandat, et 1/4, anvelopat-Drumul Taberei

118.000 €

Drumul Taberei, București

Nr. cam.:
3
Sup. utilă:
61,5 mp
Etaj:
1 / 4
An constr.:
1972 (Finalizată)
  • • Locație aproximativă

Descriere apartament

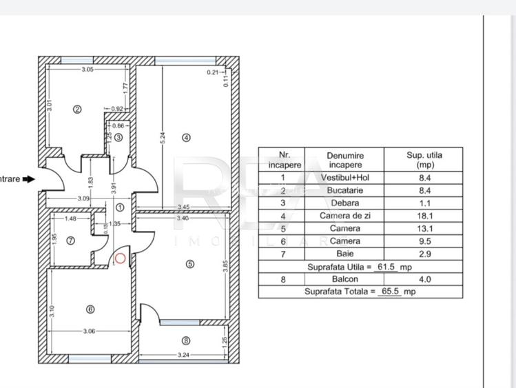
R.E.A Imobiliare va ofera spre vanzare un apartament cu 3 camere, decomandat, situat pe in Drumul Taberei, pe Str. Segarcea. Imobilul se afla intr.un bloc de apartamente construit in anul 1972, anvelopat, fara risc seismic, la etajul 1/4. Este alcatuit din living, doua dormitoare, bucatarie, baie si balcon. Suprafata totala este de 65,5 mp, din care suprafata utila este de 61,5 mp. Apartamentul necesita renovare. Se vinde partial mobilat si utilat. Confortul termic este realizat cu ajutorul retelei edilitare de termoficare, dar si cu ajutorul aparatului de aer conditionat. In imediata apropiere se intalnesc puncte comerciale, bancare, farmaceutice, medicale, educationale si de divertisment. Acces facil la mijloacele de transport in comun, 1 minut pana la statia Stb si metrou Raul Doamnei. Se accepta toate modalitatiile de plata. Informatiile tehnice au caracter orientativ, acestea fiind preluate de la proprietar. Pentru mai multe detalii si vizionari, ne puteti contacta telefonic, specificand codul P9225.
Citește mai mult Citește mai puțin
Confort 1 Decomandat Nemobilat 1 Balcon / Terasă / Logie Aer condiționat Calorifere Termoficare Bine întreținut (Bună)

Detalii apartament

ID anunț: XDKS107U9 Copiat! 271883323 Copiat!
Actualizat în: 16 Martie 2026
Suprafață construită: 74 mp
Nr. bucătării: 1
Nr. băi: 1
Tip imobil: Bloc de apartamente
Regim înălțime: P+4E

Utilități

Destinație
Rezidențial
Pereți
Vopsea lavabilă Faianță
Podele
Parchet Gresie
Ușă intrare
Metal
Uși interior
Lemn
Izolații termice
Bloc izolat termic
Contorizare
Apometre
Facilități imobil
Interfon
Utilități
Curent Apă Canalizare Gaze
Amenajare străzi
Asfaltate Iluminat stradal Mijloace de transport în comun
Comision
standard

Disponibilitate proprietate:

imediat

Puncte de interes

Mijloace transport
bus-station
Statia Valea Oltului, Liniile 368, 385, 268, N122, 668, 105, 122
Stații autobuz aprox. 270 m
metro-station
Râul Doamnei (M5)
Stații metrou aprox. 974 m
tram-station
Statia Bd. Ghencea / Brasov, linia 41
Stații tramvai aprox. 1679 m
trolleybus-station
Depoul de troleibuze Bujoreni
Stații troleibuz aprox. 1920 m
Școală
school
ȘCOALA CU CLASELE I-VIII NR. 144
Școli aprox. 244 m
school
Scoala Generala nr. 144
Școli aprox. 261 m
kindergarten
Gradinita Nr. 218
Gradinițe aprox. 572 m
kindergarten
Gradinita nr.218
Gradinițe aprox. 582 m
Recreere
supermarket
eMAG Supermarket
Supermarket aprox. 211 m
restaurant
Domino's Pizza
Restaurant aprox. 251 m
park
Parc
Parcuri aprox. 711 m
sports-ground
Teren sportiv
Terenuri sport aprox. 854 m

Detalii despre preț și costuri

Prețul pe piață

Preț cerut: 118.000 €

Preț min. zonă 78.000 €
Preț max. zonă 239.900 €

57% dintre proprietățile similare ca zonă și nr. camere au prețul cerut mai mic. mai multe...

Bine de știut: prețul unei proprietăți este influențat și de alte caracteristici, cum ar fi: vechime, localizare, vecinătăți, suprafață, compartimentare, amenajări, dotări, etc. mai puțin...

Costuri cu achiziția

Fără credit
6.954 RON
Credit ipotecar
8.567 RON
Noua casă
741 RON+ taxe notariale

i

Costuri adiționale mai puțin știute la achiziție: taxe notariale, comisioane etc.

Proprietăți recomandate

Detalii de contact

R.E.A. Imobiliare

Veronica Ripa Broker

3.56(3 review-uri)

R.E.A. Imobiliare
PRO

Abonează-te la newsletter să fii primul care primește cele mai noi recomandări de proprietăți și sfaturi de la experți.

CONTACT

Creează alertă

Salvează căutarea ca să primești pe email ultimele anunțuri publicate

Apartamente cu 3 camere de vânzare în zona Drumul Taberei, Sector 6