5

3 camere decomandat Drumul Taberei metrou Râul Doamnei

118.000 €

Drumul Taberei, București

Nr. cam.:
3
Sup. utilă:
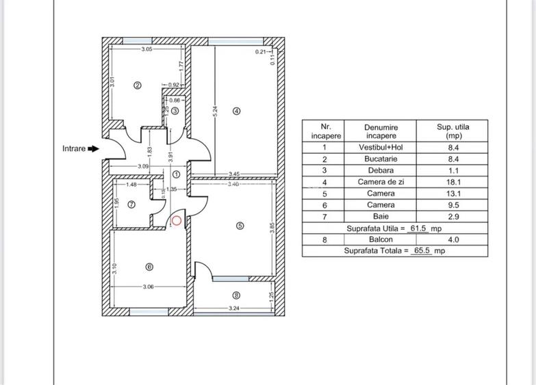
62 mp
Etaj:
1
An constr.:
1972
  • • Locație exactă

Descriere apartament

Se ofera spre vânzare un apartament de 3 camere decomandat situat la etajul 1 din 4 având o suprafață totală de 66,5 mp, an construcție 1972. Apartamentul este mobilat si utilat ca in poze având imbunatariri decente :gresie,faianta,parchet,usa metalică ,aer condiționat ,termopane,bloc anvelopat ,boxa inclusă. Zona liniștită si plină de verdeață fiind la 2-3 minute de stația de metrou Raul Doamnei,avand in apropiere scoli si grădinițe ,fiind la 5-7 minute de Parcul Moghioros ,piață Chilia Veche Si de magazine de tip Mega Image. Toate actele sunt OK,nu exista modificări fata de accepta plata cash, credit ipotecar.
Citește mai mult Citește mai puțin
Decomandat Mobilat Aer condiționat Calorifere Beci Necesită renovare

Detalii apartament

ID anunț: XFPC0006U Copiat! 271838214 Copiat!
Actualizat în: 25 Martie 2026
Tip imobil: Bloc de apartamente
Regim înălțime: P+4E

Utilități

Pereți
Faianță Vopsea lavabilă Vinarom
Podele
Gresie Parchet
Ușă intrare
Metal
Uși interior
Lemn
Izolații termice
Exterior Interior
Ferestre cu geam termopan
PVC
Contorizare
Apometre
Bucătărie
Mobilată Utilată
Alte spații utile
Debara
Utilități
Curent Apă Canalizare Gaze
Internet
Fibră optică Wireless
Servicii imobil
Administrare Supraveghere video
Amenajare străzi
Asfaltate Betonate Iluminat stradal Mijloace de transport în comun

Vicii:

fara VICII

Vecinătăți:

Raul Doamnei , Moghioros

Disponibilitate proprietate:

IMEDIAT

Puncte de interes

Mijloace transport
bus-station
Raul Doamnei
Stații autobuz aprox. 42 m
metro-station
Râul Doamnei (M5)
Stații metrou aprox. 92 m
tram-station
Tricodava
Stații tramvai aprox. 864 m
trolleybus-station
Depoul de troleibuze Bujoreni
Stații troleibuz aprox. 1532 m
Școală
school
Colegiul National "Elena Cuza"
Școli aprox. 180 m
school
Gradinita nr. 230
Școli aprox. 202 m
kindergarten
Gradinita de copii nr.230
Gradinițe aprox. 208 m
kindergarten
Curtea grădiniței (en)
Gradinițe aprox. 218 m
Recreere
park
Loc de joaca
Parcuri aprox. 110 m
supermarket
Mega Image
Supermarket aprox. 202 m
restaurant
Azzurro
Restaurant aprox. 259 m
sports-ground
Teren sportiv
Terenuri sport aprox. 276 m

Detalii despre preț și costuri

Prețul pe piață

Preț cerut: 118.000 €

Preț min. zonă 78.000 €
Preț max. zonă 239.900 €

54% dintre proprietățile similare ca zonă și nr. camere au prețul cerut mai mic. mai multe...

Bine de știut: prețul unei proprietăți este influențat și de alte caracteristici, cum ar fi: vechime, localizare, vecinătăți, suprafață, compartimentare, amenajări, dotări, etc. mai puțin...

Costuri cu achiziția

Fără credit
6.954 RON
Credit ipotecar
8.567 RON
Noua casă
741 RON+ taxe notariale

i

Costuri adiționale mai puțin știute la achiziție: taxe notariale, comisioane etc.

Proprietăți recomandate

Detalii de contact

IMOESSENTIAL SRL

Cristian Alexandru Munteanu

4.33(7 review-uri)

IMOESSENTIAL SRL
PRO

Abonează-te la newsletter să fii primul care primește cele mai noi recomandări de proprietăți și sfaturi de la experți.

CONTACT

Creează alertă

Salvează căutarea ca să primești pe email ultimele anunțuri publicate

Apartamente cu 3 camere de vânzare în zona Drumul Taberei, Sector 6