Apartament 2 camere de vanzare Lujerului

105.000 €

Lujerului, București

Nr. cam.:
2
Sup. utilă:
52 mp
Etaj:
6 / 9
An constr.:
1965
  • • Locație aproximativă

Descriere apartament

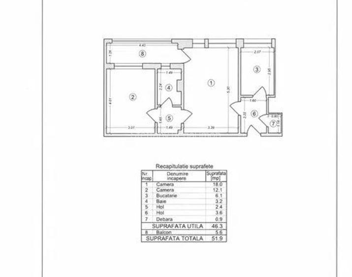
Echipa Steffany Regal Imob va propune spre vanzare un apartament de 2 camere situat în cartierul Militari - zona Lujerului, într-un imobil reabilitat termic, cu costuri reduse la întreținere, curat și liniștit . La 3 minute de mers pe jos de stația de metrou Lujerului, stația tramvaiului 41 și autobuzul 178 (Pasaj Lujerului). Apartamentul are suprafață utilă de 46,3 mp și suprafață totală de 51,9 mp, incluzând un balcon generos de 5,6 mp. Geamurile mari creează o atmosferă deschisă și luminoasă. Compartimentarea este eficientă pentru un stil de viață modern și confortabil. Apartamentul a fost renovat complet in 2025 : instalație electrică schimbată, adaugat circuite in paralel de prize cu împământare și întrerupătoare noi, instalatie sanitara schimbată, obiecte sanitare noi, duș walk-in modern, gresie și faianță de calitate în tot apartamentul, inclusiv pe balcon, apartamentul dispune de aer condiționat. Bucătăria are un design plăcut și se vinde cu mobilier de bucătărie cu plită, cuptor și hotă încorporate. Sunt incluse, de asemenea, în preț, un dressing nou pe holul de intrare, un dressing nou pe holul dintre camere și mobilierul de baie. Finisajele și dotările asigură confort imediat fără investiții suplimentare. Blocul este reabilitat, astfel că utilitățile sunt eficiente, iar costurile la întreținere sunt reduse. Zona Militari/Lujerului oferă acces excelent la mijloace de transport publice; în apropiere se află școli, piața Veteranilor, Carrefour Supernova, Plaza România, parcuri, fiind potrivită atât pentru locuire, cât și pentru investiție (închiriere ușoară, datorită cererii în creștere în zona). • Configurație: 2 camere + bucătărie + baie + holuri + debara; compartimentare practică (conform releveu). Tâmplărie PVC cu geam termoizolant Geamuri mari, apartament foarte luminos renovat complet 2025 Ușă metalică de exterior, solidă În preț sunt incluse: mobilier bucătărie cu plită, cuptor și hotă încorporate; dressing nou pe holul de intrare; dressing nou pe holul dintre camere; mobilier baie.
Citește mai mult Citește mai puțin
Confort 1 Semidecomandat Mobilat 1 Balcon / Terasă / Logie Aer condiționat Calorifere Termoficare

Detalii apartament

ID anunț: XG151007G Copiat! 275228380 Copiat!
Actualizat în: 09 Martie 2026
Nr. bucătării: 1
Nr. băi: 1
Tip imobil: Bloc de apartamente
Regim înălțime: P+9E

Utilități

Ușă intrare
Metal
Uși interior
Celulare
Contorizare
Apometre
Bucătărie
Mobilată Utilată
Electrocasnice
Aragaz Frigider Hotă Mașină de spălat
Facilități imobil
Interfon Lift
Utilități
Curent Apă Canalizare CATV Gaze Telefon
Internet
Cablu
Amenajare străzi
Iluminat stradal Mijloace de transport în comun Asfaltate
Comision
standard

Disponibilitate proprietate:

Imediat

Puncte de interes

Mijloace transport
metro-station
Metrorex. Stația Lujerului (M3)(1983)
Stații metrou aprox. 30 m
bus-station
statia RATB Veteranilor: 61, 62, 136, 236, 336
Stații autobuz aprox. 93 m
trolleybus-station
Statia RATB Lujerului, linia 61, 62
Stații troleibuz aprox. 333 m
tram-station
Statia Bd. Uverturii / Pasajul Lujerului, linia 41
Stații tramvai aprox. 333 m
Școală
school
Sala de sport
Școli aprox. 121 m
school
Liceul Economic nr. 5 ” Costin C. Kiritescu ”
Școli aprox. 126 m
kindergarten
Gradinita nr.250
Gradinițe aprox. 434 m
university
Facultatea de Inginerie Electrica
Universități aprox. 1130 m
Recreere
park
Parc
Parcuri aprox. 142 m
restaurant
Trattoria di Viale
Restaurant aprox. 164 m
supermarket
Mega Image
Supermarket aprox. 175 m
sports-ground
Teren sportiv
Terenuri sport aprox. 808 m

Detalii despre preț și costuri

Prețul pe piață

Preț cerut: 105.000 €

Preț min. zonă
Preț max. zonă

56% dintre proprietățile similare ca zonă și nr. camere au prețul cerut mai mare. mai multe...

Bine de știut: prețul unei proprietăți este influențat și de alte caracteristici, cum ar fi: vechime, localizare, vecinătăți, suprafață, compartimentare, amenajări, dotări, etc. mai puțin...

Insight premium disponibil după login

Costuri cu achiziția

Fără credit
Credit ipotecar
Noua casă

i

Costuri adiționale mai puțin știute la achiziție: taxe notariale, comisioane etc.

Insight premium disponibil după login

Proprietăți similare

Apartament cu 2 camere semidecomandat, mobilat în Lujerului
105.000 €
București, Lujerului
2 camere
46,3 mp
Etaj 6 / 9
Apartament cu 2 camere semidecomandat, mobilat în Lujerului
105.000 €
București, Lujerului
2 camere
46,3 mp
Etaj 6
Apartament cu 2 camere decomandat, mobilat în Lujerului
112.990 €
București, Lujerului
2 camere
44 mp
Etaj 9 / 10

Detalii de contact

Steffany Regal Imob

Nae Ana Maria Manager

Steffany Regal Imob
PRO

Abonează-te la newsletter să fii primul care primește cele mai noi recomandări de proprietăți și sfaturi de la experți.

CONTACT

Creează alertă

Salvează căutarea ca să primești pe email ultimele anunțuri publicate

Apartamente cu 2 camere de vânzare în zona Lujerului, Sector 6