Apartament 2 Camere | Lujerului | Balcon | Renovat Recent | Proximitate Metrou

105.000 €

Lujerului, București

Nr. cam.:
2
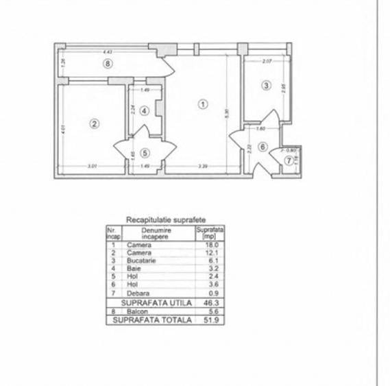
Sup. utilă:
46,3 mp
Etaj:
6 / 9
An constr.:
1968 (Finalizată)
  • • Locație aproximativă

Descriere apartament

ID ANUNT: P248184 ART CONSULT IMOB propune spre vanzare un apartament de 2 camere, situat în zona Lujerului, cu acces facil către mijloace de transport. 🏡 Caracteristici principale: Suprafață utilă: 46 mp Suprafată Construită: 51 mp Anul constructiei: 1968 Compartimentare: semidecomandat Bai: 1 Etaj: 6/9 ✨ Apartamentul este pregătit pentru mutare, fiind o alegere ideală atât pentru locuintă proprie, cât și pentru investiție. 📞 Pentru detalii suplimentare și vizionări, vă stăm la dispoziție. Comisionul perceput de ART CONSULT IMOB in cazul unui succes este de 3% din valoarea pretului de vanzare. Agent: Neagu Robert
Citește mai mult Citește mai puțin
Confort 1 Semidecomandat Parțial mobilat 1 Balcon / Terasă / Logie Aer condiționat Calorifere Termoficare Bine întreținut (Bună)

Detalii apartament

ID anunț: XEKV100R7 Copiat! 275228988 Copiat!
Actualizat în: 24 Aprilie 2026
Suprafață construită: 51.9 mp
Nr. bucătării: 1
Nr. băi: 1
Structură rezistență: Beton
Tip imobil: Bloc de apartamente
Regim înălțime: P+9E

Utilități

Pereți
Vopsea lavabilă Faianță
Podele
Parchet Gresie
Ușă intrare
Metal
Uși interior
Celulare
Ferestre cu geam termopan
PVC
Contorizare
Apometre Contor căldură
Bucătărie
Mobilată Utilată
Facilități imobil
Interfon Lift
Utilități
Curent Apă Canalizare
Internet
Fibră optică
Amenajare străzi
Asfaltate Iluminat stradal Mijloace de transport în comun
Comision
3%

Puncte de interes

Mijloace transport
bus-station
Statia Teatrul Masca, linia 178, 106
Stații autobuz aprox. 17 m
tram-station
Statia Bd. Uverturii / Pasajul Lujerului, linia 41
Stații tramvai aprox. 384 m
metro-station
Metrorex. Stația Lujerului (M3)(1983)
Stații metrou aprox. 429 m
trolleybus-station
Statia RATB Lujerului, linia 61, 62
Stații troleibuz aprox. 624 m
Școală
kindergarten
Gradinita nr.250
Gradinițe aprox. 49 m
kindergarten
Gradinita 250
Gradinițe aprox. 49 m
school
Scoala Nr. 156 Sf. Mare Mucenic Gheorghe
Școli aprox. 139 m
university
Colegiu Penticostal
Universități aprox. 1185 m
Recreere
supermarket
Mega Image
Supermarket aprox. 237 m
restaurant
Trenta Pizza
Restaurant aprox. 268 m
park
Parc
Parcuri aprox. 549 m
sports-ground
Teren sportiv
Terenuri sport aprox. 1024 m

Detalii despre preț și costuri

Prețul pe piață

Preț cerut: 105.000 €

Preț min. zonă
Preț max. zonă

60% dintre proprietățile similare ca zonă și nr. camere au prețul cerut mai mic. mai multe...

Bine de știut: prețul unei proprietăți este influențat și de alte caracteristici, cum ar fi: vechime, localizare, vecinătăți, suprafață, compartimentare, amenajări, dotări, etc. mai puțin...

Insight premium disponibil după login

Costuri cu achiziția

Fără credit
Credit ipotecar
Noua casă

i

Costuri adiționale mai puțin știute la achiziție: taxe notariale, comisioane etc.

Insight premium disponibil după login

Proprietăți similare

Apartament cu 2 camere decomandat în Lujerului
109.900 €
București, Lujerului
2 camere
49 mp
Etaj 3
Apartament cu 2 camere semidecomandat, mobilat în Lujerului
110.000 €
București, Lujerului
2 camere
47 mp
Etaj 6 / 9
Apartament cu 2 camere semidecomandat în Lujerului
113.000 €
București, Lujerului
2 camere
53 mp
Etaj 3 / 8

Detalii de contact

ART CONSULT IMOB

Robert Neagu Consultant Imobiliar

3.78(3 review-uri)

ART CONSULT IMOB
PRO

Abonează-te la newsletter să fii primul care primește cele mai noi recomandări de proprietăți și sfaturi de la experți.

CONTACT

Creează alertă

Salvează căutarea ca să primești pe email ultimele anunțuri publicate

Apartamente cu 2 camere de vânzare în zona Lujerului, Sector 6