6

Pret 59000 Euro 2 camere Metrou piata Gorjului. Comision 0

59.000 €

Militari, București

Nr. cam.:
2
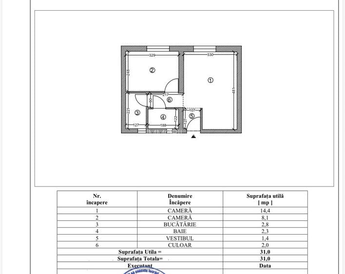
Sup. utilă:
31 mp
Etaj:
4 / 4
An constr.:
1964 (Finalizată)
  • • Comision 0%
  • • Locație exactă
  • • Proprietate nelocuită

Descriere apartament

Comision 0, costuri mici de intretinere. Militari - aproape de Metrou si piata Gorjului ,se vinde un Apartament de 2 camere,spatios, luminos, bine compartimentat, cu o suprafata de 31 mp , etaj 4 din 4, bloc din anul 1964, fara risc seismic si fara imbunatatiri, orientare cardinala Vest, vedere spate , liniste. Se poate amenaja simplu, cu bani putini si mai frumos decat in residence Militari . Blocul este stradal, pe strada Valea Lunga vis a vis de magazinul Profi , farmacia Dr Max.
Citește mai mult Citește mai puțin
Confort 1 Decomandat Aer condiționat Calorifere Termoficare Necesită renovare

Detalii apartament

ID anunț: X06G000ID Copiat! 274704771 Copiat!
Actualizat în: 25 Martie 2026
Nr. bucătării: 1
Nr. băi: 1
Structură rezistență: Beton
Tip imobil: Bloc de apartamente
Regim înălțime: P+4E

Utilități

Destinație
Rezidențial
Podele
Linoleum
Ușă intrare
Pal
Uși interior
Panel
Utilități
Gaze Canalizare Curent Apă
Servicii imobil
Administrare
Amenajare străzi
Asfaltate Mijloace de transport în comun Iluminat stradal
Comision
0%

Certificat energetic:

Clasa energetică: D

Puncte de interes

Mijloace transport
bus-station
Statia Valea Lunga, linia 137, 236, 336, 136, N115, 138,61,62
Stații autobuz aprox. 41 m
trolleybus-station
statia Piața Gorjului: 61, 62
Stații troleibuz aprox. 440 m
metro-station
Metrorex. Stația Gorjului (M3)(1994/1998)
Stații metrou aprox. 458 m
tram-station
Frigocom
Stații tramvai aprox. 842 m
Școală
school
Scoala nr.157 Ion Dumitriu
Școli aprox. 264 m
school
Gradinita Blue Fairy
Școli aprox. 270 m
kindergarten
Gradinita de copii nr 195 "Prichindel"
Gradinițe aprox. 291 m
university
Colegiu Penticostal
Universități aprox. 1292 m
Recreere
park
Parc
Parcuri aprox. 230 m
restaurant
Shaorma Gorjului
Restaurant aprox. 241 m
supermarket
Carrefour Market - Piata Gorjului
Supermarket aprox. 301 m
sports-ground
Baza Sportiva Givova
Terenuri sport aprox. 425 m

Detalii despre preț și costuri

Prețul pe piață

Preț cerut: 59.000 €

Preț min. zonă 56.998 €
Preț max. zonă 190.400 €

62% dintre proprietățile similare ca zonă și nr. camere au prețul cerut mai mare. mai multe...

Bine de știut: prețul unei proprietăți este influențat și de alte caracteristici, cum ar fi: vechime, localizare, vecinătăți, suprafață, compartimentare, amenajări, dotări, etc. mai puțin...

Costuri cu achiziția

Fără credit
4.182 RON
Credit ipotecar
5.403 RON
Noua casă
441 RON+ taxe notariale

i

Costuri adiționale mai puțin știute la achiziție: taxe notariale, comisioane etc.

Proprietăți recomandate

Detalii de contact

IMMOBIL 4U

Anna

4.83(6 review-uri)

IMMOBIL 4U

Abonează-te la newsletter să fii primul care primește cele mai noi recomandări de proprietăți și sfaturi de la experți.

CONTACT

Creează alertă

Salvează căutarea ca să primești pe email ultimele anunțuri publicate

Apartamente cu 2 camere de vânzare în zona Militari, Sector 6