Apartament cu 2 camere, etaj 1 - SELIMBAR

120.000 €

Șelimbăr, Județul Sibiu

Nr. cam.:
2
Sup. utilă:
54 mp
Etaj:
1 / 2
An constr.:
2025 (Finalizată)
  • • Locație aproximativă
  • • Vizionare prin apel video

Descriere apartament

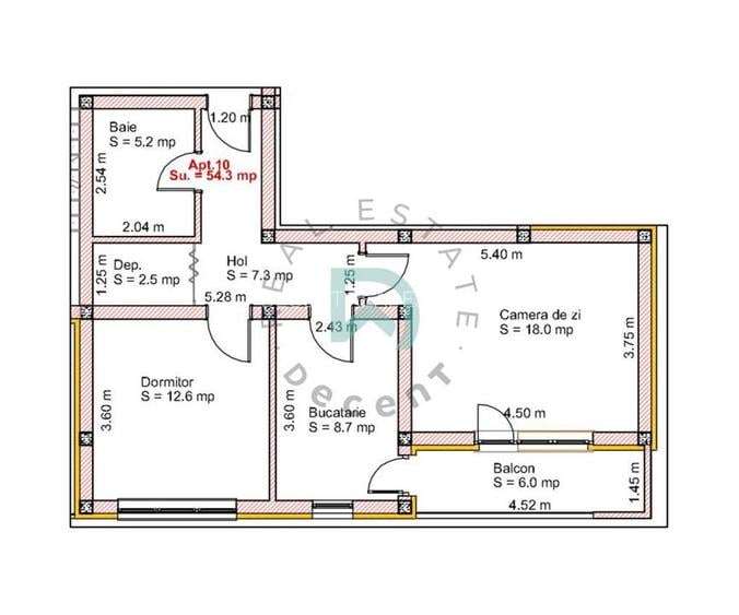
Apartament cu 2 camere în bloc nou – Etaj 1, bloc nou – Șelimbăr, zona Pictor Brana | 54,3 mp utili Îți dorești o locuință modernă într-o zonă liniștită, dar aproape de oraș? Acest apartament cu 2 camere din Șelimbăr îți oferă echilibrul perfect între confort, funcționalitate și acces rapid către Sibiu. Decent Real Estate Sibiu vă propune spre vânzare un apartament cu 2 camere situat la etajul 1 al unui bloc nou din Șelimbăr, în zona Pictor Brana, într-un imobil modern cu regim de înălțime P+2E și două scări. Locuința are o suprafață utilă de 54,3 mp și dispune de balcon, spațiul ideal pentru relaxare, cafeaua de dimineață sau un colț verde personal. Compartimentare: - camera de zi cu acces pe balcon - dormitor luminos - bucătărie separată cu acces pe balcon - baie - hol - balcon Apartamentul este intabulat și se predă la stadiul de alb, oferindu-vă libertatea de a-l amenaja exact așa cum vă doriți. Pentru cei care își doresc să se mute rapid, există și posibilitatea predării la cheie. Preț: - 120.000 €uro Avantaje: - bloc nou, construcție modernă - etaj – mai multă lumină naturală și intimitate - balcon pentru relaxare - compartimentare practică - zonă în plină dezvoltare, aproape de Sibiu - ideală atât pentru locuit, cât și pentru investiție Zona Pictor Brana din Șelimbăr este una dintre cele mai căutate zone rezidențiale din apropierea Sibiului, oferind acces rapid către oraș, centre comerciale, școli și numeroase facilități urbane. Dacă îți dorești o locuință modernă într-o zonă în plină dezvoltare, te invităm să programezi o vizionare și să descoperi avantajele acestei proprietăți. Pentru mai multe informații sau programarea unei vizionări, contactează echipa Decent Real Estate Sibiu. ! Imagini cu titlu de prezentare !
Citește mai mult Citește mai puțin
Confort 1 Decomandat 1 Balcon / Terasă / Logie Centrală proprie 1 Parcare

Detalii apartament

ID anunț: XGB60000O Copiat! 275440227 Copiat!
Actualizat în: 16 Aprilie 2026
Suprafață utilă totală: 54 mp
Suprafață construită: 60 mp
Nr. bucătării: 1
Nr. băi: 1
Structură rezistență: Cărămidă
Tip imobil: Bloc de apartamente
Regim înălțime: P+2E

Utilități

Destinație
Rezidențial
Ușă intrare
Metal
Ferestre cu geam termopan
PVC
Facilități imobil
Interfon
Utilități
Apă Curent Gaze Canalizare CATV
Comision
2%

Puncte de interes

Mijloace transport
bus-station
Sibiu-Triaj (Sud)
Stații autobuz aprox. 512 m
bus-station
Piata V. Aaron 2
Stații autobuz aprox. 685 m
bus-station
Piata V. Aaron 1
Stații autobuz aprox. 688 m
bus-station
Blocuri Indepententa 2
Stații autobuz aprox. 704 m
Școală
school
Scoala Generala Nr. 24
Școli aprox. 799 m
kindergarten
Gradinita Nr. 14
Gradinițe aprox. 838 m
school
Liceul Energetic
Școli aprox. 1046 m
kindergarten
Gradinita Kristine
Gradinițe aprox. 1863 m
Recreere
park
Parc
Parcuri aprox. 567 m
supermarket
Profi Vasile Aaron
Supermarket aprox. 707 m
sports-ground
Teren sportiv
Terenuri sport aprox. 718 m
bar
Narcisa
Bar aprox. 797 m

Detalii despre preț și costuri

Prețul pe piață

Preț cerut: 120.000 €

Preț min. zonă
Preț max. zonă

81% dintre proprietățile similare ca zonă și nr. camere au prețul cerut mai mic. mai multe...

Bine de știut: prețul unei proprietăți este influențat și de alte caracteristici, cum ar fi: vechime, localizare, vecinătăți, suprafață, compartimentare, amenajări, dotări, etc. mai puțin...

Insight premium disponibil după login

Costuri cu achiziția

Fără credit
Credit ipotecar
Noua casă

i

Costuri adiționale mai puțin știute la achiziție: taxe notariale, comisioane etc.

Insight premium disponibil după login

Proprietăți similare

Apartament cu 3 camere semidecomandat, mobilat în Șelimbăr
130.000 €
Județul Sibiu, Șelimbăr
3 camere
63 mp
Etaj 2
Apartament cu 2 camere decomandat în Șelimbăr
125.000 €
Județul Sibiu, Șelimbăr
2 camere
55 mp
Etaj 2
Apartament cu 3 camere semidecomandat în Șelimbăr
115.700 € + TVA
Județul Sibiu, Șelimbăr
3 camere
71,93 mp
Etaj 7

Detalii de contact

DECENT REAL ESTATE

Bianca Grip Partener Manager

DECENT REAL ESTATE
PRO

Abonează-te la newsletter să fii primul care primește cele mai noi recomandări de proprietăți și sfaturi de la experți.

CONTACT

Creează alertă

Salvează căutarea ca să primești pe email ultimele anunțuri publicate

Apartamente noi cu 2 camere de vânzare în Șelimbăr, Județul Sibiu