Apartament 2 camere 42 mp mobilat, lift zona Lazaret Sibiu

77.900 €

Lazaret, Sibiu

Nr. cam.:
2
Sup. utilă:
42 mp
Etaj:
5 / 5
An constr.:
2025 (Finalizată)
  • • Locație aproximativă

Descriere apartament

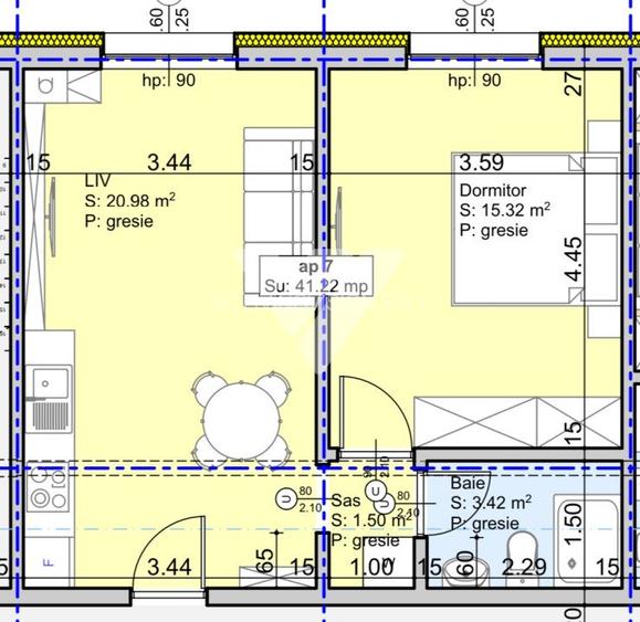
Apartament 2 camere, tip mansarda din constructie, bloc nou reabilitat complet, mobilat si utilat – zona Lazaret, Sibiu Va propunem spre vanzare un apartament cu 2 camere, tip mansarda, situat la etajul 5 din 5 al unui imobil amplasat in zona Lazaret din Sibiu. Locuinta are o suprafata utila de 42 mp si este compartimentata eficient, fiind compusa din: living cu bucatarie tip open-space, hol, dormitor si baie. Apartamentul se preda finisat la cheie, complet mobilat si utilat, exact ca in poze. Pretul include materialele, manopera, mobilierul si electrocasnicele. Printre dotarile standard se regasesc: centrala termica proprie cu calorifere, ferestre cu geam termopan, gresie, faianta, parchet, usi de interior, obiecte sanitare, prize si intrerupatoare. Imobilul este izolat termic, iar apartamentul beneficiaza de o pozitie insorita, asigurand costuri reduse de intretinere. Proprietatea reprezinta o optiune foarte buna atat pentru locuinta proprie, cat si pentru investitie. Zona Lazaret ofera acces rapid catre mijloace de transport in comun, magazine si se afla la aproximativ 10 minute de Centrul Sibiului. Se accepta achizitia inclusiv prin credit bancar. Pentru mai multe detalii si programarea unei vizionari, va rugam sa ne contactati la numarul de telefon afisat.
Citește mai mult Citește mai puțin
Confort 1 Decomandat Aer condiționat Calorifere Centrală proprie

Detalii apartament

ID anunț: XBHL10K8U Copiat! 274683528 Copiat!
Actualizat în: 04 Martie 2026
Suprafață construită: 50 mp
Nr. bucătării: 1
Nr. băi: 1
Structură rezistență: Cărămidă
Tip imobil: Bloc de apartamente
Regim înălțime: P+5E

Utilități

Destinație
Rezidențial
Pereți
Vopsea lavabilă Faianță
Podele
Parchet Gresie
Ușă intrare
Metal
Uși interior
Lemn
Izolații termice
Bloc izolat termic
Contorizare
Apometre Contor căldură
Bucătărie
Mobilată Utilată
Electrocasnice
Aragaz Hotă
Facilități imobil
Interfon Lift Acoperiș
Utilități
Curent Apă Canalizare Gaze
Amenajare străzi
Asfaltate Iluminat stradal Mijloace de transport în comun
Comision
standard

Disponibilitate proprietate:

imediat

Puncte de interes

Mijloace transport
bus-station
Ceferistilor 1
Stații autobuz aprox. 318 m
bus-station
Viaduct Vasile Aaron 2
Stații autobuz aprox. 334 m
bus-station
Ceferistilor 2
Stații autobuz aprox. 341 m
bus-station
Viaduct Vasile Aaron 1
Stații autobuz aprox. 344 m
Școală
kindergarten
Gradinita Nr. 14
Gradinițe aprox. 468 m
school
Scoala Generala Nr. 24
Școli aprox. 582 m
kindergarten
Gradinita cu program prelungit Gradina Mariei
Gradinițe aprox. 965 m
university
Facultatea de Geografia Turismului
Universități aprox. 1135 m
Recreere
sports-ground
Teren sportiv
Terenuri sport aprox. 546 m
supermarket
Profi Vasile Aaron
Supermarket aprox. 552 m
park
Parc Vasile Aaron
Parcuri aprox. 600 m
restaurant
Sonne
Restaurant aprox. 702 m

Detalii despre preț și costuri

Prețul pe piață

Preț cerut: 77.900 €

Preț min. zonă 60.000 €
Preț max. zonă 135.000 €

60% dintre proprietățile similare ca zonă și nr. camere au prețul cerut mai mare. mai multe...

Bine de știut: prețul unei proprietăți este influențat și de alte caracteristici, cum ar fi: vechime, localizare, vecinătăți, suprafață, compartimentare, amenajări, dotări, etc. mai puțin...

Costuri cu achiziția

Fără credit
5.069 RON
Credit ipotecar
6.439 RON
Noua casă
537 RON+ taxe notariale

i

Costuri adiționale mai puțin știute la achiziție: taxe notariale, comisioane etc.

Proprietăți recomandate

Detalii de contact

SC  LIVINGVISION S.R.L

Emilia Teodorescu Team Leader

SC LIVINGVISION S.R.L
PRO

Abonează-te la newsletter să fii primul care primește cele mai noi recomandări de proprietăți și sfaturi de la experți.

CONTACT

Creează alertă

Salvează căutarea ca să primești pe email ultimele anunțuri publicate

Apartamente noi cu 2 camere de vânzare în zona Lazaret, Sibiu