APARTAMENT 3 CAMERE , PIATA RAHOVEI

105.000 €

Sud, Sibiu

Nr. cam.:
3
Sup. utilă:
60 mp
Etaj:
Parter / 4
An constr.:
1980 (Finalizată)
  • • Locație aproximativă

Descriere apartament

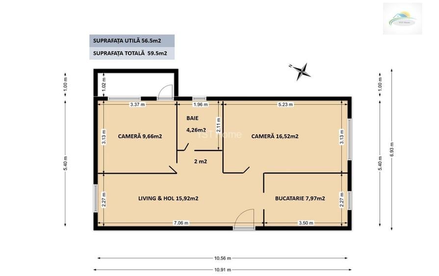
Apartament decomandat cu 3 camere, situat in zona Piata Rahovei din Sibiu, cu o suprafața utila de 60 mp, amplasat la parterul unui bloc cu 4 etaje. Locuinta beneficiaza de izolatie atat la interior, cat si la exterior, oferind un confort termic sporit pe tot parcursul anului. De asemenea, apartamentul dispune de pivnita proprie, ideala pentru depozitare suplimentara. Configuratia este una functionala si moderna: doua dormitoare, hol, living cu bucatarie openspace, baie cu geam pentru ventilatie naturala si un balcon de 4 mp. Compartimentarea decomandata asigura intimitate si un flux optim intre incaperi. Dispune de centrala proprie. Apartamentul necesita renovare, dar acest aspect poate reprezenta un avantaj important pentru viitorul proprietar, care are astfel posibilitatea de a-l amenaja complet dupa propriile gusturi si nevoi. Zona Piata Rahovei este apreciata pentru accesul facil la magazine, scoli, transport public si alte puncte de interes, fiind o alegere excelenta pentru familii, investitori sau persoane care cauta o locuinta practica si bine pozitionata.
Citește mai mult Citește mai puțin
Decomandat Parțial mobilat 1 Balcon / Terasă / Logie Necesită renovare

Detalii apartament

ID anunț: XGHI00003 Copiat! 275416104 Copiat!
Actualizat în: 10 Aprilie 2026
Suprafață construită: 74 mp
Nr. bucătării: 1
Nr. băi: 1
Structură rezistență: Cărămidă
Tip imobil: Bloc de apartamente
Regim înălțime: S+P+4E

Utilități

Destinație
Rezidențial
Pereți
Var
Podele
Parchet
Ușă intrare
Metal
Uși interior
Lemn
Izolații termice
Exterior Interior
Ferestre cu geam termopan
Lemn
Contorizare
Apometre Contor căldură Contor gaz
Bucătărie
Parțial utilată
Electrocasnice
Aragaz
Alte spații utile
Debara
Facilități imobil
Acoperiș
Utilități
Curent Apă Canalizare CATV Gaze Telefon
Internet
Cablu
Amenajare străzi
Iluminat stradal Mijloace de transport în comun Asfaltate
Comision
standard

Disponibilitate proprietate:

Imediat

Puncte de interes

Mijloace transport
bus-station
Piata Rahova 2
Stații autobuz aprox. 99 m
bus-station
Piata Rahova 3
Stații autobuz aprox. 228 m
bus-station
Piata Rahova 1
Stații autobuz aprox. 259 m
bus-station
Cedonia
Stații autobuz aprox. 388 m
Școală
school
Scoala generala nr. 21
Școli aprox. 296 m
school
Scoala Generala Nr. 9
Școli aprox. 466 m
kindergarten
Gradinita Nr. 42
Gradinițe aprox. 771 m
university
Facultatea de Stiinte Agroalimentare
Universități aprox. 1029 m
Recreere
supermarket
Lidl
Supermarket aprox. 134 m
sports-ground
Teren sportiv
Terenuri sport aprox. 270 m
restaurant
Korona
Restaurant aprox. 489 m
park
Parc
Parcuri aprox. 754 m

Detalii despre preț și costuri

Prețul pe piață

Preț cerut: 105.000 €

Preț min. zonă
Preț max. zonă

59% dintre proprietățile similare ca zonă și nr. camere au prețul cerut mai mare. mai multe...

Bine de știut: prețul unei proprietăți este influențat și de alte caracteristici, cum ar fi: vechime, localizare, vecinătăți, suprafață, compartimentare, amenajări, dotări, etc. mai puțin...

Insight premium disponibil după login

Costuri cu achiziția

Fără credit
Credit ipotecar
Noua casă

i

Costuri adiționale mai puțin știute la achiziție: taxe notariale, comisioane etc.

Insight premium disponibil după login

Proprietăți similare

Apartament cu 2 camere decomandat în Sud
101.950 €
Sibiu, Sud
2 camere
49 mp
Etaj 5 / 10
Apartament cu 2 camere decomandat, mobilat în Terezian
99.000 €
Sibiu, Terezian
2 camere
47 mp
Etaj 4
Apartament cu 2 camere decomandat în Hipodrom 1
105.000 €
Sibiu, Hipodrom 1
2 camere
58 mp
Etaj 2

Detalii de contact

YST Home

AURA TATU Consultant imobiliar

YST Home
PRO

Abonează-te la newsletter să fii primul care primește cele mai noi recomandări de proprietăți și sfaturi de la experți.

CONTACT

Creează alertă

Salvează căutarea ca să primești pe email ultimele anunțuri publicate

Apartamente cu 3 camere de vânzare în zona Sud, Sibiu