3

Penthouse 2 camere, 2 terase de 40 mp, lift, incalz pardoseala, baie cu geam

125.500 €

Tineretului, Sibiu

Nr. cam.:
2
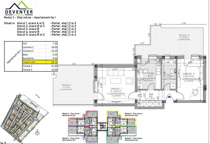
Sup. utilă:
54 mp
Etaj:
4 / 4
An constr.:
2025
  • • Comision 0%
  • • Locație exactă

Descriere apartament

Comision 0. Apartament decomandat NOU in bloc de caramida cu structura din fier-beton, izolat cu polistiren de 15 cm, disponibil la etaj 4 in bloc cu lift. Este pozitionat in continuarea cartierului deja existent - Deventer 1 din mun. Sibiu. Accesul in ansamblu se poate face atat din str. Deventer cat si din str. Tractorului. Apartamentul se preda la stadiul "la cheie" cu parchet laminat, 2 straturi de vopsea lavabila de inalta calitate, prize și intrerupatoare Schneider, termopan Salamander tehnologie "stream-line" si feronierie Rotto, tamplarie PVC din aluminiu cu 6 camere si 3 foi de sticla, rulouri tip jaluzele din PVC cu spuma poliuretana ce asigura o bariera termica si fonica dinspre exterior, usi de interior din MDF, centrala termica BOSCH prin condensatie și un loc de parcare cu drept exclusiv de folosinta. Apartamentul este complet decomandat cu sistem incalzire prin pardoseala, cu termostat inclus in fiecare camera si se preda imediat. Se ofera garantie.
Citește mai mult Citește mai puțin
Confort 1 Decomandat 2 Balcoane / Terase / Logii Încălzire prin pardoseală 1 Parcare

Detalii apartament

ID anunț: XFRO0000A Copiat! 270678026 Copiat!
Actualizat în: 16 Aprilie 2026
Nr. bucătării: 1
Nr. băi: 1
Structură rezistență: Cărămidă
Tip imobil: Bloc de apartamente
Regim înălțime: P+4E

Utilități

Jaluzele
Orizontale
Pereți
Vopsea lavabilă
Podele
Parchet
Rulouri/Obloane
PVC
Ușă intrare
Metal
Izolații termice
Exterior
Ferestre cu geam termopan
PVC
Utilități
Gaze Curent Canalizare Apă
Internet
Cablu
Amenajare străzi
Betonate
Comision
0%

Certificat energetic:

Clasa energetică: B

Puncte de interes

Mijloace transport
bus-station
Lisabona
Stații autobuz aprox. 147 m
bus-station
Lisabona
Stații autobuz aprox. 155 m
bus-station
Klagenfurt
Stații autobuz aprox. 486 m
bus-station
Landshut
Stații autobuz aprox. 503 m
Școală
school
Scoala Generala Nr. 23
Școli aprox. 638 m
school
Scoala Generala Nr. 18
Școli aprox. 1524 m
school
Scoala cu Clasele I - VIII NR. 12 Sibiu
Școli aprox. 1555 m
kindergarten
Gradinita Nr. 19
Gradinițe aprox. 1563 m
Recreere
park
Parc
Parcuri aprox. 1058 m
supermarket
PLUS Terezian
Supermarket aprox. 1518 m
restaurant
Pasha Kebab
Restaurant aprox. 1570 m
bar
Bar test
Bar aprox. 1740 m

Detalii despre preț și costuri

Prețul pe piață

Preț cerut: 125.500 €

Preț min. zonă
Preț max. zonă

84% dintre proprietățile similare ca zonă și nr. camere au prețul cerut mai mic. mai multe...

Bine de știut: prețul unei proprietăți este influențat și de alte caracteristici, cum ar fi: vechime, localizare, vecinătăți, suprafață, compartimentare, amenajări, dotări, etc. mai puțin...

Insight premium disponibil după login

Costuri cu achiziția

Fără credit
Credit ipotecar
Noua casă

i

Costuri adiționale mai puțin știute la achiziție: taxe notariale, comisioane etc.

Insight premium disponibil după login

Deventer Residence

Deventer Residence

Deventer Residence II este noul nostru proiect din zona de Nord-Vest a Sibiului care oferă apartamente moderne și dinamice. Ansamblul rezidențial este compus din 16 imobile de locuințe care vor genera la finalizare peste 450 de apartamente cu 2 și 3 camere.

Vezi detalii ansamblu

Proprietăți recomandate

Detalii de contact

Deventer Residence

Alex Voicu agent vanzari

Deventer Residence

Abonează-te la newsletter să fii primul care primește cele mai noi recomandări de proprietăți și sfaturi de la experți.

CONTACT

Creează alertă

Salvează căutarea ca să primești pe email ultimele anunțuri publicate

Apartamente noi cu 2 camere de vânzare în zona Tineretului, Sibiu