24

Apartament 3 cam decomandat, 2 bai, 2 balcoane, Cămară, incalz pardoseala

128.500 €

Tineretului, Sibiu

Nr. cam.:
3
Sup. utilă:
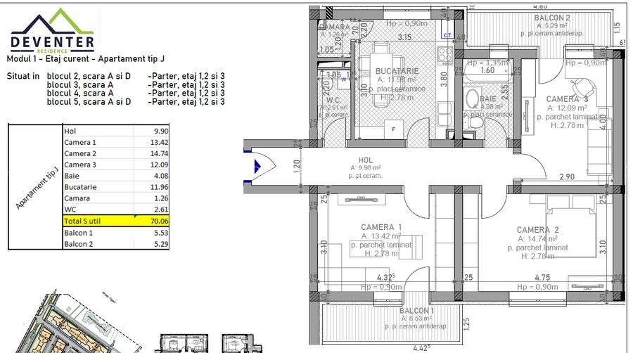
70 mp
Etaj:
Parter / 4
An constr.:
2025 (În construcție)
  • • Comision 0%
  • • Locație exactă

Descriere apartament

Comision 0. Apartament decomandat NOU in bloc de caramida (pereti exteriori 30 cm) cu structura din fier-beton, izolat cu polistiren de 15 cm. Este pozitionat in continuarea cartierului deja existent - Deventer 1 din mun. Sibiu. Accesul in ansamblu se poate face atat din str. Deventer cat si din str. Tractorului. Apartamentul este disponibil la Parter in bloc cu lift, si se preda la stadiul "la cheie" cu parchet laminat de trafic intens de 10mm din import Italia, 2 straturi de vopsea lavabila de inalta calitate, prize și intrerupatoare Schneider, termopan Salamander tehnologie "stream-line" si feronerie Rotto, tamplarie PVC din aluminiu cu 6 camere si 3 foi de sticla, rulouri tip jaluzele din PVC cu spuma poliuretana ce asigura o bariera termica si fonica dinspre exterior, usi de interior din MDF, iar la bucatarie usa de sticla de calitate superioara, centrala termica BOSCH prin condensatie și un loc de parcare cu drept exclusiv de folosinta. Apartamentul este complet decomandat cu sistem incalzire prin pardoseala, cu termostat inclus in fiecare camera, bucatarie separata cu camara, 2 bai, 2 balcoane si se preda spre folosinta in Oct 2026. Se ofera garantie.
Citește mai mult Citește mai puțin
Confort 1 Decomandat Nemobilat 2 Balcoane / Terase / Logii Centrală proprie Încălzire prin pardoseală 1 Parcare Renovat

Detalii apartament

ID anunț: XFRO00003 Copiat! 259636493 Copiat!
Actualizat în: 09 Februarie 2026
Nr. bucătării: 1
Nr. băi: 2
Structură rezistență: Cărămidă
Tip imobil: Bloc de apartamente
Regim înălțime: P+4E

Utilități

Destinație
Rezidențial Birouri De vacanță
Jaluzele
Orizontale
Pereți
Vopsea lavabilă
Podele
Parchet
Rulouri/Obloane
PVC
Ușă intrare
Metal
Uși interior
Lemn
Izolații termice
Exterior
Ferestre cu geam termopan
PVC
Contorizare
Contor gaz Apometre
Diverse
Senzor de fum
Facilități imobil
Spații agrement Lift Acoperiș Videointerfon
Utilități
Curent Apă Canalizare
Internet
Cablu Fibră optică
Amenajare străzi
Betonate Iluminat stradal
Comision
0%

Certificat energetic:

Clasa energetică: B

Puncte de interes

Mijloace transport
bus-station
Lisabona
Stații autobuz aprox. 147 m
bus-station
Lisabona
Stații autobuz aprox. 155 m
bus-station
Klagenfurt
Stații autobuz aprox. 486 m
bus-station
Landshut
Stații autobuz aprox. 503 m
Școală
school
Scoala Generala Nr. 23
Școli aprox. 638 m
school
Scoala Generala Nr. 18
Școli aprox. 1524 m
school
Scoala cu Clasele I - VIII NR. 12 Sibiu
Școli aprox. 1555 m
kindergarten
Gradinita Nr. 19
Gradinițe aprox. 1563 m
Recreere
park
Parc
Parcuri aprox. 1058 m
supermarket
PLUS Terezian
Supermarket aprox. 1518 m
restaurant
Pasha Kebab
Restaurant aprox. 1570 m
bar
Bar test
Bar aprox. 1740 m

Detalii despre preț și costuri

Prețul pe piață

Preț cerut: 128.500 €

Preț min. zonă
Preț max. zonă

56% dintre proprietățile similare ca zonă și nr. camere au prețul cerut mai mare. mai multe...

Bine de știut: prețul unei proprietăți este influențat și de alte caracteristici, cum ar fi: vechime, localizare, vecinătăți, suprafață, compartimentare, amenajări, dotări, etc. mai puțin...

Insight premium disponibil după login

Costuri cu achiziția

Fără credit
Credit ipotecar
Noua casă

i

Costuri adiționale mai puțin știute la achiziție: taxe notariale, comisioane etc.

Insight premium disponibil după login

Deventer Residence

Deventer Residence

Deventer Residence II este noul nostru proiect din zona de Nord-Vest a Sibiului care oferă apartamente moderne și dinamice. Ansamblul rezidențial este compus din 16 imobile de locuințe care vor genera la finalizare peste 450 de apartamente cu 2 și 3 camere.

Vezi detalii ansamblu

Proprietăți recomandate

Detalii de contact

Deventer Residence

Alex Voicu agent vanzari

Deventer Residence

Abonează-te la newsletter să fii primul care primește cele mai noi recomandări de proprietăți și sfaturi de la experți.

CONTACT

Creează alertă

Salvează căutarea ca să primești pe email ultimele anunțuri publicate

Apartamente cu 3 camere de vânzare în zona Tineretului, Sibiu