Apartament NOU 2 camere, Sibiu, COMISION 0

114.850 €

Vest, Sibiu

Nr. cam.:
2
Sup. utilă:
59,75 mp
Etaj:
Parter / 6
An constr.:
2025 (În construcție)
  • • Comision 0%
  • • Locație aproximativă

Descriere apartament

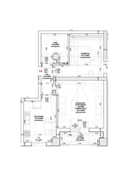
COMISION ZERO- DIRECT DEZVOLTATOR Apartament decomandat cu 2 camere, in zona Calea Surii Mici, Sibiu Suprafata utila: 59.75 mpu Compartimentare: dormitor, living, bucatarie inchisa, 1 bai, hol, logie si balcon Predare INTERIOR SEMIFINISAT LA ALB - cu centrala termica si incalzire in pardoseala Vaillant, usa de intrare de metal, peretii cu lavabila, geamuri termopan, video interfon, instalatii electrice, termice si sanitare pe pozitie. Exteriorul se preda LA CHEIE: lift, balcoane si terase placate cu gresie, alei si trotuare pavate, spatii verzi. Zona deosebita, la DOAR 10 minute de centrul Sibiului, mijloace de transport in comun (statie la cativa metri distanta), strazi asfaltate si iluminate. - 1 loc de parcare inclus in pret. Pozele au caracter informativ si sunt dintr-un apartament identic Predare: vara 2026 PRETURI: LA ALB: 114.850 Euro LA CHEIE: 122.200 Euro Detalii si vizionari: - Roxana
Citește mai mult Citește mai puțin
Confort 1 Decomandat Nemobilat 2 Balcoane / Terase / Logii Calorifere Centrală proprie Încălzire prin pardoseală 1 Parcare

Detalii apartament

ID anunț: XB50102KA Copiat! 262399720 Copiat!
Actualizat în: 13 Martie 2026
Suprafață construită: 65 mp
Nr. bucătării: 1
Nr. băi: 2
Structură rezistență: Cărămidă
Tip imobil: Bloc de apartamente
Regim înălțime: P+6E

Utilități

Destinație
Rezidențial
Pereți
Faianță Vopsea lavabilă
Podele
Gresie Parchet
Ușă intrare
Metal
Izolații termice
Exterior
Contorizare
Apometre Contor căldură Contor gaz
Facilități imobil
Interfon Videointerfon
Utilități
Curent Apă Canalizare CATV Gaze Telefon
Internet
Cablu
Amenajare străzi
Iluminat stradal Mijloace de transport în comun Asfaltate
Comision
0%

Disponibilitate proprietate:

Imediat

Puncte de interes

Mijloace transport
bus-station
Paris 2
Stații autobuz aprox. 178 m
bus-station
Paris 1
Stații autobuz aprox. 191 m
bus-station
Kiev
Stații autobuz aprox. 303 m
bus-station
Kogalniceanu
Stații autobuz aprox. 314 m
Școală
kindergarten
Gradinita Nr. 19
Gradinițe aprox. 210 m
school
Scoala cu Clasele I - VIII NR. 12 Sibiu
Școli aprox. 211 m
university
Facultatea de Jurnalistica
Universități aprox. 1342 m
kindergarten
Gradinita Nr. 18
Gradinițe aprox. 1481 m
Recreere
park
Parc Piata Cluj
Parcuri aprox. 275 m
restaurant
Kon Tiki
Restaurant aprox. 357 m
sports-ground
Teren sportiv
Terenuri sport aprox. 665 m
supermarket
Profi
Supermarket aprox. 1073 m

Detalii despre preț și costuri

Prețul pe piață

Preț cerut: 114.850 €

Preț min. zonă 60.000 €
Preț max. zonă 135.000 €

51% dintre proprietățile similare ca zonă și nr. camere au prețul cerut mai mare. mai multe...

Bine de știut: prețul unei proprietăți este influențat și de alte caracteristici, cum ar fi: vechime, localizare, vecinătăți, suprafață, compartimentare, amenajări, dotări, etc. mai puțin...

Costuri cu achiziția

Fără credit
6.807 RON
Credit ipotecar
8.407 RON
Noua casă
725 RON+ taxe notariale

i

Costuri adiționale mai puțin știute la achiziție: taxe notariale, comisioane etc.

Proprietăți recomandate

Detalii de contact

Welhome Imobiliare

Roxana Stoica Broker Imobiliar

Welhome Imobiliare
PRO

Abonează-te la newsletter să fii primul care primește cele mai noi recomandări de proprietăți și sfaturi de la experți.

CONTACT

Creează alertă

Salvează căutarea ca să primești pe email ultimele anunțuri publicate

Apartamente cu 2 camere de vânzare în zona Vest, Sibiu