16

Apartamente deosebite cu 3 camere si 2 bai | Aradului | Comision 0%

154.456 €

Aradului, Timișoara

Nr. cam.:
3
Sup. utilă:
69 mp
Etaj:
2 / 4
An constr.:
2023 (Finalizată)
  • • Locație aproximativă

Descriere apartament

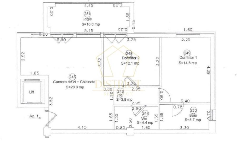
District Real Estate vă prezintă spre vânzare apartamente deosebite, cu 3 camere si 2 bai, avand o suprafață utilă intre 69mp si 74.7mp. Imobilul este situat în Timișoara - zona Aradului si dispune de acces facil catre magazine, facultatea de Agronomie, precum si mijloace de transport in comun, la o distanta de doar 10 minute de centrul orasului. Peretii care delimiteaza apartamentele, sunt izolati fonic, pentru mai multa intimitate. Compartimentarea apartamentelor este urmatoarea: - Hol acces - Living spatios cu bucatarie open space - Terasa tip logie de 10mp - Dormitor - Baie cu dus - Dormitor cu baie proprie cu cada Confortul termic este realizat prin pardoseala, cu ajutorul centralei proprii (Bosch), iar pentru sistemul AC este trasa instalatia in apartament. Fiecare camera este prevazuta cu termostat ambiental. Terasele sunt izolate termic cu polistiren, lucru care ajuta la un confort termic sporit si cheltuieli cu utilitatile mai mici. Blocul a fost construit cu materiale de cea mai buna calitate: - Beton clasa C 30/37 B 450 - Incalzire in pardoseala Rehau - Tamplarie cu 3 sticle Rehau - Instalatie electrica Gewis - Rulouri electrice de aluminiu la fiecare geam Apartamenetele sunt finisate la cheie cu predare imediata ! Prețurile incep de la: 69mp - 127.650€ + TVA (1850 €/mp + TVA) - 154.450 € TVA INCLUS 71.7mp - 132.645€ + TVA (1850 €/mp + TVA) - 160.500€ TVA INCLUS 74.1mp - 137.085€ + TVA (1850 €/mp + TVA) - 165.870€ TVA INCLUS Loc de parcare subteran 11.000€ + TVA Loc de parcare exterior 7.000€ + TVA Boxa ALA 6 mp 6.500€ + TVA Boxa sub rampa: 7,78 mp - 8.000€ + TVA Boxa in spate la lift: 9.000€ + TVA Oferim consultanta si solutii financiare in vederea obtinerii unui credit imobiliar avantajos, cu ajutorul colaboratorilor nostri. Pentru vizionari si alte detalii va stam la dispozitie.
Citește mai mult Citește mai puțin
Confort 1 Semidecomandat Nemobilat 1 Balcon / Terasă / Logie Centrală proprie Încălzire prin pardoseală

Detalii apartament

ID anunț: XD7L1055T Copiat! 271684784 Copiat!
Actualizat în: 02 Februarie 2026
Suprafață construită: 92 mp
Nr. bucătării: 1
Nr. băi: 2
Structură rezistență: Cărămidă
Tip imobil: Bloc de apartamente
Tip tranzacție: De vânzare prin agent
Regim înălțime: P+4E
Modalitate de plată: Cash sau Credit

Utilități

Destinație
Rezidențial
Jaluzele
Verticale
Pereți
Faianță Vopsea lavabilă
Podele
Gresie Parchet
Ușă intrare
Metal
Uși interior
Celulare
Izolații termice
Exterior
Ferestre cu geam termopan
PVC
Contorizare
Apometre Contor gaz
Alte spații utile
WC Serviciu
Facilități imobil
Interfon Lift Videointerfon
Utilități
Curent Apă Canalizare CATV Gaze Telefon
Internet
Wireless
Amenajare străzi
Iluminat stradal Mijloace de transport în comun Asfaltate
Comision
standard

Certificat energetic:

Clasa energetică: A

Disponibilitate proprietate:

Imediat

Puncte de interes

Mijloace transport
bus-station
Statie Institutul Agronomic E1, T17
Stații autobuz aprox. 81 m
bus-station
Selgros
Stații autobuz aprox. 237 m
trolleybus-station
Statie Piata Verde/Liege T17
Stații troleibuz aprox. 1056 m
tram-station
Statie Torontal Tv4, Tv6
Stații tramvai aprox. 1605 m
Școală
school
Grup Scolar Agricol Iulian Dracea
Școli aprox. 99 m
school
Grup Scolar Agricol "Iulian Dracea" Timisoara
Școli aprox. 108 m
university
Universitatea de Stiinte Agricole si Medicina Veterinara a Banatului
Universități aprox. 268 m
kindergarten
Kids Club Allegria
Gradinițe aprox. 981 m
Recreere
sports-ground
Teren sportiv
Terenuri sport aprox. 48 m
supermarket
Auchan
Supermarket aprox. 246 m
hypermarket
Decathlon
Hipermarket aprox. 485 m
mall
Kappa Centrul Comercial
Mall aprox. 1991 m

Detalii despre preț și costuri

Prețul pe piață

Preț cerut: 154.456 €

Preț min. zonă
Preț max. zonă

51% dintre proprietățile similare ca zonă și nr. camere au prețul cerut mai mare. mai multe...

Bine de știut: prețul unei proprietăți este influențat și de alte caracteristici, cum ar fi: vechime, localizare, vecinătăți, suprafață, compartimentare, amenajări, dotări, etc. mai puțin...

Acces la informații premium după autentificare
Login Gratuit

Costuri cu achiziția

Fără credit
Credit ipotecar
Noua casă

i

Costuri adiționale mai puțin știute la achiziție: taxe notariale, comisioane etc.

Acces la informații premium după autentificare
Login Gratuit

Proprietăți similare

Apartament cu 3 camere decomandat în Aradului
135.000 €
Timișoara, Aradului
3 camere
66 mp
Etaj 1
Apartament cu 4 camere decomandat, mobilat în Aradului
138.000 €
Timișoara, Aradului
4 camere
76 mp
Etaj 3 / 4
Apartament cu 2 camere semidecomandat, mobilat în Aradului
135.000 €
Timișoara, Aradului
2 camere
55 mp
Etaj 8 / 9

Detalii de contact

District Real Estate

Darius Solomon Manager

District Real Estate
PRO

Abonează-te la newsletter să fii primul care primește cele mai noi recomandări de proprietăți și sfaturi de la experți.

Feedback apel

CONTACT

Creează alertă

Salvează căutarea ca să primești pe email ultimele anunțuri publicate

Apartamente noi cu 3 camere de vânzare în zona Aradului, Timișoara