7

Apartament nou cu 2 camere - loc de parcare inclus - zona Braytim

88.990 €

Braytim, Timișoara

Nr. cam.:
2
Sup. utilă:
48 mp
Etaj:
2
An constr.:
2025
  • • Locație aproximativă

Descriere apartament

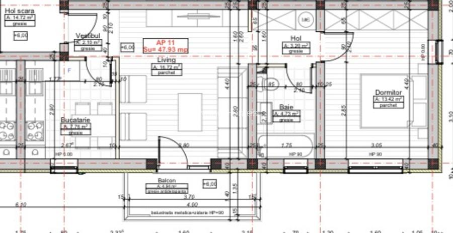
Evand Homes ofera spre vanzare un apartament cu 2 camere, situat in Timisoara, zona Braytim, intr-un imobil nou, finalizat in anul 2025, construit din beton + caramida. Apartamentul se afla la etajul 2 din 3 si dispune de o suprafata utila de 48 m², completata de un balcon de 6 m². Compartimentarea este decomandata, oferind un spatiu luminos, modern si bine organizat. Proprietatea beneficiaza de 1 loc de parcare si este dotata cu: - centrala proprie cu incalzire prin pardoseala; - sistem de climatizare AC; - tamplarie PVC. Apartamentul este structurat astfel: Hol, bucatarie inchisa, living generos cu iesire pe balcon, baie, dormitor. Zona este bine pozitionata, cu acces facil catre mijloace de transport, magazine, ideala atat pentru locuinta proprie, cat si pentru investitie. Pret: 88.990 € + comisionul standard al agentiei. Pentru detalii și programarea unei vizionari, contactati-ne la – Evand Homes, partenerul dumneavoastra de incredere.
Citește mai mult Citește mai puțin
Decomandat 1 Balcon / Terasă / Logie Aer condiționat Centrală proprie Încălzire prin pardoseală 1 Parcare Bine întreținut (Bună)

Detalii apartament

ID anunț: XG6R10013 Copiat! 273349677 Copiat!
Actualizat în: 28 Martie 2026
Suprafață construită: 63.6 mp
Nr. bucătării: 1
Nr. băi: 1
Structură rezistență: Beton
Tip imobil: Bloc de apartamente
Tip tranzacție: De vânzare prin agent
Regim înălțime: P+3E
Modalitate de plată: Cash sau Credit

Utilități

Destinație
Rezidențial
Pereți
Vopsea lavabilă Faianță
Podele
Parchet Gresie
Ușă intrare
Metal
Uși interior
Celulare
Izolații termice
Exterior
Ferestre cu geam termopan
PVC
Contorizare
Apometre Contor gaz
Facilități imobil
Interfon Videointerfon
Utilități
Curent Apă Canalizare Gaze CATV
Internet
Fibră optică
Amenajare străzi
Pietruite Mijloace de transport în comun
Comision
Standard

Certificat energetic:

Clasa energetică: A

Puncte de interes

Mijloace transport
bus-station
Venus
Stații autobuz aprox. 731 m
bus-station
Statie Piata Gheorghe Domasneanu E2
Stații autobuz aprox. 892 m
tram-station
Statie Grup Scolar Electrotimis Tv4
Stații tramvai aprox. 960 m
trolleybus-station
Statie Sudului bucla T16
Stații troleibuz aprox. 1025 m
Școală
kindergarten
Piticii din Vest
Gradinițe aprox. 564 m
kindergarten
Gradinita Program Prelungit nr.38
Gradinițe aprox. 716 m
school
Campus scolar Colegiul Tehnic Electrotimis
Școli aprox. 821 m
university
Institutul de Cercetari pentru Energii Regenerabile
Universități aprox. 1691 m
Recreere
park
Parc
Parcuri aprox. 596 m
sports-ground
Arena Ciarda Rosie
Terenuri sport aprox. 613 m
bar
Mateo Cafe
Bar aprox. 666 m
supermarket
Profi
Supermarket aprox. 884 m

Detalii despre preț și costuri

Prețul pe piață

Preț cerut: 88.990 €

Preț min. zonă
Preț max. zonă

54% dintre proprietățile similare ca zonă și nr. camere au prețul cerut mai mare. mai multe...

Bine de știut: prețul unei proprietăți este influențat și de alte caracteristici, cum ar fi: vechime, localizare, vecinătăți, suprafață, compartimentare, amenajări, dotări, etc. mai puțin...

Acces la informații premium după autentificare
Login Gratuit

Costuri cu achiziția

Fără credit
Credit ipotecar
Noua casă

i

Costuri adiționale mai puțin știute la achiziție: taxe notariale, comisioane etc.

Acces la informații premium după autentificare
Login Gratuit

Proprietăți similare

Apartament cu 2 camere decomandat în Braytim
88.000 €
Timișoara, Braytim
2 camere
48 mp
Etaj 2 / 3
Apartament cu 2 camere semidecomandat în Braytim
88.000 €
Timișoara, Braytim
2 camere
48 mp
Etaj 1 / 3
Apartament cu 2 camere în Braytim
88.000 €
Timișoara, Braytim
2 camere
48 mp
Parter / 3

Detalii de contact

Evand Homes

Luca Gusoi Consultant Imobiliar

Evand Homes
PRO

Abonează-te la newsletter să fii primul care primește cele mai noi recomandări de proprietăți și sfaturi de la experți.

Feedback apel

CONTACT

Creează alertă

Salvează căutarea ca să primești pe email ultimele anunțuri publicate

Apartamente noi cu 2 camere de vânzare în zona Braytim, Timișoara