2

Apartamente de vanzare in zona Braytim disponibile la fiecare etaj

95.000 €

Braytim, Timișoara

Nr. cam.:
2
Sup. utilă:
52 mp
Etaj:
1 / 3
An constr.:
2023 (În construcție)
  • • Locație aproximativă

Descriere apartament

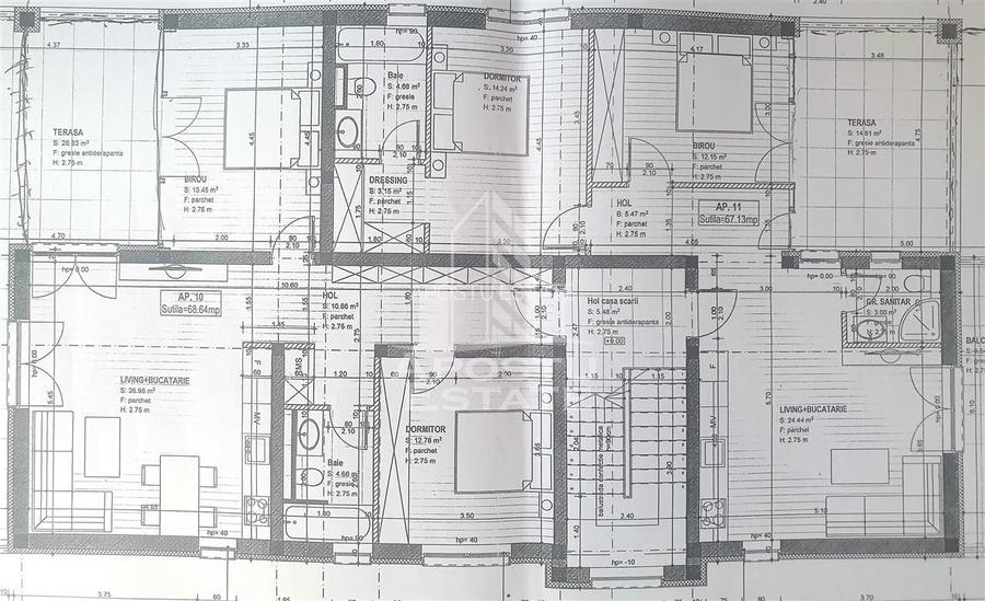
APOSTU ESTATE va ofera spre vanzare apartamente in zona Braytim decomandate disponibile la fiecare etaj. Regimul de inaltime al cladirii este P+2E+ etaj retras. Fiecare apartament dispune de 1 loc de parcare trecut in CF. Blocul este realizat integral din caramida de 30 cm + izolatie de 15 cm. Acoperis de tigla ( import Italia ). Geamuri tripan Rehau cu rulouri electrice incastrate. Confortul termic se realizeaza cu ajutorul centralei proprii pe gaz cu incalzire in pardoseala si termostat de ambient in fiecare camera. Fundatie 1 m + elevatie de 60 cm. Avem 3 tipuri de apartamente disponibile in acest bloc: - apartament cu 2 camere decomandat suprafata de 52 mp utili + balcon la 95.000 euro - apartament cu 2 camere decomandat suprafata de 56 mp utili + balcon la 100.800 euro - apartament cu 3 camere open space suprafata de 68 mp utili + terasa de 28 mp la 134.500 euro Va asteptam cu drag la o vizionare! ID intern 12137
Citește mai mult Citește mai puțin
Confort 1 Decomandat Nemobilat Centrală proprie

Detalii apartament

ID anunț: XBAF10O0D Copiat! 274296581 Copiat!
Actualizat în: 31 Ianuarie 2026
Suprafață construită: 65 mp
Nr. bucătării: 1
Nr. băi: 1
Tip imobil: Bloc de apartamente
Regim înălțime: P+3E

Utilități

Ușă intrare
Metal
Uși interior
Lemn
Izolații termice
Exterior
Ferestre cu geam termopan
PVC
Facilități imobil
Interfon
Utilități
Curent Apă Canalizare Gaze

Disponibilitate proprietate:

Imediat

Puncte de interes

Mijloace transport
bus-station
Venus
Stații autobuz aprox. 1007 m
tram-station
Statie I.O.T. Tv4
Stații tramvai aprox. 1098 m
bus-station
Statie Piata Gheorghe Domasneanu E2
Stații autobuz aprox. 1141 m
trolleybus-station
Statie Sudului bucla T16
Stații troleibuz aprox. 1323 m
Școală
kindergarten
Piticii din Vest
Gradinițe aprox. 842 m
kindergarten
Gradinita Program Prelungit nr.38
Gradinițe aprox. 934 m
school
Campus scolar Colegiul Tehnic Electrotimis
Școli aprox. 953 m
university
CENTRU REGIONALDE PREGATIRE PROFESIONALA PENTRU MAGISTRATI, GIROC, tIMISOARA
Universități aprox. 1708 m
Recreere
park
Parcul Ciarda Rosie
Parcuri aprox. 745 m
sports-ground
Arena Ciarda Rosie
Terenuri sport aprox. 749 m
bar
Mateo Cafe
Bar aprox. 908 m
supermarket
Profi
Supermarket aprox. 1094 m

Detalii despre preț și costuri

Prețul pe piață

Preț cerut: 95.000 €

Preț min. zonă
Preț max. zonă

58% dintre proprietățile similare ca zonă și nr. camere au prețul cerut mai mare. mai multe...

Bine de știut: prețul unei proprietăți este influențat și de alte caracteristici, cum ar fi: vechime, localizare, vecinătăți, suprafață, compartimentare, amenajări, dotări, etc. mai puțin...

Insight premium disponibil după login

Costuri cu achiziția

Fără credit
Credit ipotecar
Noua casă

i

Costuri adiționale mai puțin știute la achiziție: taxe notariale, comisioane etc.

Insight premium disponibil după login

Proprietăți similare

Apartament cu 2 camere semidecomandat în Braytim
88.000 €
Timișoara, Braytim
2 camere
48 mp
Etaj 1 / 3
Apartament cu 2 camere în Braytim
88.000 €
Timișoara, Braytim
2 camere
48 mp
Parter / 3
Apartament cu 2 camere decomandat în Braytim
88.000 €
Timișoara, Braytim
2 camere
48 mp
Etaj 2 / 3

Detalii de contact

APOSTU ESTATE

Claudiu Jura Senior Broker

APOSTU ESTATE
PRO

Abonează-te la newsletter să fii primul care primește cele mai noi recomandări de proprietăți și sfaturi de la experți.

Feedback apel

CONTACT

Creează alertă

Salvează căutarea ca să primești pe email ultimele anunțuri publicate

Apartamente cu 2 camere de vânzare în zona Braytim, Timișoara