Vanzare apartament 4 camere Bld. Unirii - Fantani, Bucuresti

339.500 €

Central, București

Nr. cam.:
4
Sup. utilă:
93 mp
Etaj:
3 / 8
An constr.:
1992 (Finalizată)
  • • Locație aproximativă
  • • Vizionare prin apel video

Descriere apartament

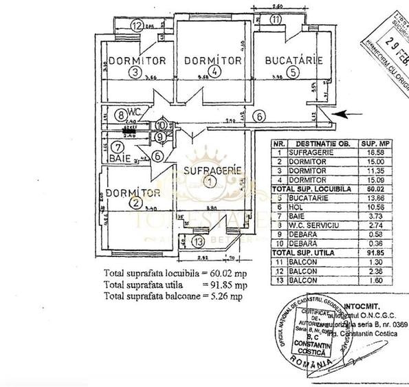
Vanzare apartament 4 camere Bld. Unirii Fantani - Casa Poporului, Bucuresti Va propunem un apartament spre vanzare in zona Unirii Casa Poporului pe bld. Unirii pe tronsonul fantanilor situat in unul din blocurile stradale, cu acces stradal . Imobilul are 8 etaje, este edificat in anul 1992. Apartamentul este situat la etajul 3, cu vedere mixta, are 4 camere, 2 grupuri sanitare , 3 balcoane, este decomandat si are o suprafata totala de 98 mp, respectiv 93 mp suprafata utila. Apartamentul are imbunatatiri precum termopane, parchet, gresie, faianta, usi din lemn masiv facuta in jurul anilor 2012. Pretul dorit de proprietar este de 339500 euro, usor negociabil. Disponibil imediat
Citește mai mult Citește mai puțin
Confort 1 Decomandat Nemobilat 3 Balcoane / Terase / Logii Aer condiționat Termoficare 1 Parcare

Detalii apartament

ID anunț: XCFC100AM Copiat! 275295519 Copiat!
Actualizat în: 06 Mai 2026
Suprafață utilă totală: 93 mp
Suprafață construită: 98 mp
Nr. bucătării: 1
Nr. băi: 2
Structură rezistență: Altele
Tip imobil: Bloc de apartamente
Regim înălțime: P+8E

Utilități

Destinație
Birouri
Pereți
Faianță Vopsea lavabilă
Podele
Parchet Gresie
Ușă intrare
Metal
Ferestre cu geam termopan
PVC
Alte spații utile
WC Serviciu
Facilități imobil
Lift
Utilități
Apă Curent Gaze Canalizare CATV
Internet
Fibră optică Wireless
Servicii imobil
Administrare
Amenajare străzi
Asfaltate
Comision
3%

Vecinătăți:

Terenuri, Scoala/gradinita, Centru universitar, Restaurant/pub, Mall, Parc, Ultracentral, Hotel, Piata, Benzinarie, Intersectie circulata, Trafic Pietonal, Fastfood, Supermarket, Banca, Zona comerciala, Autobuz, Metrou

Puncte de interes

Mijloace transport
tram-station
Piata Unirii
Stații tramvai aprox. 151 m
metro-station
Metrorex. Stația Piața Unirii 1 (M1) (en)
Stații metrou aprox. 262 m
bus-station
Statia Piata Natiunilor Unite, linia 385, 124, N115, N120, N121, N122, 104, 123
Stații autobuz aprox. 344 m
trolleybus-station
Statia Vasile Parvan 66,70,92
Stații troleibuz aprox. 1529 m
Școală
kindergarten
Gradinita Prikindel
Gradinițe aprox. 62 m
kindergarten
Gradinita nr.192, "Pisicile Aristocrate"
Gradinițe aprox. 196 m
school
Elohim Academi
Școli aprox. 297 m
university
Facultatea de Teologie Ortodoxa
Universități aprox. 326 m
Recreere
supermarket
Carrefour Express
Supermarket aprox. 129 m
park
Parc
Parcuri aprox. 139 m
public-square
Piata Bibescu
Piețe publice aprox. 237 m
sports-ground
Teren sportiv
Terenuri sport aprox. 882 m

Detalii despre preț și costuri

Prețul pe piață

Preț cerut: 339.500 €

Preț min. zonă
Preț max. zonă

95% dintre proprietățile similare ca zonă și nr. camere au prețul cerut mai mic. mai multe...

Bine de știut: prețul unei proprietăți este influențat și de alte caracteristici, cum ar fi: vechime, localizare, vecinătăți, suprafață, compartimentare, amenajări, dotări, etc. mai puțin...

Insight premium disponibil după login

Costuri cu achiziția

Fără credit
Credit ipotecar
Noua casă

i

Costuri adiționale mai puțin știute la achiziție: taxe notariale, comisioane etc.

Insight premium disponibil după login

Proprietăți similare

Apartament cu 3 camere decomandat în Central
332.000 €
București, Central
3 camere
78 mp
Etaj 3
Apartament cu 3 camere decomandat în Central
310.534 €
București, Central
3 camere
80 mp
Etaj 3 / 11
Apartament cu 4 camere decomandat în Central
334.000 €
București, Central
4 camere
107,66 mp
Etaj 5 / 9

Detalii de contact

TOP ESTATES

Laurentiu Ene

TOP ESTATES
PRO

Abonează-te la newsletter să fii primul care primește cele mai noi recomandări de proprietăți și sfaturi de la experți.

CONTACT

Creează alertă

Salvează căutarea ca să primești pe email ultimele anunțuri publicate

Apartamente cu 4+ camere de vânzare în zona Central, Ultracentral