5

Apartament 4 camere de vanzare Pipera in bloc cu vedere la lac

393.250 €

Voluntari, Județul Ilfov

Nr. cam.:
4
Sup. utilă:
114,24 mp
Etaj:
3 / 3
An constr.:
2025 (În construcție)
  • • Comision 0%
  • • Exclusivitate
  • • Locație exactă

Descriere apartament

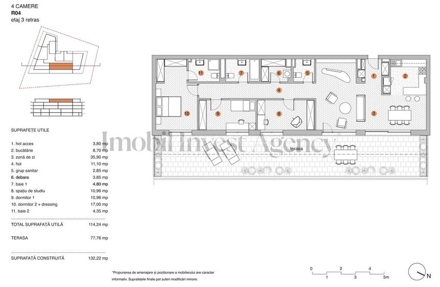
Vă prezentăm un proiect rezidențial boutique cu regim de înălțime S+P+2E+ER, amplasat în zona Pipera, beneficiind de o vedere spectaculoasă către lac. Proiectul include 42 de apartamente cu 2, 3 și 4 camere și este poziționat excelent, la aproximativ 7 minute de mers pe jos de rondul OMV, într-o zonă cu conectivitate foarte bună. Proiectul rezidențial boutique se remarcă prin densitatea redusă, oferind un mediu intim și relaxant pentru locatari, în contrast cu alte dezvoltări mai aglomerate. Locuințele de la parter beneficiază de curte proprie, iar spațiile verzi și arhitectura modernă contribuie la crearea unui cadru armonios. Proiectul a fost recepționat de autoritățile competente, intabularea și cadastrarea sunt finalizate, suntem la etapa cu montajul ușilor și remedierea unor mici detalii de finisaj. Apartamentul se afla la etajul 3 retras, este compartimentat cu living, dining si bucatarie open-space, 3 dormitoare, 3 bai, debara, se intinde pe o suprafata utila de 114.24mp si dispune de o terasa spatioasa de 77.76mp. Apartamentele sunt dotate cu incalzire prin pardoseala si tamplarie premium Rehau, cu triplu geam pentru izolatie termica si fonica. Blocul, construit cu materiale Salamander de cea mai buna calitate, pereții dintre vecini fiind din cărămidă, este deservit de 3 centrale pe gaz, iar fiecare apartament are contorizare individuala pentru consumul de utilitati. Designul modern si compartimentarea eficienta creeaza un spatiu luminos si functional, potrivit pentru tineri, cupluri si familiile cu copii. mbrie. Pentru confortul suplimentar al locatarilor, complexul ofera parcare disponibila atat la interior, la pretul de 15.000 euro, cat si la exterior, la pretul de 12.000 euro. Pentru persoane fizice la pretul afisat se adauga TVA, iar pentru achizitia pe persoana juridica, se aplica taxare inversa. Vă invităm cu drag la o vizionare pentru a descoperi toate avantajele acestei proprietăți. Imobil Invest este aici pentru a vă ajuta să achiziționați apartamentul dorit.
Citește mai mult Citește mai puțin
Confort lux Semidecomandat Nemobilat 1 Balcon / Terasă / Logie Curte comună Aer condiționat Centrală imobil Încălzire prin pardoseală

Detalii apartament

ID anunț: XFDI1004A Copiat! 259771215 Copiat!
Actualizat în: 10 Mai 2026
Suprafață construită: 132.22 mp
Nr. bucătării: 1
Nr. băi: 3
Structură rezistență: Cărămidă
Tip imobil: Bloc de apartamente
Tip tranzacție: De vânzare prin agent
Regim înălțime: S+D+P+3E
Modalitate de plată: Cash sau Credit

Utilități

Destinație
Rezidențial
Pereți
Vopsea lavabilă
Podele
Gresie Parchet
Ușă intrare
Metal
Uși interior
Lemn
Izolații termice
Exterior Interior
Ferestre cu geam termopan
Aluminiu
Contorizare
Apometre Contor căldură
Diverse
Senzor de fum Sistem de alarmă Telecomandă poartă acces auto Telecomandă poartă garaj
Alte spații utile
WC Serviciu
Facilități imobil
Acoperiș Interfon Lift Videointerfon
Utilități
Curent Apă Canalizare CATV Gaze Telefon
Internet
Cablu Wireless
Servicii imobil
Pază
Amenajare străzi
Iluminat stradal Mijloace de transport în comun Asfaltate
Comision
0%

Vecinătăți:

Pipera Plaza
Worldclass
Jysk Pipera
McDonald's
Lidl
Benzinării: Mol, OMV
Transport public:
Stații de autobuz: Emil Garleanu-Biserica (3 min pe jos), Cartier Azur 1-Mega Image (9 min pe jos), Drumul Potcoavei (11 min pe jos).
Linii de autobuz: 416, 461, 473.
Metrou: Linia M2 (stația Pipera este la aprox. 10-15 min cu autobuzul).

Disponibilitate proprietate:

Imediat

Puncte de interes

Mijloace transport
bus-station
Pipera Drumul Bisericii
Stații autobuz aprox. 793 m
bus-station
Statia Mentiunii, linia 682
Stații autobuz aprox. 1277 m
tram-station
Statia Gelcap, linia 16, 36
Stații tramvai aprox. 1392 m
tram-station
Gelcap
Stații tramvai aprox. 1447 m
Școală
school
Gradinita Happy Univers
Școli aprox. 555 m
kindergarten
Echilibria 1
Gradinițe aprox. 646 m
school
Scoala Nr.3 Voluntari
Școli aprox. 707 m
kindergarten
Gradinita Zece
Gradinițe aprox. 1108 m
Recreere
supermarket
Mega Image Pipera
Supermarket aprox. 514 m
restaurant
Shanghai Garden (en)
Restaurant aprox. 514 m
park
spatiu verde
Parcuri aprox. 840 m
sports-ground
Teren sportiv
Terenuri sport aprox. 1001 m

Istoricul prețurilor

Acces la informații premium după autentificare
Login Gratuit

Detalii despre preț și costuri

Prețul pe piață

Preț cerut: 393.250 €

Preț min. zonă
Preț max. zonă

84% dintre proprietățile similare ca zonă și nr. camere au prețul cerut mai mic. mai multe...

Bine de știut: prețul unei proprietăți este influențat și de alte caracteristici, cum ar fi: vechime, localizare, vecinătăți, suprafață, compartimentare, amenajări, dotări, etc. mai puțin...

Acces la informații premium după autentificare
Login Gratuit

Costuri cu achiziția

Fără credit
Credit ipotecar
Noua casă

i

Costuri adiționale mai puțin știute la achiziție: taxe notariale, comisioane etc.

Acces la informații premium după autentificare
Login Gratuit

Proprietăți similare

Apartament cu 3 camere decomandat în Nord
355.619 €
Județul Ilfov, Voluntari
3 camere
84,75 mp
Parter
Apartament cu 3 camere, mobilat în Voluntari
329.000 €
Județul Ilfov, Voluntari
3 camere
96 mp
Parter / 4
Apartament cu 3 camere decomandat, mobilat în Central
329.000 €
Județul Ilfov, Voluntari
3 camere
120 mp
Etaj 2

Detalii de contact

IMOBIL INVEST AGENCY

Victoria Morozinschi Manager

5.00(4 review-uri)

IMOBIL INVEST AGENCY
PRO

Abonează-te la newsletter să fii primul care primește cele mai noi recomandări de proprietăți și sfaturi de la experți.

CONTACT

Creează alertă

Salvează căutarea ca să primești pe email ultimele anunțuri publicate

Apartamente cu 4+ camere de vânzare în Voluntari, Județul Ilfov