Spatii birouri Iasi Copou, 172mp, Fundatie

1.200 € / lună
6.98 € / mp / lună

Copou, Iași

Sup. utilă / mp. utili:
400 mp
Tip prop.:
Clădire de birouri
Niv.:
2
An constr.:
1990 (Există)
  • • Comision 0%
  • • Locație exactă

Descriere spațiu comercial

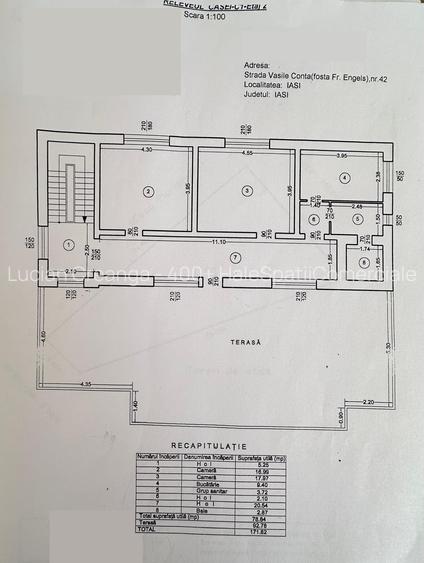
Spatii birouri Iasi Copou, 172mp, Fundatie Spatii de birouri de inchiriat in Iasi, zona Copou - centru - Fundatie pentru: consultanta, contabilitate, arhitectura, IT, marketing sau o activitate care valorifica o terasa de 93mp; Parcari in zona, locatie centrala, langa mijloacele de transport in comun; Spatiu 171,62mp, Iasi/ centru - str. Vasile Conta 42, et. 2, 78,84mpu la care se adauga terasa 92,78mp; 2,7mH tavan; 220V; centrala termica pe gaz si calorifere; Grup sanitar; Orientativ: 1200 Eur/ luna (15,22 Eur/mp), persoana fizica, oferta personalizata la cerere; Lucian Creanga - consultant imobiliar cu 400+ oferte spatii comerciale/ birouri si 100.000mp+ tranzactionati - iti sunt aproape ca tu să compari oferte reale și să-ți optimizezi termenii tranzacției! Comision zero pentru aceasta oferta, daca nu am mai analizat alte oferte impreuna. Esti agent imobiliar? Colaboram.
Citește mai mult Citește mai puțin
1 Parcare

Detalii spațiu comercial

ID anunț: XB8Q040NE Copiat! 275415814 Copiat!
Actualizat în: 07 Aprilie 2026
Clasă birouri: B
Regim înălțime: D+P+2E+T
Stadiu construcție: Există
Suprafață teren: 172 mp

Utilități

Comision
0%

Vecinătăți:

Casa de Cultura a Studentilor

Subspații disponibile

Spatii birouri Iasi Copou, 172mp, Fundatie

Chirie / u.m. / lună:
6.98 EUR/mp (total: 1200 EUR/lună), Comision 0% cumpărător
Suprafață disponibilă:
172
Disponibilitate spațiu:
imediat
Etaj:
Etaj 2 / 2
Posibilitate parcare:
Da

Puncte de interes

Mijloace transport
bus-station
Statia "Piata Eminescu", linia 6b
Stații autobuz aprox. 205 m
tram-station
Statia "Piata Eminescu", linia 1,13
Stații tramvai aprox. 205 m
bus-station
Piata Independentei
Stații autobuz aprox. 315 m
train-station
Gara Iasi
Stații tren aprox. 782 m
Școală
school
Univ Al. I. Cuza - Scoala Junior
Școli aprox. 163 m
university
Universitatea Cuza - Corpul E (pt)
Universități aprox. 189 m
school
Afterschool Doua Fetite
Școli aprox. 259 m
kindergarten
Gradinita nr 20
Gradinițe aprox. 307 m
Recreere
park
Parcul Voievozilor
Parcuri aprox. 38 m
public-square
Piata/Square Mihai Eminescu (en)
Piețe publice aprox. 139 m
supermarket
Magazinul Casei Tale
Supermarket aprox. 503 m
mall
Galeriile Ștefan cel Mare
Mall aprox. 901 m

Proprietăți similare

Birou, de 120 mp, în Central
1.200 € / lună
Iași, Central
120 mp utili
Casă/Vilă
P+1E
Birou, 117 mp în Metalurgie
1.170 € / lună
Iași, Metalurgie
117 mp utili
Clădire de birouri
2E
Birou, de 135 mp, în Central
1.215 € / lună
Iași, Central
135 mp utili
Clădire de birouri
2000 (Există)

Detalii de contact

Abonează-te la newsletter să fii primul care primește cele mai noi recomandări de proprietăți și sfaturi de la experți.

CONTACT

Creează alertă

Salvează căutarea ca să primești pe email ultimele anunțuri publicate

Birouri de închiriat în zona Copou, Iași