19

Hundertwasser House, Siriului 42-46 - comision 0%, reprezentam proprietarul!

2.609 - 5.896 € / lună
13.31 € / mp / lună

Aviației, București

Sup. utilă / mp. utili:
5.800 mp
Tip prop.:
Clădire de birouri
Niv.:
5
An constr.:
2011 (Există)
  • • Comision 0%
  • • Locație exactă

Descriere spațiu comercial

Hundertwasser House este amplasata in nordul Bucurestiului, zona Aviatiei, la intersectia strazilor Siriului si Musetesti. Cladirea de birouri este situata la doar 100 de metri de Strada Capitan Alexandru Serbanescu, principalul bulevard care leaga Barbu Vacarescu de Bulevardul Aerogarii. Cladirea este amplasata la 800 de metri de noul centru de afaceri dezvoltat langa statia de metrou Aurel Vlaicu, la intersectia Bulevardului Barbu Vacarescu cu Soseaua Pipera si Calea Floreasca, respectiv la 550 de metri de zona de birouri Nicolae Caramfil. Accesul cu automobilul se realizeaza pe Strada Capitan Al. Serbanescu, bulevard larg cu doua benzi pe sens si linie de tramvai pe mijloc, de unde se ajunge imediat la cladire. Transportul public include statii de tramvai la soseaua principala si access la statia de metrou Aurel Vlaicu in 10 minute de mers pe jos. Hundertwasser House este o cladire de birouri cu arhitectura deosebita, amintind de creatiile arhitectului austriac Friedensreich Hundertwasser, finalizata in anul 2011. Cladirea are o suprafata inchiriabila totala de aproximativ 5.800 m2, cu o suprafata pe etaj de 966 m2 (1.100 m2 construiti). Cladirea este desfasurata pe subsol, parter si 5 etaje, avand 81 de locuri de parcare amplasate in subteran si exterior.
Citește mai mult Citește mai puțin
81 Parcări

Detalii spațiu comercial

ID anunț: X5F8040F0 Copiat! 1135898 Copiat!
Actualizat în: 12 Martie 2026
Tip tranzacție: De închiriat prin agent
Nume proprietate: Hundertwasser House
Regim înălțime: 1S+P+5E
Stadiu construcție: Există

Utilități

Comision
0%

Vecinătăți:

Promenada Mall
Aviatiei

Subspații disponibile

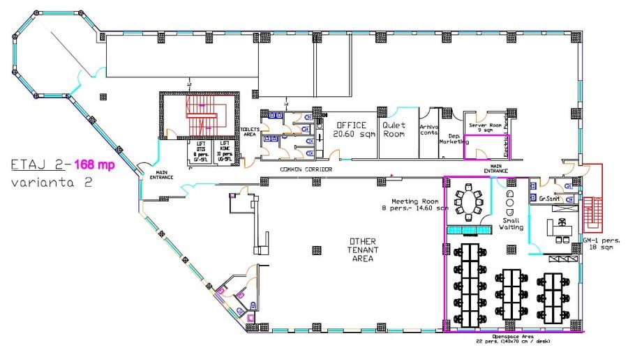
Spatiu de inchiriat - et. 1

Mai multe detalii despre aceasta oferta in link-ul de mai jos: spatii-de-birouri.ro/inchiriere-vanzare/bucuresti-hundertwasser-house Pe platforma SPATII-DE-BIROURI.RO gasiti peste 400 de cladiri de birouri din Bucuresti, cu toate informatiile actualizate si comision 0% (reprezentam proprietarii).

Chirie / u.m. / lună:
13.31 EUR/mp (total: 5896 EUR/lună) + alte cheltuieli, Comision 0% cumpărător
Suprafață disponibilă:
443
Disponibilitate spațiu:
imediat
Etaj:
Etaj 1 / 5
Posibilitate parcare:
Da

Spatiu de inchiriat - et. 2

Mai multe detalii despre aceasta oferta in link-ul de mai jos: spatii-de-birouri.ro/inchiriere-vanzare/bucuresti-hundertwasser-house Pe platforma SPATII-DE-BIROURI.RO gasiti peste 400 de cladiri de birouri din Bucuresti, cu toate informatiile actualizate si comision 0% (reprezentam proprietarii).

Chirie / u.m. / lună:
13.31 EUR/mp (total: 3194 EUR/lună) + alte cheltuieli, Comision 0% cumpărător
Suprafață disponibilă:
240
Disponibilitate spațiu:
imediat
Etaj:
Etaj 2 / 5
Posibilitate parcare:
Da

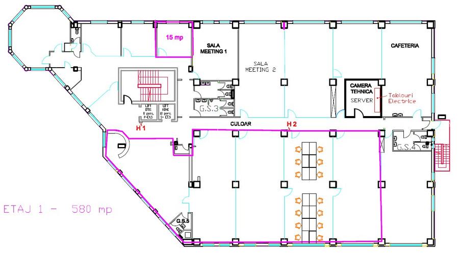
Spatiu de inchiriat - et. 4

Mai multe detalii despre aceasta oferta in link-ul de mai jos: spatii-de-birouri.ro/inchiriere-vanzare/bucuresti-hundertwasser-house Pe platforma SPATII-DE-BIROURI.RO gasiti peste 400 de cladiri de birouri din Bucuresti, cu toate informatiile actualizate si comision 0% (reprezentam proprietarii).

Chirie / u.m. / lună:
13.31 EUR/mp (total: 4472 EUR/lună) + alte cheltuieli, Comision 0% cumpărător
Suprafață disponibilă:
336
Disponibilitate spațiu:
01.11.2025
Etaj:
Etaj 4 / 5
Posibilitate parcare:
Da

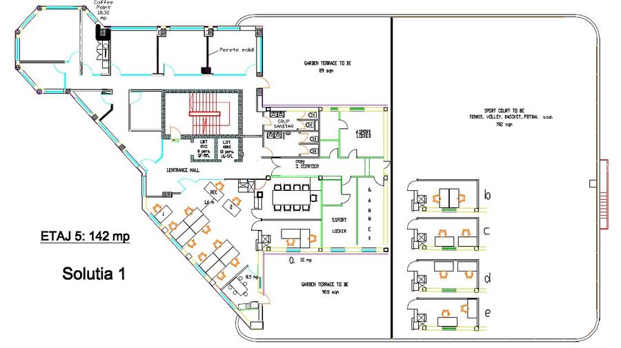
Spatiu de inchiriat - et. 4

Mai multe detalii despre aceasta oferta in link-ul de mai jos: spatii-de-birouri.ro/inchiriere-vanzare/bucuresti-hundertwasser-house Pe platforma SPATII-DE-BIROURI.RO gasiti peste 400 de cladiri de birouri din Bucuresti, cu toate informatiile actualizate si comision 0% (reprezentam proprietarii).

Chirie / u.m. / lună:
13.31 EUR/mp (total: 2609 EUR/lună) + alte cheltuieli, Comision 0% cumpărător
Suprafață disponibilă:
196
Disponibilitate spațiu:
imediat
Etaj:
Etaj 4 / 5
Posibilitate parcare:
Da

Puncte de interes

Mijloace transport
bus-station
Maguricea
Stații autobuz aprox. 105 m
tram-station
Maguricea
Stații tramvai aprox. 131 m
metro-station
Metrorex. Stația Aurel Vlaicu (M2)(1987)
Stații metrou aprox. 747 m
airport
Aeroportul Internațional Băneasa (Aurel Vlaicu) - LRBS (BBU)
Aeroporturi aprox. 1922 m
Școală
kindergarten
Gradinita Miniterra
Gradinițe aprox. 406 m
school
Scoala cu clasele I-VIII nr.12 "Herastrau"
Școli aprox. 477 m
kindergarten
Grădinița Mary Poppins
Gradinițe aprox. 689 m
university
Școala Superioară de Aviație Civilă - S.S.Av.C.
Universități aprox. 1613 m
Recreere
park
Parc
Parcuri aprox. 230 m
supermarket
Lidl
Supermarket aprox. 364 m
bar
Simbi's
Bar aprox. 412 m
sports-ground
Teren sportiv
Terenuri sport aprox. 742 m

Istoricul prețurilor

Acces la informații premium după autentificare
Login Gratuit

Proprietăți similare

Birou, 1204 mp în Aviației
2.363 - 8.512 € / lună
București, Aviației
5.100 mp utili
Clădire de birouri
P+6E
Birou, 521 mp în Aviației
5.210 € / lună
București, Aviației
521 mp utili
Clădire de birouri
6E
Birou, 335 mp în Aviației
4.690 € / lună
București, Aviației
335 mp utili
Clădire de birouri
12E

Detalii de contact

Activ Property Services

Departament Birouri

5.00(4 review-uri)

Activ Property Services
PRO

Abonează-te la newsletter să fii primul care primește cele mai noi recomandări de proprietăți și sfaturi de la experți.

CONTACT

Creează alertă

Salvează căutarea ca să primești pe email ultimele anunțuri publicate

Birouri de închiriat în zona Aviației, Sector 1