Etaj 2 integral birouri – 293,5 mp, Calea Dumbravii Sibiu, 12 €/mp ALL INCLUSIVE

3.396 € / lună
12 € / mp / lună

Calea Dumbrăvii, Sibiu

Sup. utilă / mp. utili:
283 mp
Tip prop.:
Clădire de birouri
Niv.:
3
  • • Locație aproximativă

Descriere spațiu comercial

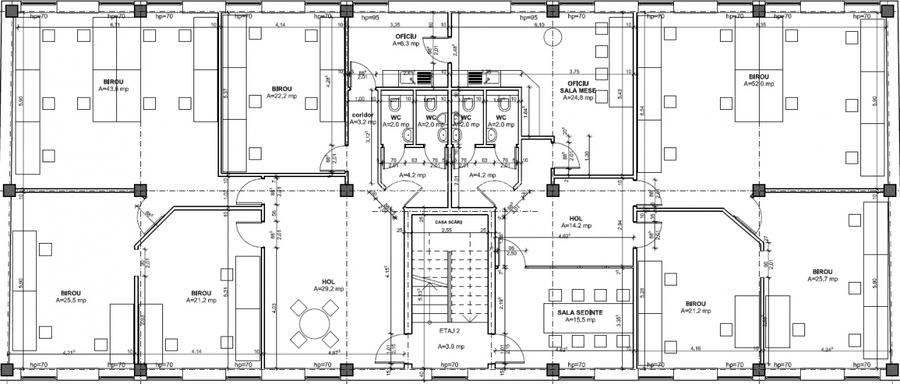
Se inchiriaza întregul etaj dintr-o clădire de birouri situată pe Calea Dumbravii, una dintre cele mai căutate și ultracentrale zone din Sibiu. Suprafață utilă totală: 293,5 mp Preț chirie: 12 € / mp / lună (chiria + service charge + cafea asigurată gratuit pentru chiriași) Compartimentare și facilități: - 7 birouri spațioase cu suprafețe cuprinse între 21 mp și 52 mp - 2 săli de ședințe / meeting (una de 15,5 mp și una de 24,8 mp) - Holuri generoase - Grupuri sanitare moderne (4 WC-uri) - Oficiu / bucătărie complet utilat - Spații de depozitare și coridoare de acces - Lumină naturală excelentă în majoritatea încăperilor - Acces facil prin casa scării centrală Spațiul este ideal pentru companii medii sau mari, sediu de firmă, birouri administrative, IT, servicii profesionale, agenții sau centre de training. Poate fi folosit atât compartimentat, cât și în regim open-space parțial. Avantaje principale: Locație ultracentrală pe Calea Dumbravii – acces excelent cu mașina și transportul public Cafea gratuită inclusă în chirie (un beneficiu rar și foarte apreciat de angajați) Toate service charge-urile (întreținere, curățenie comună etc.) incluse în prețul de 12 €/mp Flexibilitate la amenajare Mediu profesional și liniștit Disponibil: incepand cu data de 15 mai Contract pe teremn lung Pentru vizionare, detalii suplimentare sau negociere, contactați-ne.
Citește mai mult Citește mai puțin
3 Parcări

Detalii spațiu comercial

ID anunț: XG8K04002 Copiat! 275384220 Copiat!
Actualizat în: 31 Martie 2026
Suprafață utilă: 283 mp
Etaj: Etaj 2 / 3
Regim înălțime: P+3E
Structură rezistență: Beton
Stadiu construcție: Finalizată

Utilități

Utilități
Curent Apă Canalizare
Comision
Standard

Puncte de interes

Mijloace transport
bus-station
Cimitir 1
Stații autobuz aprox. 9 m
bus-station
Cimitir 2
Stații autobuz aprox. 48 m
bus-station
Siretului
Stații autobuz aprox. 222 m
bus-station
Siretului 2
Stații autobuz aprox. 227 m
Școală
kindergarten
Gradinita Nr. 5
Gradinițe aprox. 326 m
kindergarten
FasTracKids
Gradinițe aprox. 671 m
school
Scoala Gimnaziala nr. 16
Școli aprox. 732 m
university
Universitatea Romano-Germana Sibiu
Universități aprox. 1590 m
Recreere
bar
Bar Cesar
Bar aprox. 65 m
park
Piata Crisan
Parcuri aprox. 183 m
sports-ground
Teren sportiv
Terenuri sport aprox. 747 m
supermarket
Profi
Supermarket aprox. 810 m

Proprietăți similare

Birou, de 310 mp, în Calea Dumbrăvii
3.499 € / lună
Sibiu, Calea Dumbrăvii
310 mp utili
2015 (Există)
Birou, de 320.00 mp, în Calea Dumbrăvii
3.500 € / lună
Sibiu, Calea Dumbrăvii
320 mp utili
Clădire de birouri
1E
Birou, de 280 mp, în Calea Dumbrăvii
3.568 € / lună
Sibiu, Calea Dumbrăvii
280 mp utili
1E
2008

Detalii de contact

Noblea Imobiliare

Bianca Maria Solomon

Noblea Imobiliare

Abonează-te la newsletter să fii primul care primește cele mai noi recomandări de proprietăți și sfaturi de la experți.

CONTACT

Creează alertă

Salvează căutarea ca să primești pe email ultimele anunțuri publicate

Birouri cu 4+ camere de închiriat în zona Calea Dumbrăvii, Sibiu