Spatiu de birouri - Zona Balcescu - 204 mp- Comision 0%

1.632 € / lună
3.26 € / mp / lună

Bălcescu, Timișoara

Sup. utilă / mp. utili:
500 mp
Tip prop.:
Clădire de birouri
Niv.:
2
An constr.:
1904 (Există)
  • • Comision 0%
  • • Exclusivitate
  • • Locație exactă
  • • Vizionare prin apel video

Descriere spațiu comercial

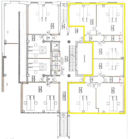
Oferim spre inchiriere spatiu de birouri cu suprafata utila de 204 mp, compartimentat in 6 incaperi. Exista si posibilitatea de inchiriere a unei suprafete mai mici. ✔ Dotări și facilități: ✅ Grupuri sanitare ✅ Lift ✅ Sală de ședințe ✅ Chicineta ✅ Parcare în curtea interioară (contra cost) Locație excelentă în zona centrală, cu acces facil la mijloace de transport și alte puncte de interes. 📞 Pentru detalii și vizionări, contactați-ne!
Citește mai mult Citește mai puțin

Detalii spațiu comercial

ID anunț: X1BR140MV Copiat! 274144576 Copiat!
Actualizat în: 15 Ianuarie 2026
Suprafață utilă: 204 mp
Etaj: Parter / 2
Clasă birouri: A
Regim înălțime: D+P+2E+M
Stadiu construcție: Există

Utilități

Utilități
Curent Apă Canalizare
Comision
0%

Vecinătăți:

Liceul Teoretic "Grigore Moisil", Parcul Carmen Silva, Piata Maria, Piata Siana, Piata Victoriei, Piata Balcescu

Disponibilitate proprietate:

data_properties.property_availability.Imediat

Puncte de interes

Mijloace transport
tram-station
Statie Nicolae Balcescu Tv5, Tv6, Tv7, Tv8
Stații tramvai aprox. 151 m
bus-station
Piata Nicolae Balcescu
Stații autobuz aprox. 168 m
trolleybus-station
Statie Piata Regina Maria T11, T14, T18
Stații troleibuz aprox. 1124 m
train-station
Gara de Nord
Stații tren aprox. 1523 m
Școală
school
Liceul Teoretic Grigore Moisil
Școli aprox. 60 m
school
Scoala Generala Numarul 22 Timisoara - Doja (en)
Școli aprox. 69 m
kindergarten
Gradinita Program Saptamanal Nr. 1
Gradinițe aprox. 214 m
university
Academia Romana - filiala Timisoara
Universități aprox. 272 m
Recreere
park
Parcul Doina
Parcuri aprox. 118 m
sports-ground
Teren sportiv
Terenuri sport aprox. 279 m
public-square
Piața Maria
Piețe publice aprox. 704 m
supermarket
Profi Piata Sinaia
Supermarket aprox. 748 m

Proprietăți similare

Birou, 204 mp în Bălcescu
1.632 € / lună
Timișoara, Bălcescu
500 mp utili
Clădire de birouri
P+2E
Birou, 888 mp în Central
1.680 - 7.200 € / lună
Timișoara, Central
7.500 mp utili
Clădire de birouri
P+5E
Birou, 177 mp în Central
1.770 € / lună
Timișoara, Central
177 mp utili
Clădire de birouri
11E

Detalii de contact

Hitch&Mosher;

Gabriel Paval Senior Consultant

Hitch&Mosher;
PRO

Abonează-te la newsletter să fii primul care primește cele mai noi recomandări de proprietăți și sfaturi de la experți.

Feedback apel

CONTACT

Creează alertă

Salvează căutarea ca să primești pe email ultimele anunțuri publicate

Birouri cu 4+ camere de închiriat în zona Bălcescu, Timișoara