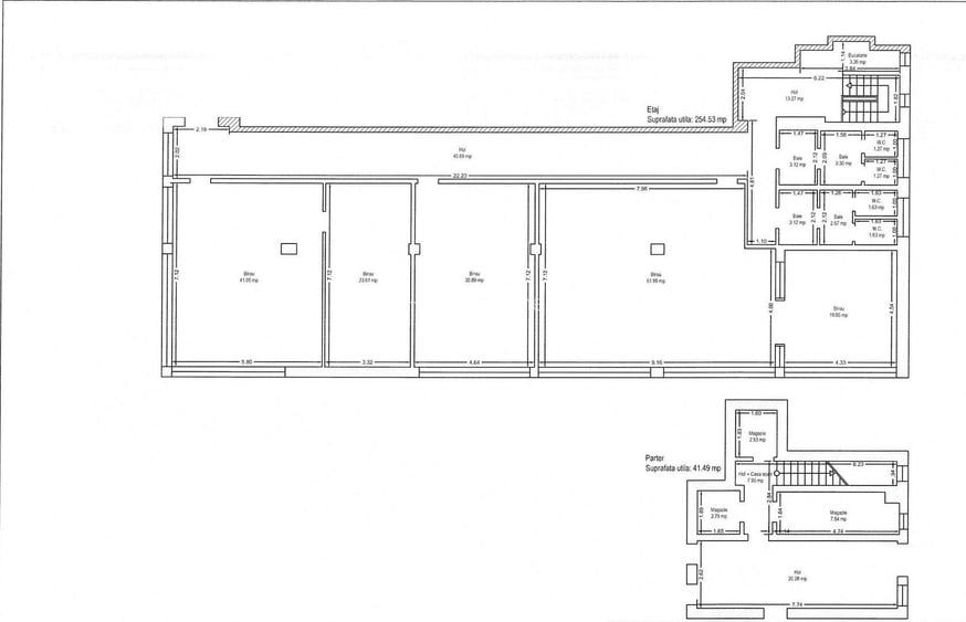
Oferim spre închiriere spațiu SAD înscris în CF, situat la etajul 1, cu suprafață utilă de aproximativ 300 mp, ideal pentru birouri, firmă de servicii, activități comerciale, showroom, cabinete sau sediu de companie.
Spațiul beneficiază de compartimentare practică, cu încăperi generoase și luminoase, zone open-space, grupuri sanitare, spații anexe/de depozitare și acces facil. Suprafețele vitrate mari asigură lumină naturală din abundență, oferind un mediu de lucru plăcut și eficient.
Imobilul dispune de toate utilitățile, încălzire cu centrală termică proprie și sistem de climatizare, fiind pregătit pentru desfășurarea imediată a activității. Datorită configurației versatile, spațiul poate fi adaptat cu ușurință în funcție de necesitățile viitorului chiriaș.
Caracteristici principale:
Etaj 1
aproximativ 300 mp utili
SAD înscris în CF
toate utilitățile
încălzire cu centrală termică
climatizare
spațiu luminos și bine compartimentat
pretabil birouri, comercial, servicii, showroom, cabinete etc.
Zona Favorit, Bogdanestilor. Circumvalatiunii, Hotel President Timisoara, Brol Medical Center, Carrefour Market, C.A.R., Billa Market, Kauflaund, Piata 700, Administratia Financiara Timis, Iulius Mall, Parcul Botanic, Piata Unirii
Sediul central - Timișoara
Bulevardul Victor Babeș nr. 2, 300230, Timișoara, România
Tel: +40.374.40.44.98 / Fax: +40.256.401.179
Email: suport@imobiliare.ro
Luni - Vineri 08:00 - 20:00
Punct de lucru - București: Iride Business Park, Bld. Dimitrie
Pompeiu 9-9A, Clădirea B2B,
020335, Sector 2, București, România
CONTACT
Sediul central - Timișoara
Bulevardul Victor Babeș nr. 2, 300230, Timișoara, România
Tel: +40.374.40.44.98 / Fax: +40.256.401.179
Email: suport@imobiliare.ro
Luni - Vineri 08:00 - 20:00
Punct de lucru - București: Iride Business Park, Bld. Dimitrie
Pompeiu 9-9A, Clădirea B2B,
020335, Sector 2, București, România
Sună acum și cere detalii sau programează o vizionare.
Cere detalii prin email
*
*
*
*
Stații autobuz
Stații tramvai
Stații troleibuz
Stații tren
Școli
Gradinițe
Universități
Supermarket
Mall
Parcări
Terenuri sport
Parcuri
Piețe publice
Spital
Farmacie
Restaurant
Pub
Bar
Cafenea
Bancă
Statie Circumvalatiunii E2
aprox.
86 m
Gheorghe Lazar
aprox.
86 m
Calea Circumvalatiunii
aprox.
106 m
Statie Ghe. Lazar A13
aprox.
113 m
Gheorghe Lazar
aprox.
163 m
Statie Circumvalatiunii E1
aprox.
169 m
Statie Ghe. Lazar A13 retur
aprox.
171 m
Calea Circumvalatiunii
aprox.
188 m
Piata Dacia
aprox.
359 m
Statie Circumvalatiunii E1
aprox.
361 m
Statie Piata 700 A13
aprox.
449 m
Statie Timis A13
aprox.
504 m
Piata 700
aprox.
512 m
Piata Consiliul Europei
aprox.
538 m
Statie Piata Consiliul Europei T14, T17, T18, E2
aprox.
550 m
Circumvalatiunii
aprox.
457 m
Statie Circumvalatiunii Tv4, Tv5, Tv6
aprox.
460 m
Circumvalatiunii
aprox.
486 m
Statie Piata 700 Tv5
aprox.
487 m
Statie Piata 700 Tv6
aprox.
494 m
Spitalul de Copii
aprox.
496 m
Statie Piata 700 Tv1, Tv2, Tv4, Tv6
aprox.
507 m
Spitalul de Copii
aprox.
583 m
Statie Mendeleev Tv4, Tv5, Tv6
aprox.
592 m
Statie Piata Libertatii TV1, TV2, Tv4, Tv6
aprox.
721 m
Statie Amforei Tramvai Linia 4,6
aprox.
755 m
Statie Cetatii Tv4, Tv6
aprox.
760 m
Cetatii
aprox.
764 m
Statie Cetatii Tv4, Tv6 retur
aprox.
765 m
Cetatii
aprox.
768 m
Statie Piata 700 T11, T14, T18
aprox.
512 m
Statie Piata 700 T11, T13, T14, T17, T18
aprox.
583 m
Statie Piata Regina Maria T11, T14, T18
aprox.
843 m
Statie Miresei E6
aprox.
897 m
Statie Oituz T11, T17
aprox.
946 m
Statie Cimitirul Eroilor T14
aprox.
989 m
Statie Bastion T11, T17
aprox.
1231 m
Statie B-dul Mihai Eminescu T19
aprox.
1296 m
Statie Piata Verde/Liege T17
aprox.
1545 m
Statie Politia Jud. Timis T11, T17
aprox.
1706 m
Statie Pop de Basesti T11, T14, T18
aprox.
1777 m
Statie Pop de Basesti T11, T14, T18
aprox.
1785 m
Statie Baader T17
aprox.
1953 m
Gara de Nord
aprox.
1421 m
Terminal RESITA
aprox.
1505 m
Timisoara North railway station area (en)
aprox.
1737 m
Clubul Sportiv Scolar Bega
aprox.
236 m
Colegiul Tehnic "Ion Mincu"
aprox.
253 m
Colegiul Tehnic Ion Mincu
aprox.
253 m
Scoala Gimnaziala nr. 18
aprox.
453 m
Scoala Generala Nr. 18
aprox.
484 m
COLEGIUL TEHNIC "HENRI COANDA"
aprox.
558 m
Scoala Generala 24
aprox.
565 m
Scoala Gimnaziala nr. 24
aprox.
579 m
LICEUL TEORETIC "NIKOLAUS LENAU"
aprox.
612 m
Scoala Gimnaziala nr. 26
aprox.
649 m
Scoala Generala 26
aprox.
662 m
Scoala Gimnaziala nr. 19 Avram Iancu
aprox.
699 m
Sc.Gen.nr.19 "Avram Iancu"
aprox.
715 m
Nikolaus Lenau clasele I-IV
aprox.
727 m
LICEUL TEOLOGIC ROMANO-CATOLIC "GERHARDINUM"
aprox.
889 m
Gradinita nr. 26
aprox.
326 m
Grădinița nr. 26 Timișoara
aprox.
337 m
Gradinita Program Prelungit Nr. 36
aprox.
364 m
Gradinita nr. 36
aprox.
374 m
Gradinita Program Normal Nr. 22 (Lenau)
aprox.
553 m
Gradinita Biancaneve
aprox.
640 m
Gradinita Program Prelungit Nr. 25
aprox.
688 m
Gradinita Program Prelungit Nr. 27
aprox.
772 m
Gradinita nr. 27
aprox.
773 m
Gradinita Bunul Pastor
aprox.
864 m
Gradinita Smart
aprox.
901 m
Gradinita Best Kids
aprox.
952 m
Gradinita Program Prelungit Nr. 6
aprox.
965 m
Gradinita Program Prelungit Nr. 33
aprox.
1024 m
Gradinita Program Normal Nr. 23
aprox.
1132 m
Facultatea de Muzica (UVT)
aprox.
736 m
Facultatea de Muzica
aprox.
742 m
Facultatea de Arte Plastice
aprox.
766 m
Facultatea de Arte
aprox.
766 m
Facultatea de Chimie Industriala si Ingineria Mediului
aprox.
995 m
Technical University Timisoara -"R" building (en)
aprox.
1014 m
Facultatea de Teologie
aprox.
1087 m
Universitatea de Vest, Facultatea de teologie ortodoxa
aprox.
1093 m
Universitatea de Medicina si Farmacie Victor Babes
aprox.
1188 m
Universitatea de Medicina si Farmacie Vicotr Babes
aprox.
1188 m
U.M.F. Medicină Dentară
aprox.
1207 m
Universitatea de Medicina si Farmacie Victor Babes
aprox.
1226 m
Universitatea de Medicina si Farmacie Victor Babes
aprox.
1357 m
Universitatea de Medicina
aprox.
1362 m
Centrul de Microchirurgie si Chirurgie Laparoscopica 'Pius Branzeu'
aprox.
1409 m
Kaufland
aprox.
47 m
DM
aprox.
139 m
Penny Market
aprox.
249 m
Billa
aprox.
266 m
Carrefour Market
aprox.
501 m
Carrefour Market
aprox.
544 m
Profi City
aprox.
687 m
Materna-Modern
aprox.
813 m
Lidl Miresei
aprox.
873 m
Carrefour Market
aprox.
875 m
Etti
aprox.
875 m
Profi City
aprox.
882 m
Lidl
aprox.
895 m
Iulius Mall
aprox.
960 m
Auchan
aprox.
1007 m
Kappa Centrul Comercial
aprox.
1333 m
Parcare pentru clienti
aprox.
36 m
Parcare pentru clienti
aprox.
120 m
Parcare privata
aprox.
153 m
Parcare
aprox.
162 m
Parcare
aprox.
191 m
Parcare
aprox.
259 m
Parcare
aprox.
283 m
Parcare subterana cu plata Piata 700
aprox.
287 m
Parcare
aprox.
287 m
Parcare
aprox.
408 m
Parcare
aprox.
413 m
Parcare
aprox.
419 m
Parking (en)
aprox.
421 m
Parcare City Business Center
aprox.
446 m
Parcare
aprox.
447 m
Teren sportiv
aprox.
200 m
Teren sportiv
aprox.
214 m
Teren sportiv
aprox.
220 m
Arena Viola
aprox.
267 m
Teren sportiv
aprox.
670 m
Teren sportiv
aprox.
690 m
Teren sportiv
aprox.
932 m
Teren sportiv
aprox.
988 m
Teren sportiv
aprox.
1028 m
Teren sportiv
aprox.
1110 m
Teren sportiv
aprox.
1143 m
Teren sintetic pentru fotbal
aprox.
1169 m
Teren sportiv
aprox.
1248 m
Teren sportiv
aprox.
1301 m
Teren sportiv
aprox.
1377 m
Parcul Botanic
aprox.
388 m
Parcul Botanic
aprox.
396 m
Parc
aprox.
454 m
Parcul Dacia
aprox.
502 m
parc Dacia
aprox.
518 m
Parc
aprox.
560 m
Piata Consiliul Europei
aprox.
612 m
Parc
aprox.
619 m
Piata Marasti
aprox.
637 m
Parc
aprox.
691 m
Loc de joaca Jules Verne
aprox.
745 m
Parc
aprox.
804 m
Parc
aprox.
830 m
Piata Sfantul Nicolae
aprox.
830 m
Piata Sfantul Nicolae
aprox.
836 m
Piata Mircea Eliade
aprox.
732 m
Piata Unirii
aprox.
768 m
Piata Libertatii
aprox.
787 m
Piata Victoriei
aprox.
965 m
Piata Tepes Voda
aprox.
969 m
Piața Maria
aprox.
1353 m
Piata Sinaia
aprox.
1606 m
Piata Leonardo Da Vinci
aprox.
1765 m
Piata Corneliu Micloși
aprox.
1967 m
CABINETUL MEDICAL "BUNA VESTIRE"
aprox.
272 m
Cabinet Dr. Giurgiu Daniela
aprox.
470 m
Sal-Vet
aprox.
499 m
Clinicile Noi (en)
aprox.
530 m
Spitalul Municipal Clinicile Noi
aprox.
540 m
Spitalul militar
aprox.
587 m
Spitalul Militar de Urgenta Dr. Victor Popescu
aprox.
593 m
Policlinica Garleanu (en)
aprox.
666 m
Oftalmologie
aprox.
669 m
Spitalul Clinic Municipal
aprox.
679 m
Policlinica de Copii
aprox.
679 m
Clinica de Chirurgie si Ortopedie Pediatrica Dr. Trestianu Viorel
aprox.
698 m
Louis Èšurcanu Hospital (en)
aprox.
743 m
President
aprox.
743 m
Spitalul Clinic de Urgenta pentru Copii Louis Turcanu
aprox.
782 m
Farmacia Dacia
aprox.
364 m
Dacia
aprox.
450 m
Helpnet
aprox.
452 m
Richter
aprox.
501 m
Farmacia Dona
aprox.
505 m
Catena
aprox.
523 m
Vlad
aprox.
525 m
Farmacia Dona
aprox.
552 m
Dona
aprox.
555 m
Farmacia Richter
aprox.
669 m
Vlavar Med
aprox.
702 m
Dianthus Farmacia
aprox.
787 m
Richter
aprox.
836 m
Sensiblu
aprox.
893 m
Farmado
aprox.
938 m
Kaufland Grill
aprox.
18 m
tomis restaurant (en)
aprox.
299 m
Fast Food
aprox.
331 m
Cantina Sodexo
aprox.
343 m
Salad Box
aprox.
361 m
Fast Food
aprox.
364 m
City Business Center Timisoara 700 (Building A) (en)
aprox.
411 m
Texas Stake House
aprox.
411 m
Texas
aprox.
411 m
Sky Restaurant
aprox.
435 m
Crama 700
aprox.
479 m
Enjoy
aprox.
483 m
Pizza Poli
aprox.
527 m
Pizzeria Poli
aprox.
534 m
Ieftin si bun
aprox.
583 m
Casino El Dorado
aprox.
160 m
Orlovi
aprox.
424 m
Beraria 700
aprox.
551 m
Rock House
aprox.
561 m
Bierhaus
aprox.
602 m
Bibliotheka 2
aprox.
628 m
Jarvis
aprox.
646 m
Molly Malone's
aprox.
661 m
Grinette
aprox.
705 m
Drunken Rat
aprox.
830 m
Club Bordeaux
aprox.
866 m
Irish Pub
aprox.
914 m
Daos Club
aprox.
1116 m
Wake Up
aprox.
1342 m
Caffe Tim Nord
aprox.
1460 m
Capsali
aprox.
330 m
Freshious
aprox.
487 m
Art Club Cafe
aprox.
556 m
Bunker
aprox.
609 m
Nouveau
aprox.
615 m
Cafe Colt
aprox.
657 m
D'arc
aprox.
675 m
Mode
aprox.
686 m
Arqa
aprox.
742 m
Eclipse
aprox.
764 m
Enoteca de Savoya
aprox.
780 m
Alt Club
aprox.
787 m
Curtea Berarilor
aprox.
1032 m
MGM Bastion
aprox.
1084 m
Manufactura
aprox.
1342 m
Orlovi
aprox.
427 m
Cuib d'Arte
aprox.
551 m
Reciproc
aprox.
558 m
1740 Music Cafe
aprox.
628 m
WellPlayed Gaming Lounge
aprox.
697 m
Tucano Coffee Mexico
aprox.
709 m
Papillon
aprox.
754 m
Van Graf KFe
aprox.
822 m
Starbucks
aprox.
824 m
Spirit
aprox.
824 m
Musetti
aprox.
825 m
Starbucks
aprox.
867 m
Galto di Bruno
aprox.
905 m
Tempo
aprox.
966 m
Massimo
aprox.
980 m
ING
aprox.
117 m
BCR
aprox.
370 m
Raiffeisen Bank
aprox.
390 m
UniCredit Bank
aprox.
437 m
BRD
aprox.
441 m
Banca Transilvania
aprox.
442 m
Banca Romaneasca
aprox.
481 m
Banca Transilvania
aprox.
482 m
UniCredit Bank
aprox.
526 m
BRD agency (en)
aprox.
550 m
BCR
aprox.
567 m
ProCredit
aprox.
583 m
Banca Carpatica
aprox.
638 m
Libra Bank
aprox.
654 m
Garanti Bank
aprox.
679 m
Dată fiind apropierea sa de zona centrală a orașului, cartierul este, mai ales raportat la suprafața sa, destul de bine deservit la capitolul mijloace de transport în comun "“ pe Bulevardul Cetății, spre exemplu, circulă tramvaiele 4 și 10, iar pe Strada Gheorghe Lazăr și Calea Circumvalațiunii ajung liniile de autobuz 13 și, respectiv, E1. Și pasionații de ciclism sunt avantajați, aceștia având acces, strict între granițele cartierului, la mai multe piste special amenajate: una pe Bulevardul Cetății, una pe Strada Gheorghe Lazăr și alta pe Calea Circumvalațiunii.
În acest areal relativ restrâns se găsesc mai multe instituții de învățământ demne de menționat, anume Școala Gimnazială Nr. 19 "Avram Iancu" (pe Bulevardul Cetății, nr. 24), Școala Gimnazială Nr. 18 (pe Strada Amforei, nr. 6), Școala Gimnazială Nr. 24 (pe Strada Brândușei, nr. 7), Școala Gimnazială Nr. 26 (pe Strada Ulmului, nr. 2), dar și Colegiul Tehnic "Henri Coandă" (pe Str. C. Brediceanu, nr. 37). În materie de școli (și grădinițe), proximitatea zonei centrale reprezintă, iarăși, un avantaj important. Mai jos poți vedea în detaliu ce unități de învățământ există în Circumvalațiunii:
Aici putem găsi o serie de magazine de tip supermarket (printre care se numără un Mega Image foarte bine aprovizionat, un Penny Market și două Profi City). Pe lânga acestea, amintim un hipermarket: este vorba de o unitate din rețeaua Kaufland, amplasată aproape de "granița" cu zona centrală. Această subdiviziune a Timișoarei prezintă avantajul proximității a două zone în care se găsește câte un mall. Astfel, în Cetate, aproape de Parcul Civic, se află magazinele din Bega Shopping Center, în vreme ce, în partea de sud a cartierului Lipovei, foarte aproape de limita cu Circumvalațiunii, există o întreagă zonă comercială, din care face parte și Iulius Mall (alături de două magazine de bricolaj "“ Praktiker și Dedeman).
Una dintre principalele artere de circulație din această zonă a Timișoarei "“ ce o separă, practic, în două jumătăți "“ este Strada Gheorghe Lazăr, căreia i se adaugă Calea Circumvalațiunii, care dă și numele cartierului, dar și Bulevardul Cetății și Calea Bogdăneștilor. Dat fiind numărul ridicat de blocuri din cartier și faptul că unele dintre acestea au un regim ridicat de înălțime, găsirea unui loc de parcare în această zonă a Timișoarei poate fi dificilă uneori. Cei interesați de închirierea unui loc de parcare se pot adresa, așadar, reprezentanților autorităților locale (sediul Primăriei Timișoarei se găsește în zona Cetate, pe Bulevardul Constantin Diaconovici Loga, nr. 1).
În ceea ce privește oportunitățile de recreere, timișorenii din Circumvalațiunii sunt evident mai avantajați decât cei din alte zone ale orașului; astfel, cu toate că nu au la dispoziție prea multe parcuri în interiorul propriului cartier (de menționat fiind, totuși, Parcul Dacia), aceștia beneficiază, totuși, de accesul rapid către zona Cetate. Cel mai apropiat de aici este Parcul Botanic, amplasat chiar la "granița" cu Circumvalațiunii. Pe lângă faptul că pot apela la serviciile unei săli de fitness din apropierea casei, iubitorii de sport beneficiază de un alt important punct de interes: este vorba despre Stadionul CFR, care se găsește în extrema de sud-vest a cartierului, aproape de limita cu Blașcovici, anume pe Strada Nera, nr. 2. De asemenea, în acest cartier regăsim și cea mai nouă galerie de artă din oraș "“ Kunsthalle Bega.
Pe lângă o serie de cabinete private de dimensiuni mai mici (de regulă monospecializate), în zonă vei putea găsi și o unitate de profil precum Centrul Medical "Dr. Stan" (de pe Strada Gheorghe Lazăr, nr. 36-40), care dispune de varii specializări. De asemenea găsim pe Bld. Circumvalaiunii 8-10, Clinica Medici"™s, ce oferă o serie de servicii medicale variate. În plus, cartierul are de câștigat, și de această dată, de pe urma vecinătății cu zona centrală, unde se găsesc mai multe spitale de stat: Spitalul Clinic Municipal de Urgență Timișoara (de pe Strada Gheorghe Dima, nr. 5), Spitalul Militar de Urgență "Dr. Victor Popescu" (pe Strada Gheorghe Lazăr, nr. 7), dar și Spitalul Clinic de Urgență pentru Copii "Louis Țurcanu" (pe Strada Doctor Iosif Nemoianu, nr. 2).
Cele mai multe localuri pe care le întâlnim aici sunt cele de tip fast-food: un McDonald"™s și mai multe fast-food-uri de cartier. Totuși, dacă dorești să servești o masă la un restaurant cu un meniu variat, poți alege Sky Restaurant (din cadrul clădirii de birouri City Business Center), sau restaurantul de la parterul hotelului Ibis. Avantajul acestui cartier este că poți ajunge relativ repede mergând pe jos, sau chiar cu bicicleta, la restaurantele din zona centrală - Piața Unirii, sau la cele de la Iulius Town. Aruncă o privire pe hartă și vezi unde vei găsi cel mai apropiat restaurant de viitoarea ta locuință.
Găsești aici mai multe sucursale și bancomate pe strada Gheorghe Lazăr - una dintre principalele artere de circulație din această zonă. Sucursala ING Office Timișoara se află pe str. Gh Lazăr nr. 30-32, și de asemenea, puteți ajunge ușor spre Banca Transilvania care se află pe aceeași stradă, la nr. 40, unde se mai află și o sucursală BRD. Un bacomat BCR și OTP găsiți pe Str. Gheorghe Lazăr nr. 9B, respectiv Circumvalațiunii nr. 69. Consultă harta și află unde sunt localizate și alte bănci sau ATM-uri în zona de care ești interesat.
Înainte să pleci...
Ești sigur că ai văzut și aceste proprietăți?
3.025 €
/ lună
Timișoara, Ultracentral
250 mp utili
Clădire de birouri
3E
2.873 €
/ lună
Timișoara, Ultracentral
250 mp utili
Clădire de birouri
6E
2.800 €
/ lună
Timișoara, Bălcescu
215 mp utili
Clădire de birouri
2E
Creează alertă
Salvează căutarea ca să primești pe email ultimele anunțuri publicate
Birouri cu 4+ camere de închiriat în zona Circumvalațiunii, Timișoara
Cere detalii prin email
*
*
*
*
Detaliile tale de contact vor fi partajate cu Hitch&mosher;