Apartament de inchiriat pentru birouri, 102 mp, Piata Maria Timisoara

850 € / lună
8.33 € / mp / lună

P-ța Maria, Timișoara

Sup. utilă / mp. utili:
102 mp
Tip prop.:
Clădire de birouri
Niv.:
3
An constr.:
1960 (Există)
  • • Locație aproximativă

Descriere spațiu comercial

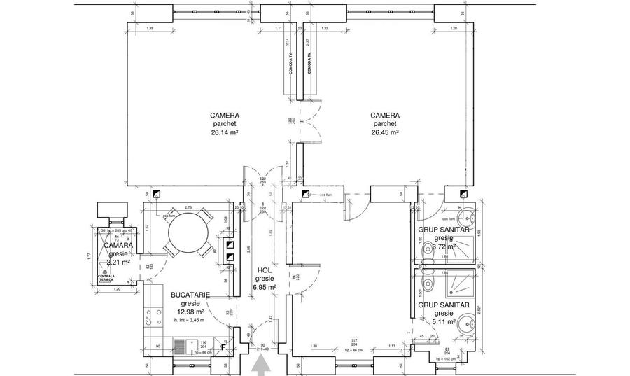
Agentia imobiliara APOSTU ESTATE va propune spre inchiriere apartament pretabil pentru spatiu de birouri, 102 mp, situat in zona Centrala, Piata Maria Timisoara. Spatiul se afla la prima inchiriere dupa renovare si este pozitionat la etajul 1. Spatiul se desfasoară pe o suprafata utila de 102 mp si este compartimentat circular astfel: - hol acces; - bucatarie si loc de servit masa+camara. - 2 grupuri sanitare cu dus. - 3 incaperi pentru birou . - curte interioara comuna. Confortul termic se realizeaza cu ajutorul centralei proprii a imobilului prin intermediul caloriferelor si al aparatelor de aer conditionat. Apartamentul se inchiriaza nemobilat. Va asteptam cu placere la o vizionare! CP2996743
Citește mai mult Citește mai puțin

Detalii spațiu comercial

ID anunț: XBAF141GH Copiat! 275362757 Copiat!
Actualizat în: 27 Martie 2026
Suprafață utilă: 102 mp
Etaj: Etaj 1 / 3
Clasă birouri: C
Regim înălțime: D+P+3E
Stadiu construcție: Există

Utilități

Utilități
Curent Apă Canalizare
Comision
standard

Disponibilitate proprietate:

data_properties.property_availability.Imediat

Puncte de interes

Mijloace transport
tram-station
Piata Mocioni
Stații tramvai aprox. 157 m
bus-station
Statie Mocioni E7, A33, M36, A 32, E5
Stații autobuz aprox. 189 m
train-station
Gara de Nord
Stații tren aprox. 638 m
trolleybus-station
Statie Piata Regina Maria T11, T14, T18
Stații troleibuz aprox. 741 m
Școală
school
LICEUL TEOLOGIC BAPTIST
Școli aprox. 121 m
school
Colegiul Tehnic de Vest
Școli aprox. 345 m
kindergarten
Gradinita Program Prelungit Nr. 21
Gradinițe aprox. 369 m
university
Universitatea de Medicina si Farmacie Vicotr Babes
Universități aprox. 381 m
Recreere
public-square
Piata Sinaia
Piețe publice aprox. 173 m
supermarket
Profi Piata Sinaia
Supermarket aprox. 214 m
sports-ground
Teren sportiv
Terenuri sport aprox. 438 m
park
Parcul Gheorghe Doja
Parcuri aprox. 472 m

Proprietăți similare

Birou, de 100 mp, în Central
850 € / lună
Timișoara, Central
100 mp utili
Casă/Vilă
1E
Birou, de 63.63 mp, în P-ța Unirii
891 € / lună
Timișoara, P-ța Unirii
63,63 mp utili
Clădire de birouri
2E
Birou, 90 mp în Complex Studențesc
850 € / lună
Timișoara, Complex Studențesc
90 mp utili
Clădire de birouri
2E

Detalii de contact

APOSTU ESTATE

Alexandru Paliuc Senior Broker

APOSTU ESTATE
PRO

Abonează-te la newsletter să fii primul care primește cele mai noi recomandări de proprietăți și sfaturi de la experți.

Feedback apel

CONTACT

Creează alertă

Salvează căutarea ca să primești pe email ultimele anunțuri publicate

Birouri cu 3 camere de închiriat în zona P-ța Maria, Timișoara